$999,000
26710 Beartown LN
Stevenson Ranch, CA, 91381
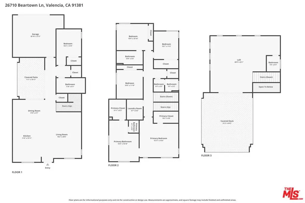
Discover this upgraded, tenant-occupied townhome, a standout investment opportunity generating $7,500 per month. Spread across three sun-filled levels, the home features abundant storage, a convenient laundry room, and a primary suite with two walk-in closets and a spa-like bathroom with a walk-in shower and double vanities. The bottom floor boasts a spacious kitchen with glass doors opening to a private backyard and additional front outdoor space. Upstairs, a versatile loft and covered deck provide ideal spots to relax or enjoy the views. A two-car garage with electric vehicle charging adds modern convenience. This property is being sold fully furnished and includes a home gym, enhancing both lifestyle and investment potential. Located in Valencia, it offers easy access to top-rated schools, shopping, dining, and parksmaking it one of the best investment opportunities available.
Property Details
Price:
$999,000
MLS #:
26661925
Status:
Active
Beds:
5
Baths:
4
Type:
Single Family
Subtype:
Single Family Residence
Neighborhood:
fptvfivepointvalencia
Listed Date:
Mar 9, 2026
Finished Sq Ft:
3,269
Total Sq Ft:
3,269
Lot Size:
31,347 sqft / 0.72 acres (approx)
Schools
Interior
Appliances
RF
Bathrooms
4 Full Bathrooms
Cooling
CA
Flooring
WOOD
Heating
CF
Laundry Features
IN, UL, DINC, WINC
Levels
S
Exterior
Architectural Style
CNT
Common Walls
NCW
Parking Spots
2
Parking Total
2
Spa Features
NO
View
VA
Financial
HOA Fee
$259
HOA Fee Frequency
MO
Get Out There, A Simply Outgoing Approach to Life. James Outland Jr. is one of those rare people who simply has an outgoing approach to life. No matter the activity… from dune buggy riding to skydiving to motorcycling to riding the local Pismo Beach waves… James Outland Jr. approaches life with a “just get out there and do it” kind of attitude. A zest for Life. James’ zest for life is obviously apparent in his many exciting hobbies. In his spare time, he loves riding dune buggies or hi…
More About JamesMortgage Calculator
Map
Current real estate data for Single Family in Stevenson Ranch as of Apr 09, 2026
38
Single Family Listed
58
Avg DOM
381
Avg $ / SqFt
$1,003,428
Avg List Price
Community
- Address26710 Beartown LN Stevenson Ranch CA
- CityStevenson Ranch
- CountyLos Angeles
- Zip Code91381
Similar Listings Nearby
Property Summary
- 26710 Beartown LN Stevenson Ranch CA is a Single Family for sale in Stevenson Ranch, CA, 91381. It is listed for $999,000 and features 5 beds, 4 baths, and has approximately 3,269 square feet of living space.The current price per square foot is $306. The average price per square foot for Single Family listings in Stevenson Ranch is $381. The average listing price for Single Family in Stevenson Ranch is $1,003,428. To schedule a showing of MLS#26661925 at 26710 Beartown LN in Stevenson Ranch, CA, contact your James Outland agent at 8057482262.
Courtesy of TruLine Realty. Disclaimer: All data relating to real estate for sale on this page comes from the Broker Reciprocity (BR) of the California Regional Multiple Listing Service. Detailed information about real estate listings held by brokerage firms other than James Outland include the name of the listing broker. Neither the listing company nor James Outland shall be responsible for any typographical errors, misinformation, misprints and shall be held totally harmless. The Broker providing this data believes it to be correct, but advises interested parties to confirm any item before relying on it in a purchase decision. Copyright 2026. California Regional Multiple Listing Service. All rights reserved. 26710 Beartown LN
Stevenson Ranch, CA























