$2,650,000
5232 California ST
San Francisco, CA, 94118
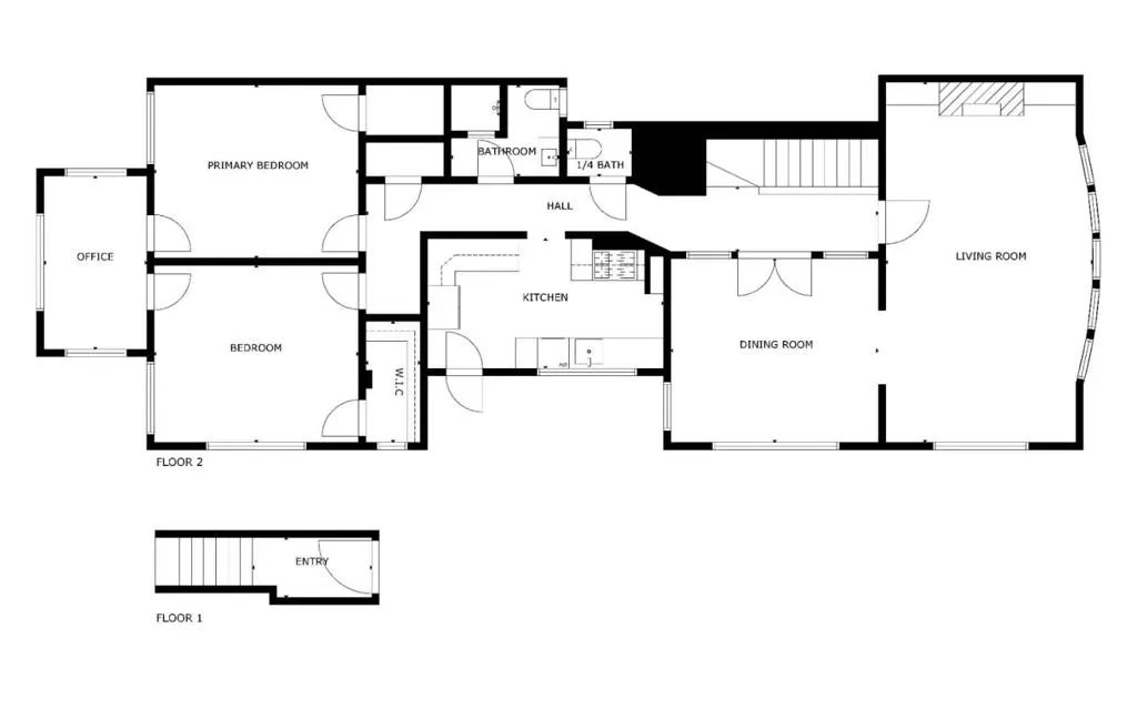
Welcome to 5230 – 5232 California Street, an elegant Marina-style duplex in the coveted Lake Street District, a quiet, tree-lined enclave between Sea Cliff, the Presidio, and Mountain Lake Park. This sought-after neighborhood offers rare tranquility with a suburban feel, yet moments from city conveniences. Each residence features hardwood floors, classic wood staircases, formal dining rooms with French doors and built-ins, and light-filled living rooms with fireplaces, reflecting early 20th-century San Francisco charm. Generous kitchens with gas ranges and stone countertops are ideal for daily living and entertaining. Spacious bedrooms include abundant natural light and walk-in closets, with adjoining sunrooms perfect for office, study, or retreat overlooking the yard. Each unit offers a full bath with spacious shower plus an additional quarter bath. A large finished garage provides parking, storage, or flexible use, plus a private yard for outdoor relaxation and entertaining. 5230 – 5232 California St. is ideal for owner-users or investors; this rare duplex offers timeless architecture, quiet sophistication, and an exceptional lifestyle in one of San Francisco’s most desirable neighborhoods.
Property Details
Price:
$2,650,000
MLS #:
ML82043554
Status:
Active
Beds:
0
Baths:
0
Type:
Single Family
Subtype:
Duplex
Listed Date:
Apr 17, 2026
Finished Sq Ft:
3,040
Total Sq Ft:
3,040
Lot Size:
2,500 sqft / 0.06 acres (approx)
Year Built:
1915
Schools
School District:
San Francisco Unified
Interior
Appliances
DW, MW, RF, HOD
Cooling
NO
Flooring
TILE, WOOD
Exterior
Accessibility Features
NO
Garage Spaces
2
Roof
TARGRV
Financial
Maintenance Fee
$1,800
Taxes
$1,787
Get Out There, A Simply Outgoing Approach to Life. James Outland Jr. is one of those rare people who simply has an outgoing approach to life. No matter the activity… from dune buggy riding to skydiving to motorcycling to riding the local Pismo Beach waves… James Outland Jr. approaches life with a “just get out there and do it” kind of attitude. A zest for Life. James’ zest for life is obviously apparent in his many exciting hobbies. In his spare time, he loves riding dune buggies or hi…
More About JamesMortgage Calculator
Map
Current real estate data for Single Family in San Francisco as of Apr 19, 2026
126
Single Family Listed
78
Avg DOM
732
Avg $ / SqFt
$1,588,085
Avg List Price
Community
- Address5232 California ST San Francisco CA
- CitySan Francisco
- CountySan Francisco
- Zip Code94118
Similar Listings Nearby
Property Summary
- 5232 California ST San Francisco CA is a Single Family for sale in San Francisco, CA, 94118. It is listed for $2,650,000 and features 0 beds, 0 baths, and has approximately 3,040 square feet of living space, and was originally constructed in 1915. The current price per square foot is $872. The average price per square foot for Single Family listings in San Francisco is $732. The average listing price for Single Family in San Francisco is $1,588,085. To schedule a showing of MLS#ml82043554 at 5232 California ST in San Francisco, CA, contact your James Outland agent at 8057482262.
Courtesy of Coldwell Banker Realty. Disclaimer: All data relating to real estate for sale on this page comes from the Broker Reciprocity (BR) of the California Regional Multiple Listing Service. Detailed information about real estate listings held by brokerage firms other than James Outland include the name of the listing broker. Neither the listing company nor James Outland shall be responsible for any typographical errors, misinformation, misprints and shall be held totally harmless. The Broker providing this data believes it to be correct, but advises interested parties to confirm any item before relying on it in a purchase decision. Copyright 2026. California Regional Multiple Listing Service. All rights reserved. 5232 California ST
San Francisco, CA



























































