$2,988,000
632 S. Grand AV
Pasadena, CA, 91105
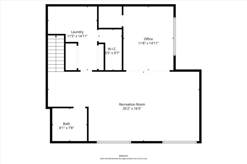
This charming, spacious craftsman style home, situated in one of Pasadena’s most sought after neighborhoods, was built in 1992 by a well-known local developer and real estate broker as his main residence. This high quality home includes all modern amenities. The current owner beautifully renovated the kitchen, three bathrooms, and the lower level. The inviting entry features beautiful hardwood floors, which span both levels. There is a guest bathroom off the entry. The spacious formal living room has a vaulted ceiling, a fireplace with gas starter, built-in bookcase, and recessed lighting. The formal dining room features antique stained glass windows. The renovated gourmet kitchen with skylights and vaulted ceiling includes a Sub-Zero refrigerator/freezer, Wolf convection cooktop & oven, as well as microwave, and lots of storage. The breakfast nook is conveniently located between the kitchen and the family room with a view of the lovely courtyard. The family room with built-in cabinets and bookshelves also has a vaulted ceiling and recessed lighting. The main bedroom suite with vaulted ceiling and skylight offers a ceiling fan, recessed lighting, built-in entertainment cabinet/bookcases, and walk-in closet. The main bathroom has dual sinks and an oversized steam shower. There are two additional family bedrooms with built-in storage, which are serviced by the hallway bathroom. The office/den (could be 4th bedroom) features attractive French doors that open up to a sun deck/patio. The lower level adds exceptional flexibility, with an oversized multi-purpose room perfect for a large home office, creative studio, or recreation space, complete with a dedicated file room. This level also includes a separate laundry room with secured storage and a full bathroom with jacuzzi tub. The two car garage with an automatic opener, offers plenty of cabinets and an EV charger. Other highlights of this home are the dual zone HVAC systems, solar panels, two tankless water heaters, and new desert landscaping with drip irrigation and lights. This extraordinary home offers a rare combination of quality, comfort, and modern convenience in a premier Pasadena location.
Property Details
Price:
$2,988,000
MLS #:
SB26066210
Status:
Active
Beds:
3
Baths:
4
Type:
Single Family
Subtype:
Single Family Residence
Neighborhood:
647pasadenasw
Listed Date:
Apr 1, 2026
Finished Sq Ft:
3,928
Lot Size:
9,355 sqft / 0.21 acres (approx)
Year Built:
1992
Schools
School District:
Pasadena Unified
Interior
Appliances
DW, MW, RF, ES, HOD, TW
Bathrooms
3 Full Bathrooms, 1 Half Bathroom
Cooling
CA
Heating
CF
Laundry Features
IR, DINC, WINC
Levels
S
Exterior
Architectural Style
CRF
Common Walls
NCW
Community Features
SL, CRB
Garage Spaces
2
Parking Spots
2
Parking Total
2
Patio And Porch Features
CO
View
NO
Financial
Get Out There, A Simply Outgoing Approach to Life. James Outland Jr. is one of those rare people who simply has an outgoing approach to life. No matter the activity… from dune buggy riding to skydiving to motorcycling to riding the local Pismo Beach waves… James Outland Jr. approaches life with a “just get out there and do it” kind of attitude. A zest for Life. James’ zest for life is obviously apparent in his many exciting hobbies. In his spare time, he loves riding dune buggies or hi…
More About JamesMortgage Calculator
Map
Current real estate data for Single Family in Pasadena as of Apr 06, 2026
326
Single Family Listed
61
Avg DOM
467
Avg $ / SqFt
$1,506,291
Avg List Price
Community
- Address632 S. Grand AV Pasadena CA
- CityPasadena
- CountyLos Angeles
- Zip Code91105
Similar Listings Nearby
Property Summary
- 632 S. Grand AV Pasadena CA is a Single Family for sale in Pasadena, CA, 91105. It is listed for $2,988,000 and features 3 beds, 4 baths, and has approximately 3,928 square feet of living space, and was originally constructed in 1992. The current price per square foot is $761. The average price per square foot for Single Family listings in Pasadena is $467. The average listing price for Single Family in Pasadena is $1,506,291. To schedule a showing of MLS#sb26066210 at 632 S. Grand AV in Pasadena, CA, contact your James Outland agent at 8057482262.
Courtesy of Keller Williams Realty. Disclaimer: All data relating to real estate for sale on this page comes from the Broker Reciprocity (BR) of the California Regional Multiple Listing Service. Detailed information about real estate listings held by brokerage firms other than James Outland include the name of the listing broker. Neither the listing company nor James Outland shall be responsible for any typographical errors, misinformation, misprints and shall be held totally harmless. The Broker providing this data believes it to be correct, but advises interested parties to confirm any item before relying on it in a purchase decision. Copyright 2026. California Regional Multiple Listing Service. All rights reserved. 632 S. Grand AV
Pasadena, CA

















































































