$2,850,000
18216 Sparhawk WY
Morgan Hill, CA, 95037
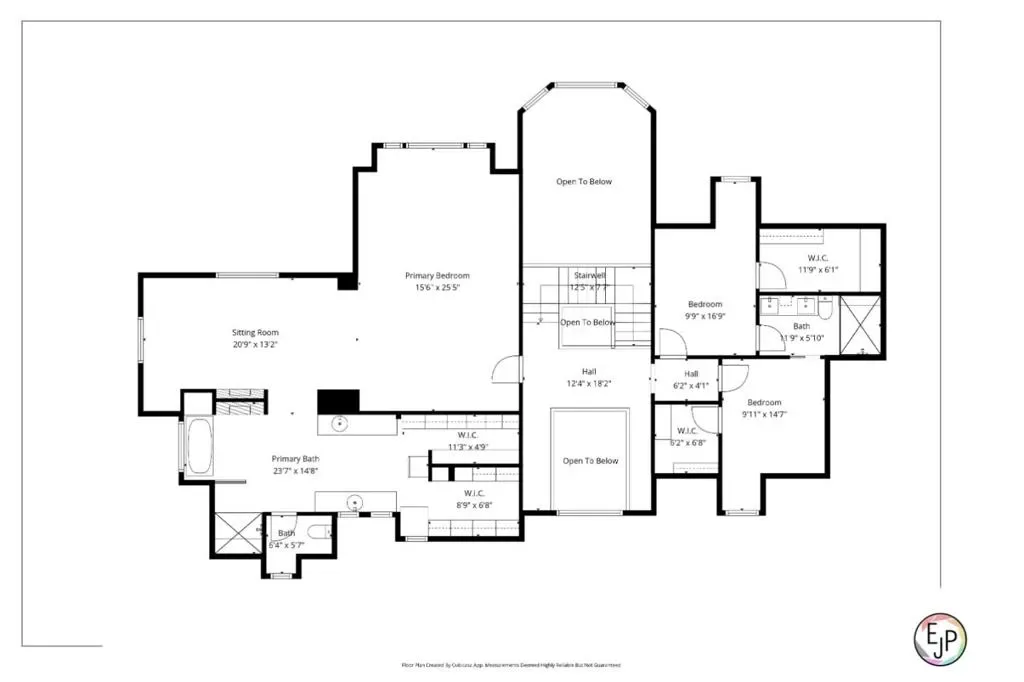
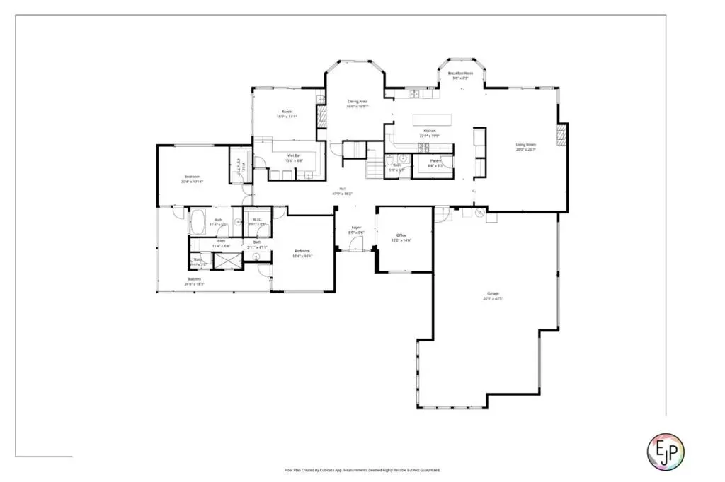
Located in one of Morgan Hills most desirable hillside communities, this home in the sought after Sparhawk neighborhood offers privacy, space, and stunning valley views behind a private gated entry. Inside, youll find 5 bedrooms and 3.5 bathrooms with a flexible layout, including two bedrooms on the main level, a dedicated office, and open living spaces filled with natural light. The kitchen features granite countertops, a center island, and flows seamlessly into the main living areas. Upstairs, the spacious primary suite includes a custom walk in closet and well appointed bath. The backyard is built for entertaining with a pool, spa, and multiple seating areas surrounded by mature landscaping. Additional highlights include a 3 car garage and a prime location just minutes from Hale Road, Monterey Road, and Highway 101.
Property Details
Price:
$2,850,000
MLS #:
ML82040987
Status:
Pending
Beds:
5
Baths:
4
Type:
Single Family
Subtype:
Single Family Residence
Neighborhood:
699notdefined
Listed Date:
Apr 13, 2026
Finished Sq Ft:
4,601
Lot Size:
28,749 sqft / 0.66 acres (approx)
Year Built:
1994
Schools
School District:
Other
Interior
Appliances
DW, GD, MW, RF, TC, GO, GS
Bathrooms
3 Full Bathrooms, 1 Half Bathroom
Cooling
CA
Flooring
WOOD
Heating
CF, FIR
Exterior
Attached Garage YN
1
Common Walls
NCW
Construction Materials
STC
Direction Faces
W
Fencing
WD
Garage Spaces
3
Parking Spots
6
Parking Total
6
Roof
SHN
Financial
Get Out There, A Simply Outgoing Approach to Life. James Outland Jr. is one of those rare people who simply has an outgoing approach to life. No matter the activity… from dune buggy riding to skydiving to motorcycling to riding the local Pismo Beach waves… James Outland Jr. approaches life with a “just get out there and do it” kind of attitude. A zest for Life. James’ zest for life is obviously apparent in his many exciting hobbies. In his spare time, he loves riding dune buggies or hi…
More About JamesMortgage Calculator
Map
Current real estate data for Single Family in Morgan Hill as of Apr 22, 2026
127
Single Family Listed
53
Avg DOM
819
Avg $ / SqFt
$1,894,401
Avg List Price
Community
- Address18216 Sparhawk WY Morgan Hill CA
- CityMorgan Hill
- CountySanta Clara
- Zip Code95037
Similar Listings Nearby
Property Summary
- 18216 Sparhawk WY Morgan Hill CA is a Single Family for sale in Morgan Hill, CA, 95037. It is listed for $2,850,000 and features 5 beds, 4 baths, and has approximately 4,601 square feet of living space, and was originally constructed in 1994. The current price per square foot is $619. The average price per square foot for Single Family listings in Morgan Hill is $819. The average listing price for Single Family in Morgan Hill is $1,894,401. To schedule a showing of MLS#ml82040987 at 18216 Sparhawk WY in Morgan Hill, CA, contact your James Outland agent at 8057482262.
Courtesy of Christie’s International Real Estate Sereno. Disclaimer: All data relating to real estate for sale on this page comes from the Broker Reciprocity (BR) of the California Regional Multiple Listing Service. Detailed information about real estate listings held by brokerage firms other than James Outland include the name of the listing broker. Neither the listing company nor James Outland shall be responsible for any typographical errors, misinformation, misprints and shall be held totally harmless. The Broker providing this data believes it to be correct, but advises interested parties to confirm any item before relying on it in a purchase decision. Copyright 2026. California Regional Multiple Listing Service. All rights reserved. 18216 Sparhawk WY
Morgan Hill, CA














































































