$1,095,000
1140 12th Street
Los Osos, CA, 93402
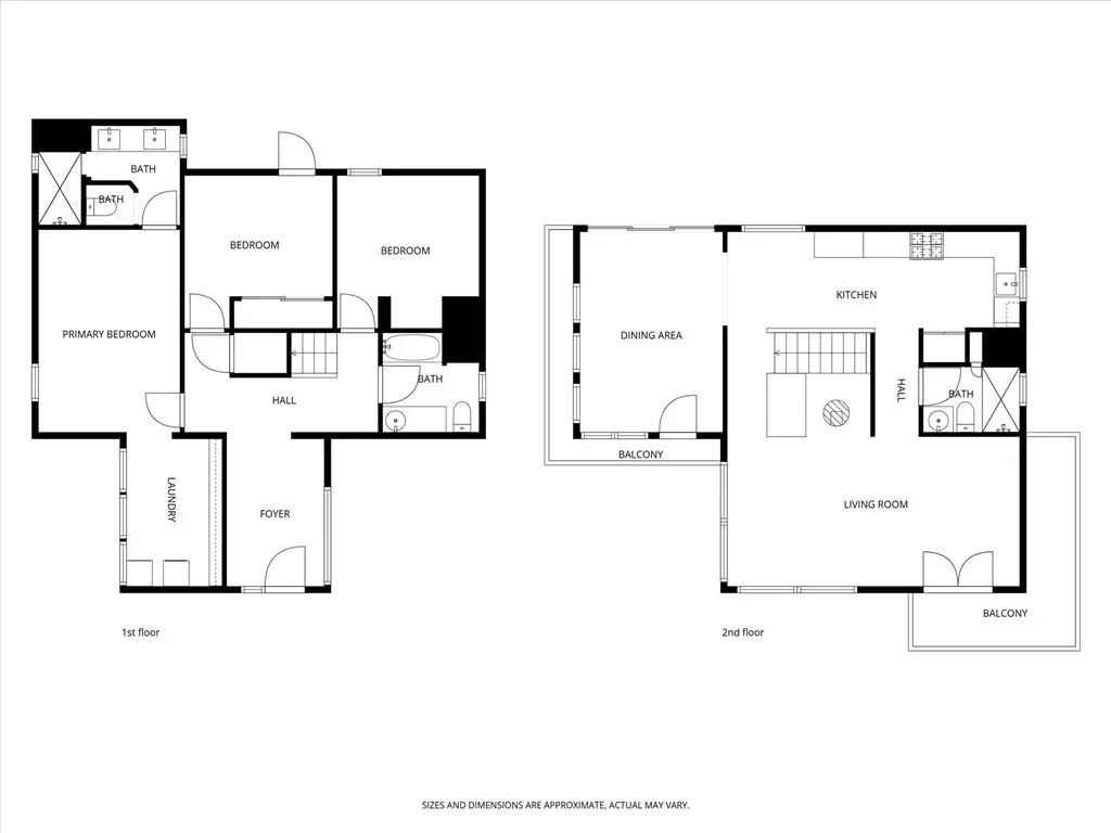
Discover this beautiful and unique modern home tucked away in a private, relaxing setting just 7 houses from the Elfin Forest and moments to Baywood Park. Thoughtfully designed, this home blends style with breathtaking natural surroundings. The wraparound balcony showcases sweeping views of the bay, Morro Rock, iconic Seven Sisters and spectacular sunsets. Inside, every room features beautiful exposed wood beam ceilings. Downstairs, the primary suite offers a spacious walk-in closet with laundry, shower, and custom double-sink vanity. There are also two guest bedrooms, one with access to the back yard, plus a separate 3/4 guest bathroom. Upstairs, the light-filled living room impresses with expansive windows, a freestanding fireplace, and French doors opening to the front balcony. The updated kitchen features black granite countertops, matching appliances and an adjoining spacious dining area with large viewing windows. There is a 3/4 guest bathroom for convenience. Outside, enjoy the large blank-space backyard ready for you to add your own personal touches and two convenient storage sheds. The front yard has planter boxes, a charming boardwalk walkway, carport and long driveway which provides extra parking . Located on a quiet cul-de-sac street, this one-of-a-kind coastal property offers privacy, beauty, and convenience.
Property Details
Price:
$1,095,000
MLS #:
SC26044731
Status:
Active
Beds:
3
Baths:
3
Type:
Single Family
Subtype:
Single Family Residence
Subdivision:
Town of El Moro680
Neighborhood:
ososlososos
Listed Date:
Mar 5, 2026
Finished Sq Ft:
1,810
Lot Size:
6,250 sqft / 0.14 acres (approx)
Year Built:
1972
Schools
School District:
San Luis Coastal Unified
Interior
Appliances
DW, RF, GR, _6BS, HOD, WHU
Bathrooms
1 Full Bathroom, 2 Three Quarter Bathrooms
Cooling
NO
Heating
FA, GAS, FIR
Laundry Features
ICL, DINC, WINC
Levels
U
Main Level Bathrooms
1
Main Level Bedrooms
1
Exterior
Common Walls
NCW
Community Features
GOLF, HIKI, BIKI
Fencing
AVG
Other Structures
SH
Security Features
SD, COD
Spa Features
NO
View
BK, HI, WA
Financial
Get Out There, A Simply Outgoing Approach to Life. James Outland Jr. is one of those rare people who simply has an outgoing approach to life. No matter the activity… from dune buggy riding to skydiving to motorcycling to riding the local Pismo Beach waves… James Outland Jr. approaches life with a “just get out there and do it” kind of attitude. A zest for Life. James’ zest for life is obviously apparent in his many exciting hobbies. In his spare time, he loves riding dune buggies or hi…
More About JamesMortgage Calculator
Map
Current real estate data for Single Family in Los Osos as of Apr 23, 2026
47
Single Family Listed
60
Avg DOM
609
Avg $ / SqFt
$1,193,964
Avg List Price
Community
- Address1140 12th Street Los Osos CA
- SubdivisionTown of El Moro(680)
- CityLos Osos
- CountySan Luis Obispo
- Zip Code93402
Similar Listings Nearby
Property Summary
- Located in the Town of El Moro(680) subdivision, 1140 12th Street Los Osos CA is a Single Family for sale in Los Osos, CA, 93402. It is listed for $1,095,000 and features 3 beds, 3 baths, and has approximately 1,810 square feet of living space, and was originally constructed in 1972. The current price per square foot is $605. The average price per square foot for Single Family listings in Los Osos is $609. The average listing price for Single Family in Los Osos is $1,193,964. To schedule a showing of MLS#sc26044731 at 1140 12th Street in Los Osos, CA, contact your James Outland agent at 8057482262.
Courtesy of BHGRE HAVEN PROPERTIES. Disclaimer: All data relating to real estate for sale on this page comes from the Broker Reciprocity (BR) of the California Regional Multiple Listing Service. Detailed information about real estate listings held by brokerage firms other than James Outland include the name of the listing broker. Neither the listing company nor James Outland shall be responsible for any typographical errors, misinformation, misprints and shall be held totally harmless. The Broker providing this data believes it to be correct, but advises interested parties to confirm any item before relying on it in a purchase decision. Copyright 2026. California Regional Multiple Listing Service. All rights reserved. 1140 12th Street
Los Osos, CA
















































