$1,198,000
20288 Northwest SQ
Cupertino, CA, 95014
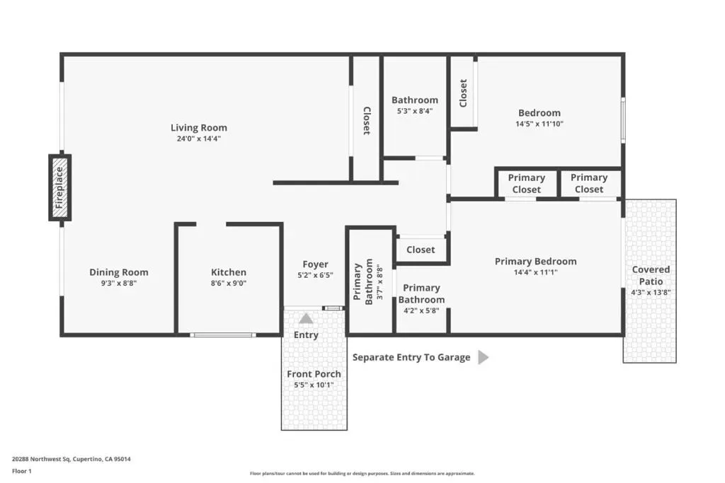
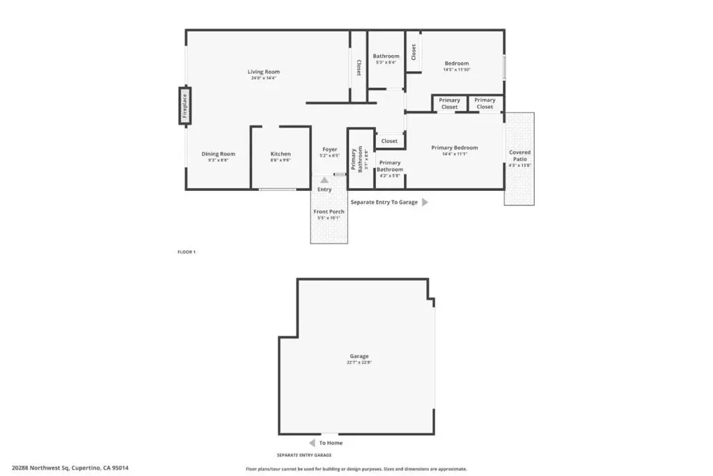
Welcome to 20288 Northwest Square, a beautifully updated, east-facing corner-unit townhome in Cupertino’s highly sought-after Northpoint community. Just minutes from Apple Park, Main Street Cupertino, and major commute routes, this location offers exceptional convenience. Inside, vaulted ceilings and abundant natural light highlight a functional floor plan with a spacious family room, dining area, and breakfast nook. The refreshed kitchen features quartz countertops, new stainless steel appliances, and refinished cabinetry. Recent upgrades include wide-plank flooring, updated lighting, and modern hardware throughout. The primary suite offers a private balcony, generous double closet, and an updated bathroom. A spacious secondary bedroom and renovated hall bath provide flexibility for guests or a home office. Additional highlights include an attached 2-car garage with washer and dryer hookups. Enjoy resort-style amenities including a pool, fitness center, tennis courts, game room, and multiple playgrounds, all within a peaceful, well-maintained community. Located near top-rated Cupertino schools, this is a rare opportunity in a prime Silicon Valley location.
Property Details
Price:
$1,198,000
MLS #:
ML82043992
Status:
Active
Beds:
2
Baths:
2
Type:
Townhouse
Neighborhood:
699notdefined
Listed Date:
Apr 22, 2026
Finished Sq Ft:
1,142
Lot Size:
1,415 sqft / 0.03 acres (approx)
Year Built:
1973
Schools
School District:
Other
Elementary School:
Other
Middle School:
Cupertino
High School:
Fremont
Interior
Appliances
DW, GD, HOD
Bathrooms
2 Full Bathrooms
Cooling
NO
Flooring
LAM
Heating
FA
Laundry Features
IG
Exterior
Attached Garage YN
1
Direction Faces
E
Garage Spaces
2
Parking Spots
2
Parking Total
2
Roof
CMP, SHN
Spa Features
COM
Financial
HOA Fee
$667
Get Out There, A Simply Outgoing Approach to Life. James Outland Jr. is one of those rare people who simply has an outgoing approach to life. No matter the activity… from dune buggy riding to skydiving to motorcycling to riding the local Pismo Beach waves… James Outland Jr. approaches life with a “just get out there and do it” kind of attitude. A zest for Life. James’ zest for life is obviously apparent in his many exciting hobbies. In his spare time, he loves riding dune buggies or hi…
More About JamesMortgage Calculator
Map
Community
- Address20288 Northwest SQ Cupertino CA
- CityCupertino
- CountySanta Clara
- Zip Code95014
Similar Listings Nearby
Property Summary
- 20288 Northwest SQ Cupertino CA is a Townhouse for sale in Cupertino, CA, 95014. It is listed for $1,198,000 and features 2 beds, 2 baths, and has approximately 1,142 square feet of living space, and was originally constructed in 1973. The current price per square foot is $1,049. The average price per square foot for Townhouse listings in Cupertino is $1,026. The average listing price for Townhouse in Cupertino is $1,370,260. To schedule a showing of MLS#ml82043992 at 20288 Northwest SQ in Cupertino, CA, contact your James Outland agent at 8057482262.
Courtesy of Coldwell Banker Realty. Disclaimer: All data relating to real estate for sale on this page comes from the Broker Reciprocity (BR) of the California Regional Multiple Listing Service. Detailed information about real estate listings held by brokerage firms other than James Outland include the name of the listing broker. Neither the listing company nor James Outland shall be responsible for any typographical errors, misinformation, misprints and shall be held totally harmless. The Broker providing this data believes it to be correct, but advises interested parties to confirm any item before relying on it in a purchase decision. Copyright 2026. California Regional Multiple Listing Service. All rights reserved. 20288 Northwest SQ
Cupertino, CA































