$438,900
15970 Lindero
Victorville, CA, 92395
Fully rehabbed property offering space, flexibility, and future upside.
The main home features 3 bedrooms, 2 bathrooms, and approximately 1,275 sq ft of permitted living space, fully updated and move-in ready.
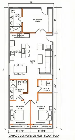
Additional expanded living areas bring the total functional space to approximately 2,200 sq ft, offering flexibility for extended living, home office use, or additional bedrooms.
Property includes an attached 2-car garage and a detached 4-car garage in the rear, providing a total of 6 garage spaces plus additional driveway parking. Ideal for multiple vehicles, work trucks, storage, or hobby use.
Functional layout supports multi-generational living with potential for separate living areas.
Seller has initiated plans for a 3 bedroom, 2 bathroom ADU. Existing structure is in place. Buyer to verify permits, plans, and feasibility.
Tesla solar system in place. Buyer to assume solar subject to provider terms and lender approval.
Septic system replaced in 2012. Property is in overall good condition.
Large approximately 18,000 sq ft lot. No HOA.
Buyer to verify all information including square footage, permits, and property use.
The main home features 3 bedrooms, 2 bathrooms, and approximately 1,275 sq ft of permitted living space, fully updated and move-in ready.
Additional expanded living areas bring the total functional space to approximately 2,200 sq ft, offering flexibility for extended living, home office use, or additional bedrooms.
Property includes an attached 2-car garage and a detached 4-car garage in the rear, providing a total of 6 garage spaces plus additional driveway parking. Ideal for multiple vehicles, work trucks, storage, or hobby use.
Functional layout supports multi-generational living with potential for separate living areas.
Seller has initiated plans for a 3 bedroom, 2 bathroom ADU. Existing structure is in place. Buyer to verify permits, plans, and feasibility.
Tesla solar system in place. Buyer to assume solar subject to provider terms and lender approval.
Septic system replaced in 2012. Property is in overall good condition.
Large approximately 18,000 sq ft lot. No HOA.
Buyer to verify all information including square footage, permits, and property use.
Property Details
Price:
$438,900
MLS #:
IV26063364
Status:
Active
Beds:
3
Baths:
2
Type:
Single Family
Subtype:
Single Family Residence
Neighborhood:
vicvictorville
Listed Date:
Apr 3, 2026
Finished Sq Ft:
1,275
Lot Size:
18,000 sqft / 0.41 acres (approx)
Year Built:
1979
Schools
School District:
Victor Valley Unified
Interior
Appliances
DW, GD, FSR, WHU
Bathrooms
2 Full Bathrooms
Cooling
CA
Heating
SO, CF
Laundry Features
WH
Levels
A
Main Level Bathrooms
1
Main Level Bedrooms
6
Exterior
Attached Garage YN
1
Common Walls
NCW
Community Features
RUR, SL
Garage Spaces
6
Parking Spots
6
Parking Total
6
View
NO
Financial
Get Out There, A Simply Outgoing Approach to Life. James Outland Jr. is one of those rare people who simply has an outgoing approach to life. No matter the activity… from dune buggy riding to skydiving to motorcycling to riding the local Pismo Beach waves… James Outland Jr. approaches life with a “just get out there and do it” kind of attitude. A zest for Life. James’ zest for life is obviously apparent in his many exciting hobbies. In his spare time, he loves riding dune buggies or hi…
More About JamesMortgage Calculator
Map
Current real estate data for Single Family in Victorville as of Apr 10, 2026
673
Single Family Listed
78
Avg DOM
218
Avg $ / SqFt
$388,270
Avg List Price
Community
- Address15970 Lindero Victorville CA
- CityVictorville
- CountySan Bernardino
- Zip Code92395
Similar Listings Nearby
Property Summary
- 15970 Lindero Victorville CA is a Single Family for sale in Victorville, CA, 92395. It is listed for $438,900 and features 3 beds, 2 baths, and has approximately 1,275 square feet of living space, and was originally constructed in 1979. The current price per square foot is $344. The average price per square foot for Single Family listings in Victorville is $218. The average listing price for Single Family in Victorville is $388,270. To schedule a showing of MLS#iv26063364 at 15970 Lindero in Victorville, CA, contact your James Outland agent at 8057482262.
Courtesy of JOSE ANTONIO DIAZ, BROKER. Disclaimer: All data relating to real estate for sale on this page comes from the Broker Reciprocity (BR) of the California Regional Multiple Listing Service. Detailed information about real estate listings held by brokerage firms other than James Outland include the name of the listing broker. Neither the listing company nor James Outland shall be responsible for any typographical errors, misinformation, misprints and shall be held totally harmless. The Broker providing this data believes it to be correct, but advises interested parties to confirm any item before relying on it in a purchase decision. Copyright 2026. California Regional Multiple Listing Service. All rights reserved. 15970 Lindero
Victorville, CA






















