$2,148,000
22921 Adolph AV
Torrance, CA, 90505
Welcome to 22921 Adolph Avenue, an exceptional Mediterranean-inspired residence nestled in a quiet, sought-after pocket of South Torrance. Framed by lush, mature landscaping and timeless architectural charm, this 5-bedroom, 4-bathroom home offers the perfect blend of elegance, space, and effortless indoor-outdoor living.
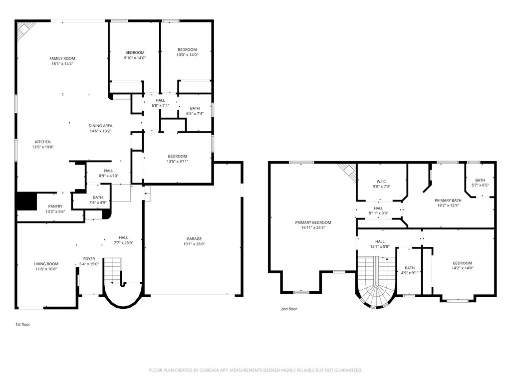
Step inside to soaring ceilings and an elegant, statement staircase that immediately sets the tone. Flooded with natural light, the home feels bright, open, and inviting at every turn. The thoughtfully designed floor plan flows seamlessly, ideal for both everyday living and elevated entertaining, complemented by stunning 9-inch wide plank flooring that adds warmth and a modern touch throughout.
At the heart of the home is a true chef’s kitchen, beautifully upgraded with new custom cabinetry, sleek quartz countertops, a premium Viking oven, built-in KitchenAid refrigerator, and a spacious walk-in pantry. Designed for both function and style, this space opens effortlessly to the living and dining areas, creating a cohesive and welcoming environment.
Expansive bifold doors blur the line between indoors and out, leading to a private, sun-drenched backyard. Enjoy serene outdoor living beneath the pergola, surrounded by lush greenery that enhances both privacy and tranquility – perfect for relaxing or hosting gatherings year-round.
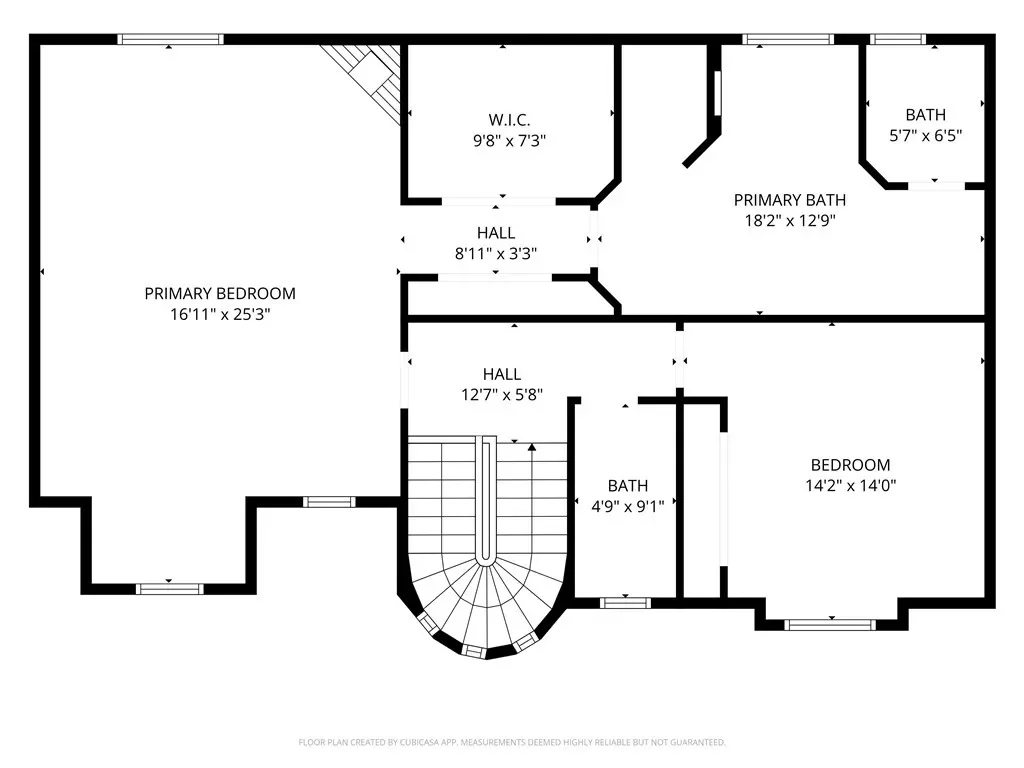
The spacious primary suite is a true retreat, offering two generous closets and a massive, spa-like bathroom. Thoughtfully updated bathrooms throughout the home feature refined finishes and a clean, modern aesthetic.
Each additional bedroom is well-proportioned, providing flexibility for guests, family, or a home office. Complete with a 2-car garage and situated just moments from Lago Seco Park, located within the acclaimed Torrance School District – this home offers both convenience and a peaceful neighborhood setting.
A rare opportunity to own a light-filled, beautifully upgraded home in one of South Torrance’s most desirable communities.
Step inside to soaring ceilings and an elegant, statement staircase that immediately sets the tone. Flooded with natural light, the home feels bright, open, and inviting at every turn. The thoughtfully designed floor plan flows seamlessly, ideal for both everyday living and elevated entertaining, complemented by stunning 9-inch wide plank flooring that adds warmth and a modern touch throughout.
At the heart of the home is a true chef’s kitchen, beautifully upgraded with new custom cabinetry, sleek quartz countertops, a premium Viking oven, built-in KitchenAid refrigerator, and a spacious walk-in pantry. Designed for both function and style, this space opens effortlessly to the living and dining areas, creating a cohesive and welcoming environment.
Expansive bifold doors blur the line between indoors and out, leading to a private, sun-drenched backyard. Enjoy serene outdoor living beneath the pergola, surrounded by lush greenery that enhances both privacy and tranquility – perfect for relaxing or hosting gatherings year-round.
The spacious primary suite is a true retreat, offering two generous closets and a massive, spa-like bathroom. Thoughtfully updated bathrooms throughout the home feature refined finishes and a clean, modern aesthetic.
Each additional bedroom is well-proportioned, providing flexibility for guests, family, or a home office. Complete with a 2-car garage and situated just moments from Lago Seco Park, located within the acclaimed Torrance School District – this home offers both convenience and a peaceful neighborhood setting.
A rare opportunity to own a light-filled, beautifully upgraded home in one of South Torrance’s most desirable communities.
Property Details
Price:
$2,148,000
MLS #:
SB26064589
Status:
Active
Beds:
5
Baths:
4
Type:
Single Family
Subtype:
Single Family Residence
Neighborhood:
129southtorrance
Listed Date:
Apr 1, 2026
Finished Sq Ft:
3,369
Lot Size:
5,788 sqft / 0.13 acres (approx)
Year Built:
2007
Schools
School District:
Torrance Unified
Interior
Appliances
DW, GR, _6BS
Bathrooms
4 Full Bathrooms
Cooling
NO
Flooring
TILE, VINY
Heating
CF
Interior Features
CF, FC, RECL, GRNC, PTRY, HCEL, ILFP
Laundry Features
IG
Levels
U
Main Level Bathrooms
2
Main Level Bedrooms
3
Exterior
Architectural Style
MED
Attached Garage YN
1
Common Walls
NCW
Community Features
SDW, SL
Direction Faces
E
Garage Spaces
2
Parking Spots
4
Parking Total
4
Patio And Porch Features
OPN, POF
Roof
SPT
Spa Features
NO
View
NE
Financial
Get Out There, A Simply Outgoing Approach to Life. James Outland Jr. is one of those rare people who simply has an outgoing approach to life. No matter the activity… from dune buggy riding to skydiving to motorcycling to riding the local Pismo Beach waves… James Outland Jr. approaches life with a “just get out there and do it” kind of attitude. A zest for Life. James’ zest for life is obviously apparent in his many exciting hobbies. In his spare time, he loves riding dune buggies or hi…
More About JamesMortgage Calculator
Map
Current real estate data for Single Family in Torrance as of Apr 09, 2026
327
Single Family Listed
56
Avg DOM
481
Avg $ / SqFt
$1,002,991
Avg List Price
Community
- Address22921 Adolph AV Torrance CA
- CityTorrance
- CountyLos Angeles
- Zip Code90505
Similar Listings Nearby
Property Summary
- 22921 Adolph AV Torrance CA is a Single Family for sale in Torrance, CA, 90505. It is listed for $2,148,000 and features 5 beds, 4 baths, and has approximately 3,369 square feet of living space, and was originally constructed in 2007. The current price per square foot is $638. The average price per square foot for Single Family listings in Torrance is $481. The average listing price for Single Family in Torrance is $1,002,991. To schedule a showing of MLS#sb26064589 at 22921 Adolph AV in Torrance, CA, contact your James Outland agent at 8057482262.
Courtesy of The Sotto Sol Property Collect. Disclaimer: All data relating to real estate for sale on this page comes from the Broker Reciprocity (BR) of the California Regional Multiple Listing Service. Detailed information about real estate listings held by brokerage firms other than James Outland include the name of the listing broker. Neither the listing company nor James Outland shall be responsible for any typographical errors, misinformation, misprints and shall be held totally harmless. The Broker providing this data believes it to be correct, but advises interested parties to confirm any item before relying on it in a purchase decision. Copyright 2026. California Regional Multiple Listing Service. All rights reserved. 22921 Adolph AV
Torrance, CA













































