$1,150,000
39470 Sagewood
Temecula, CA, 92591
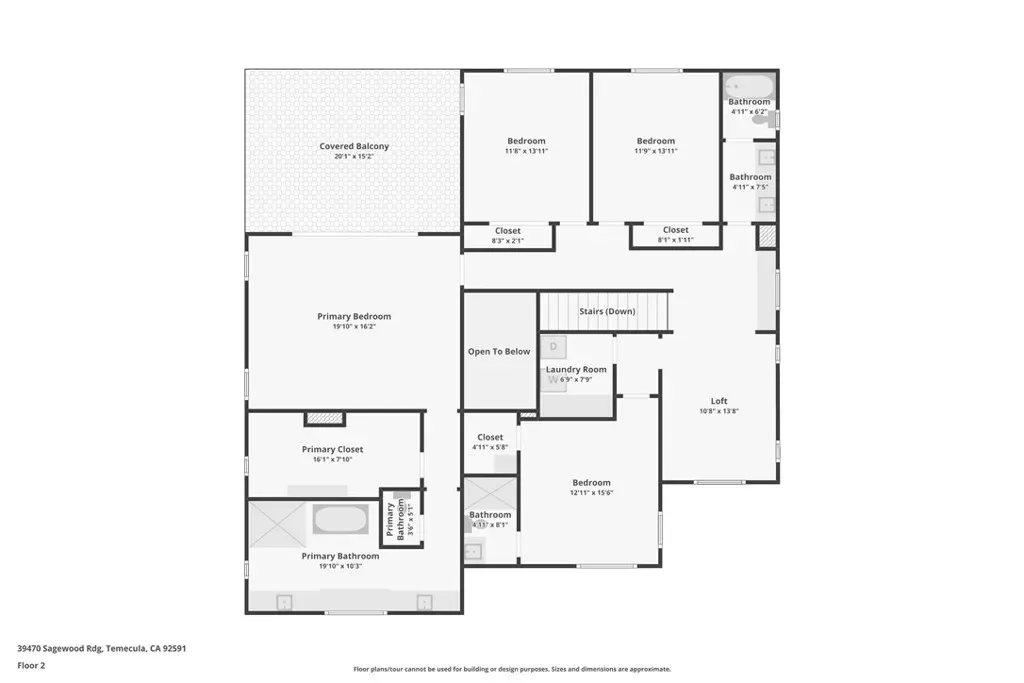
Private in-law suite with separate entrance, PAID-IN-FULL solar system, and over $148,000 in builder and owner upgrades! Beautifully upgraded home in the highly desirable Sommers Bend community of Temecula featuring 5 bedrooms, 4.5 bathrooms, plus a loft and a dedicated office, offering 3,523 sq. ft. of thoughtfully designed living space.
The in-law suite provides a true independent living area with its own living room, kitchenette, bedroom, and full bathroom—ideal for multi-generational living or guests. The open-concept kitchen includes a large granite island with seating, rich cabinetry, stainless steel appliances, modern pendant lighting, and a walk-in pantry, flowing seamlessly into the main living areas.
Additional highlights include a downstairs office, spacious loft, and a primary suite with a large private balcony—perfect for relaxing and enjoying the surrounding views. The exterior of the home is wired for security cameras, and the front of the home features permanent holiday lighting already installed for year-round convenience.
Exit outside to an expansive pool-sized backyard with turf and drought-tolerant landscaping, creating a low-maintenance space ready for your own private outdoor oasis. Located in Sommers Bend, residents enjoy resort-style pools, parks, sports courts, and scenic walking trails, all just minutes from the renowned Temecula wineries, shopping, and dining.
The in-law suite provides a true independent living area with its own living room, kitchenette, bedroom, and full bathroom—ideal for multi-generational living or guests. The open-concept kitchen includes a large granite island with seating, rich cabinetry, stainless steel appliances, modern pendant lighting, and a walk-in pantry, flowing seamlessly into the main living areas.
Additional highlights include a downstairs office, spacious loft, and a primary suite with a large private balcony—perfect for relaxing and enjoying the surrounding views. The exterior of the home is wired for security cameras, and the front of the home features permanent holiday lighting already installed for year-round convenience.
Exit outside to an expansive pool-sized backyard with turf and drought-tolerant landscaping, creating a low-maintenance space ready for your own private outdoor oasis. Located in Sommers Bend, residents enjoy resort-style pools, parks, sports courts, and scenic walking trails, all just minutes from the renowned Temecula wineries, shopping, and dining.
Property Details
Price:
$1,150,000
MLS #:
SW26058068
Status:
Active
Beds:
5
Baths:
5
Type:
Single Family
Subtype:
Single Family Residence
Neighborhood:
srcarsouthwestriversidecounty
Listed Date:
Mar 20, 2026
Finished Sq Ft:
3,523
Lot Size:
8,207 sqft / 0.19 acres (approx)
Year Built:
2023
Schools
School District:
Temecula Unified
Elementary School:
Rancho
Middle School:
Margarita
High School:
Temecula Valley
Interior
Appliances
DW, GD, MW, WLR, GR, GS, BIR, CO, DO, HOD, SCO, TW
Bathrooms
4 Full Bathrooms, 1 Half Bathroom
Cooling
CA, ELC, ZN
Flooring
TILE, LAM, VINY, CARP
Heating
FA, CF
Interior Features
RECL, DATA, SUND, GRNC, OFP, PTRY, BL, HCEL, ILFP, QTZC
Laundry Features
ELC, IR, UL, WH
Levels
U
Main Level Bathrooms
2
Main Level Bedrooms
1
Exterior
Attached Garage YN
1
Common Walls
NCW
Community Features
SDW, STM, SL, PSV, PARK, BIKI, DGP
Fencing
VNL, AVG
Garage Spaces
2
Parking Spots
4
Parking Total
4
Roof
TLE
Spa Features
AS, COM
View
NE
Financial
HOA Fee
$145
HOA Fee 2
$86
HOA Fee 2 Frequency
MO
HOA Fee Frequency
MO
Get Out There, A Simply Outgoing Approach to Life. James Outland Jr. is one of those rare people who simply has an outgoing approach to life. No matter the activity… from dune buggy riding to skydiving to motorcycling to riding the local Pismo Beach waves… James Outland Jr. approaches life with a “just get out there and do it” kind of attitude. A zest for Life. James’ zest for life is obviously apparent in his many exciting hobbies. In his spare time, he loves riding dune buggies or hi…
More About JamesMortgage Calculator
Map
Current real estate data for Single Family in Temecula as of Apr 09, 2026
464
Single Family Listed
56
Avg DOM
377
Avg $ / SqFt
$1,069,897
Avg List Price
Community
- Address39470 Sagewood Temecula CA
- CityTemecula
- CountyRiverside
- Zip Code92591
Similar Listings Nearby
Property Summary
- 39470 Sagewood Temecula CA is a Single Family for sale in Temecula, CA, 92591. It is listed for $1,150,000 and features 5 beds, 5 baths, and has approximately 3,523 square feet of living space, and was originally constructed in 2023. The current price per square foot is $326. The average price per square foot for Single Family listings in Temecula is $377. The average listing price for Single Family in Temecula is $1,069,897. To schedule a showing of MLS#sw26058068 at 39470 Sagewood in Temecula, CA, contact your James Outland agent at 8057482262.
Courtesy of Redfin Corporation. Disclaimer: All data relating to real estate for sale on this page comes from the Broker Reciprocity (BR) of the California Regional Multiple Listing Service. Detailed information about real estate listings held by brokerage firms other than James Outland include the name of the listing broker. Neither the listing company nor James Outland shall be responsible for any typographical errors, misinformation, misprints and shall be held totally harmless. The Broker providing this data believes it to be correct, but advises interested parties to confirm any item before relying on it in a purchase decision. Copyright 2026. California Regional Multiple Listing Service. All rights reserved. 39470 Sagewood
Temecula, CA























































