$650,000
19701 Dovetail
Tehachapi, CA, 93561
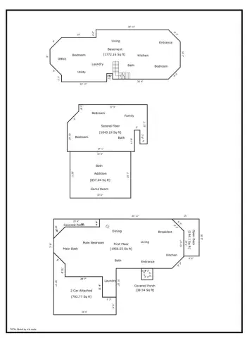
Properly located in the exclusive Oak knolls of Tehachapi, this commanding 3-level Spanish-Style estate offers space, versatility and timeless charm. Enter on the main level into a bright living room and great room that flow into a stylish kitchen with granite counters, a new microwave and dishwasher. A cozy patio, perfect for BBQ’s or morning coffee. The main level also includes a laundry room, 3/4 bath, and a spacious primary suite with spa tub, separate shower, and private patio. Upstairs features two bedrooms, a loft, an additional primary suite or game/bonus room and a hall bath. The lower level offers just under 1,800 sqft. with kitchen, 2 bedrooms, laundry, 2 bonus rooms, and private entrance with parking. Ideal for extended family or rental potential of $1,500+ a month. This home truly has room for everyone! The home also features a brand new tankless water heater, full home generator, newly installed leach lines for the septic system, 8.58kw Solar System that will be paid-off at the close of sale. Pool table, equipment and light fixture are included in sale. County Assessor Record state home is 4 bedrooms 3 baths and 2,524 sqft. Buyer to do their own due diligence & verify all facts contained in MLS. MLS is deemed reliable, but often may NOT be accurate. Don’t miss out on this amazing opportunity to own in Tehachapi!
Property Details
Price:
$650,000
MLS #:
SR25239034
Status:
Active
Beds:
6
Baths:
5
Type:
Single Family
Subtype:
Single Family Residence
Neighborhood:
thptehachapi
Listed Date:
Oct 13, 2025
Finished Sq Ft:
5,628
Lot Size:
213,444 sqft / 4.90 acres (approx)
Year Built:
2006
Schools
School District:
Kern Union
Interior
Appliances
DW, MW, RF, PR, TW
Bathrooms
3 Full Bathrooms, 2 Three Quarter Bathrooms
Cooling
CA, DL
Flooring
TILE, WOOD
Heating
PRO, CF
Laundry Features
IR, IN, PRO, WH
Exterior
Architectural Style
SPN
Community Features
RUR, MTN
Construction Materials
STC, DWAL
Parking Spots
2
Roof
CMP
Financial
Get Out There, A Simply Outgoing Approach to Life. James Outland Jr. is one of those rare people who simply has an outgoing approach to life. No matter the activity… from dune buggy riding to skydiving to motorcycling to riding the local Pismo Beach waves… James Outland Jr. approaches life with a “just get out there and do it” kind of attitude. A zest for Life. James’ zest for life is obviously apparent in his many exciting hobbies. In his spare time, he loves riding dune buggies or hi…
More About JamesMortgage Calculator
Map
Current real estate data for Single Family in Tehachapi as of Dec 22, 2025
27
Single Family Listed
68
Avg DOM
260
Avg $ / SqFt
$501,525
Avg List Price
Community
- Address19701 Dovetail Tehachapi CA
- CityTehachapi
- CountyKern
- Zip Code93561
Similar Listings Nearby
Property Summary
- 19701 Dovetail Tehachapi CA is a Single Family for sale in Tehachapi, CA, 93561. It is listed for $650,000 and features 6 beds, 5 baths, and has approximately 5,628 square feet of living space, and was originally constructed in 2006. The current price per square foot is $115. The average price per square foot for Single Family listings in Tehachapi is $260. The average listing price for Single Family in Tehachapi is $501,525. To schedule a showing of MLS#sr25239034 at 19701 Dovetail in Tehachapi, CA, contact your James Outland agent at 8057482262.
Courtesy of Tehachapi Summit Real Estate. Disclaimer: All data relating to real estate for sale on this page comes from the Broker Reciprocity (BR) of the California Regional Multiple Listing Service. Detailed information about real estate listings held by brokerage firms other than James Outland include the name of the listing broker. Neither the listing company nor James Outland shall be responsible for any typographical errors, misinformation, misprints and shall be held totally harmless. The Broker providing this data believes it to be correct, but advises interested parties to confirm any item before relying on it in a purchase decision. Copyright 2025. California Regional Multiple Listing Service. All rights reserved. 19701 Dovetail
Tehachapi, CA














































