$1,898,000
664 San Pedro AV
Sunnyvale, CA, 94085
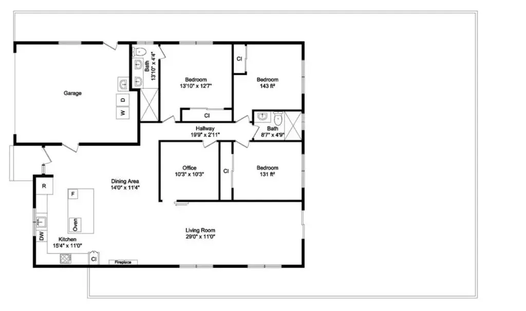
Move-in ready and beautifully remodeled home is located in the desirable Sunnyvale neighborhoods. Featuring 3 bedrooms and 2 bathrooms, plus an office, it is designed for modern comfort with an open-concept layout and abundant natural light. The modern remodeled kitchen features a gourmet kitchen with a large island, quartz countertops, sleek cabinetry, and high-end SS appliances. The dining area boasts a stylish accent wall, while the bright and private living room offers a seamless flow for entertaining. The spacious primary suite includes a designer accent wall and a luxurious en-suite bath with double vanities and a spacious walk-in shower. Two additional bedrooms are bright and versatile. A separate home office provides the perfect space for remote work. The expansive backyard features paver flooring, mature trees, and ample privacy. Home upgrades include an upgraded electrical panel, updated plumbing, engineered hardwood flooring, smart thermostat, recessed lighting, double-pane windows and insulated garage with epoxy flooring. Located near major tech campuses like Google, Meta and Amazon, the home is within walking distance of parks, playgrounds, and downtown Sunnyvale shopping, dining, and Caltrain. With modern updates and thoughtful design, this home is a must-see!
Property Details
Price:
$1,898,000
MLS #:
ML82031779
Status:
Pending
Beds:
3
Baths:
2
Type:
Single Family
Subtype:
Single Family Residence
Neighborhood:
699notdefined
Listed Date:
Jan 20, 2026
Finished Sq Ft:
1,542
Lot Size:
5,550 sqft / 0.13 acres (approx)
Year Built:
1954
Schools
School District:
Other
Interior
Bathrooms
2 Full Bathrooms
Cooling
CA
Heating
CF
Exterior
Parking Spots
2
Roof
SHN
Financial
Get Out There, A Simply Outgoing Approach to Life. James Outland Jr. is one of those rare people who simply has an outgoing approach to life. No matter the activity… from dune buggy riding to skydiving to motorcycling to riding the local Pismo Beach waves… James Outland Jr. approaches life with a “just get out there and do it” kind of attitude. A zest for Life. James’ zest for life is obviously apparent in his many exciting hobbies. In his spare time, he loves riding dune buggies or hi…
More About JamesMortgage Calculator
Map
Current real estate data for Single Family in Sunnyvale as of Feb 14, 2026
91
Single Family Listed
61
Avg DOM
914
Avg $ / SqFt
$1,619,620
Avg List Price
Community
- Address664 San Pedro AV Sunnyvale CA
- CitySunnyvale
- CountySanta Clara
- Zip Code94085
Similar Listings Nearby
Property Summary
- 664 San Pedro AV Sunnyvale CA is a Single Family for sale in Sunnyvale, CA, 94085. It is listed for $1,898,000 and features 3 beds, 2 baths, and has approximately 1,542 square feet of living space, and was originally constructed in 1954. The current price per square foot is $1,231. The average price per square foot for Single Family listings in Sunnyvale is $914. The average listing price for Single Family in Sunnyvale is $1,619,620. To schedule a showing of MLS#ml82031779 at 664 San Pedro AV in Sunnyvale, CA, contact your James Outland agent at 8057482262.
Courtesy of Keller Williams Thrive. Disclaimer: All data relating to real estate for sale on this page comes from the Broker Reciprocity (BR) of the California Regional Multiple Listing Service. Detailed information about real estate listings held by brokerage firms other than James Outland include the name of the listing broker. Neither the listing company nor James Outland shall be responsible for any typographical errors, misinformation, misprints and shall be held totally harmless. The Broker providing this data believes it to be correct, but advises interested parties to confirm any item before relying on it in a purchase decision. Copyright 2026. California Regional Multiple Listing Service. All rights reserved. 664 San Pedro AV
Sunnyvale, CA





























































