$1,300,000
9440 Wentworth
Sunland, CA, 91040
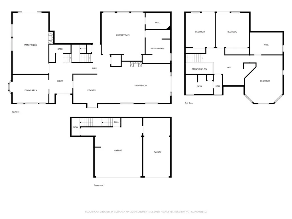
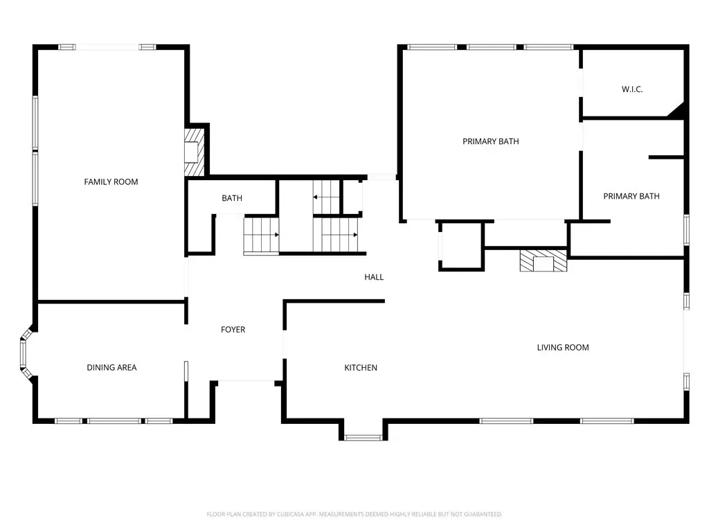
Welcome to this 4-bedroom, 3-bathroom home offering nearly 3,500 sq. ft. of living space in the peaceful Shadow Hills neighborhood. This light-filled two-story residence features a generous floor plan with a large living room and family room, both with fireplaces, a formal dining room, and a kitchen with built-in appliances.
French doors throughout the home open to private patios, creating a seamless indoor-outdoor flow ideal for entertaining and everyday living.
Situated on a sprawling 15,000+ sq. ft. lot, the property features mature landscaping, fruit trees, and plenty of space to enjoy the outdoors. Additional highlights include a 3-car garage, dedicated laundry area, and an approximately 1,000 sq. ft. storage room with its own entrance—offering excellent potential for conversion to additional living space, guest quarters, or a studio (buyer to verify).
A rare opportunity to own a spacious property in desirable Shadow Hills with room to customize and make it your own. Some images in this listing have been virtually staged and/or digitally altered.
French doors throughout the home open to private patios, creating a seamless indoor-outdoor flow ideal for entertaining and everyday living.
Situated on a sprawling 15,000+ sq. ft. lot, the property features mature landscaping, fruit trees, and plenty of space to enjoy the outdoors. Additional highlights include a 3-car garage, dedicated laundry area, and an approximately 1,000 sq. ft. storage room with its own entrance—offering excellent potential for conversion to additional living space, guest quarters, or a studio (buyer to verify).
A rare opportunity to own a spacious property in desirable Shadow Hills with room to customize and make it your own. Some images in this listing have been virtually staged and/or digitally altered.
Property Details
Price:
$1,300,000
MLS #:
PW26066351
Status:
Active
Beds:
3
Baths:
3
Type:
Single Family
Subtype:
Single Family Residence
Neighborhood:
659sunlandtujunga
Listed Date:
Apr 2, 2026
Finished Sq Ft:
3,450
Lot Size:
15,262 sqft / 0.35 acres (approx)
Year Built:
1992
Schools
School District:
Los Angeles Unified
Interior
Bathrooms
3 Full Bathrooms
Cooling
CA
Heating
CF
Laundry Features
IG
Levels
U
Main Level Bathrooms
2
Main Level Bedrooms
2
Exterior
Attached Garage YN
1
Common Walls
NCW
Community Features
CRB
Garage Spaces
3
Parking Spots
5
Parking Total
5
Spa Features
NO
View
CN, HI, MT
Financial
Get Out There, A Simply Outgoing Approach to Life. James Outland Jr. is one of those rare people who simply has an outgoing approach to life. No matter the activity… from dune buggy riding to skydiving to motorcycling to riding the local Pismo Beach waves… James Outland Jr. approaches life with a “just get out there and do it” kind of attitude. A zest for Life. James’ zest for life is obviously apparent in his many exciting hobbies. In his spare time, he loves riding dune buggies or hi…
More About JamesMortgage Calculator
Map
Current real estate data for Single Family in Sunland as of Apr 09, 2026
62
Single Family Listed
45
Avg DOM
528
Avg $ / SqFt
$829,903
Avg List Price
Community
- Address9440 Wentworth Sunland CA
- CitySunland
- CountyLos Angeles
- Zip Code91040
Similar Listings Nearby
Property Summary
- 9440 Wentworth Sunland CA is a Single Family for sale in Sunland, CA, 91040. It is listed for $1,300,000 and features 3 beds, 3 baths, and has approximately 3,450 square feet of living space, and was originally constructed in 1992. The current price per square foot is $377. The average price per square foot for Single Family listings in Sunland is $528. The average listing price for Single Family in Sunland is $829,903. To schedule a showing of MLS#pw26066351 at 9440 Wentworth in Sunland, CA, contact your James Outland agent at 8057482262.
Courtesy of Edgestone Real Estate, Inc.. Disclaimer: All data relating to real estate for sale on this page comes from the Broker Reciprocity (BR) of the California Regional Multiple Listing Service. Detailed information about real estate listings held by brokerage firms other than James Outland include the name of the listing broker. Neither the listing company nor James Outland shall be responsible for any typographical errors, misinformation, misprints and shall be held totally harmless. The Broker providing this data believes it to be correct, but advises interested parties to confirm any item before relying on it in a purchase decision. Copyright 2026. California Regional Multiple Listing Service. All rights reserved. 9440 Wentworth
Sunland, CA














































