$569,000
183 Moreno Lane
Sugarloaf, CA, 92386
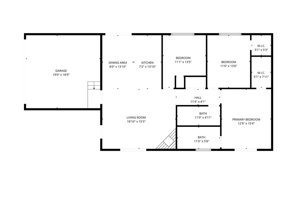
Brand-new 2026 construction! This single level home offers 3 spacious bedrooms, 2 bathrooms (both offering double sink), walk in closets, 2 attached car garage and driveway. Thoughtfully designed with a perfect blend of modern style and classic mountain charm, it has an open floor plan, wood ceilings, modern cabinetry, elegant quartz countertops, cozy fireplace, private balcony in the living room and in the primary suite. The primary bathroom features its private jetted tub. In home washer and dryer hookups for more comfort and convenience. Situated on flat lot in an excellent location, this home is located just 6 miles (approximately 10 minutes) from the ski resort. Walking distance to the local elementary and high schools, yet far enough to maintain peace and quiet. A rare opportunity to own a beautifully finished new construction that captures the essence of modern mountain living.
Perfect for first time buyers and investors. For sale separately or together with a neighbor home (189 Moreno Lane – Sugarloaf)
Perfect for first time buyers and investors. For sale separately or together with a neighbor home (189 Moreno Lane – Sugarloaf)
Property Details
Price:
$569,000
MLS #:
OC26053545
Status:
Active
Beds:
3
Baths:
2
Type:
Single Family
Subtype:
Single Family Residence
Neighborhood:
sglfsugarloaf
Listed Date:
Mar 31, 2026
Finished Sq Ft:
1,320
Lot Size:
4,750 sqft / 0.11 acres (approx)
Year Built:
2026
Schools
School District:
Bear Valley Unified
Elementary School:
Baldwin
Middle School:
Big Bear
High School:
Big Bear
Interior
Appliances
DW, GD, MW, RF, WLR, GO, GR, BIR, _6BS, HOD, TW, VEF
Bathrooms
2 Full Bathrooms
Cooling
NO
Flooring
TILE, VINY
Heating
FA, CF, FIR
Interior Features
CF, RECL, LRBA, OFP, BL, QTZC
Laundry Features
GAS, IR, IN, WH
Levels
A
Main Level Bathrooms
2
Main Level Bedrooms
3
Exterior
Architectural Style
CB
Attached Garage YN
1
Common Walls
NCW
Community Features
CRB, HRS, MTN, LAKE, PARK, FISH, WATE, HIKI, BIKI, DGP
Fencing
WD
Garage Spaces
2
New Construction YN
1
Parking Spots
2
Parking Total
2
Patio And Porch Features
CO, DK, POF
Roof
SHN
Security Features
SD, COD, FSDS, FS, FRW
Spa Features
BA, HT
View
MT
Window Features
SCR, DPW
Financial
Get Out There, A Simply Outgoing Approach to Life. James Outland Jr. is one of those rare people who simply has an outgoing approach to life. No matter the activity… from dune buggy riding to skydiving to motorcycling to riding the local Pismo Beach waves… James Outland Jr. approaches life with a “just get out there and do it” kind of attitude. A zest for Life. James’ zest for life is obviously apparent in his many exciting hobbies. In his spare time, he loves riding dune buggies or hi…
More About JamesMortgage Calculator
Map
Current real estate data for Single Family in Sugarloaf as of Apr 06, 2026
71
Single Family Listed
81
Avg DOM
373
Avg $ / SqFt
$356,028
Avg List Price
Community
- Address183 Moreno Lane Sugarloaf CA
- CitySugarloaf
- CountySan Bernardino
- Zip Code92386
Similar Listings Nearby
Property Summary
- 183 Moreno Lane Sugarloaf CA is a Single Family for sale in Sugarloaf, CA, 92386. It is listed for $569,000 and features 3 beds, 2 baths, and has approximately 1,320 square feet of living space, and was originally constructed in 2026. The current price per square foot is $431. The average price per square foot for Single Family listings in Sugarloaf is $373. The average listing price for Single Family in Sugarloaf is $356,028. To schedule a showing of MLS#oc26053545 at 183 Moreno Lane in Sugarloaf, CA, contact your James Outland agent at 8057482262.
Courtesy of O’Donnell Real Estate. Disclaimer: All data relating to real estate for sale on this page comes from the Broker Reciprocity (BR) of the California Regional Multiple Listing Service. Detailed information about real estate listings held by brokerage firms other than James Outland include the name of the listing broker. Neither the listing company nor James Outland shall be responsible for any typographical errors, misinformation, misprints and shall be held totally harmless. The Broker providing this data believes it to be correct, but advises interested parties to confirm any item before relying on it in a purchase decision. Copyright 2026. California Regional Multiple Listing Service. All rights reserved. 183 Moreno Lane
Sugarloaf, CA































































