$2,300,000
E Clark
Santa Maria, CA, 93455
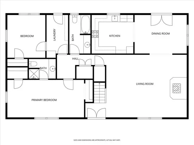
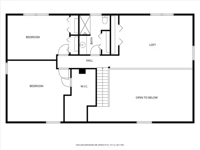
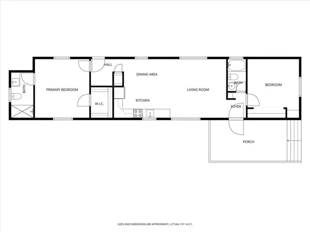
Set on 23 acres of flat, usable land just minutes from town, this rare property combines privacy, convenience, and versatility. This property is tucked away on a private road with shared well access, with scattered oak trees adding charm and natural beauty. Whether you’re seeking a multi-family retreat, an income-producing opportunity, or a blank canvas to bring your vision to life, this property has it all. At the heart of the property is a spacious 2,800+ sq ft log home featuring 4 bedrooms and 3 bathrooms. The warm, rustic character of the log construction blends seamlessly with modern updates, including brand-new flooring and a recently upgraded kitchen. An inviting loft overlooks the open-concept living area below. Lots of windows flood the space with natural light. A fresh concrete pad enhances function for outdoor entertaining and makes this home move-in ready. The property also includes a remodeled and permitted two bedroom, two bath single wide with privacy fencing and its own two car detached garage – great for a caretaker, extended guests or rental income. Car enthusiasts and hobbyists will appreciate the abundance of garage space. The main home is complemented by a detached four-car garage as well. With its flat, usable terrain, this 23-acre parcel is DEFINITELY a rare find. The property is a true blank canvas, offering endless potential—whether you dream of creating a working ranch, establishing equestrian facilities, planting orchards or vineyards, needing warehouse or storage space for your business or simply enjoying wide-open space in a peaceful setting. Don’t let this opportunity pass you by. **Please do not drive on private road without confirmed appointment.**
Property Details
Price:
$2,300,000
MLS #:
PI25224514
Status:
Active
Beds:
6
Baths:
5
Type:
Single Family
Subtype:
Single Family Residence
Subdivision:
Orcutt East870
Neighborhood:
orct
Listed Date:
Sep 25, 2025
Finished Sq Ft:
3,505
Lot Size:
1,008,414 sqft / 23.15 acres (approx)
Year Built:
1986
Schools
School District:
Orcutt Union
Interior
Bathrooms
4 Full Bathrooms, 1 Three Quarter Bathroom
Cooling
NO
Heating
FA, WDS
Laundry Features
IR, IN
Exterior
Architectural Style
LOG
Community Features
RUR
Construction Materials
LOG
Parking Spots
5
Financial
Get Out There, A Simply Outgoing Approach to Life. James Outland Jr. is one of those rare people who simply has an outgoing approach to life. No matter the activity… from dune buggy riding to skydiving to motorcycling to riding the local Pismo Beach waves… James Outland Jr. approaches life with a “just get out there and do it” kind of attitude. A zest for Life. James’ zest for life is obviously apparent in his many exciting hobbies. In his spare time, he loves riding dune buggies or hi…
More About JamesMortgage Calculator
Map
Current real estate data for Single Family in Santa Maria as of Nov 07, 2025
64
Single Family Listed
56
Avg DOM
417
Avg $ / SqFt
$799,845
Avg List Price
Community
- AddressE Clark Santa Maria CA
- SubdivisionOrcutt East(870)
- CitySanta Maria
- CountySanta Barbara
- Zip Code93455
Subdivisions in Santa Maria
Similar Listings Nearby
Property Summary
- Located in the Orcutt East(870) subdivision, E Clark Santa Maria CA is a Single Family for sale in Santa Maria, CA, 93455. It is listed for $2,300,000 and features 6 beds, 5 baths, and has approximately 3,505 square feet of living space, and was originally constructed in 1986. The current price per square foot is $656. The average price per square foot for Single Family listings in Santa Maria is $417. The average listing price for Single Family in Santa Maria is $799,845. To schedule a showing of MLS#pi25224514 at E Clark in Santa Maria, CA, contact your James Outland agent at 8057482262.
Courtesy of Better Homes and Gardens Real Estate Haven Properties. Disclaimer: All data relating to real estate for sale on this page comes from the Broker Reciprocity (BR) of the California Regional Multiple Listing Service. Detailed information about real estate listings held by brokerage firms other than James Outland include the name of the listing broker. Neither the listing company nor James Outland shall be responsible for any typographical errors, misinformation, misprints and shall be held totally harmless. The Broker providing this data believes it to be correct, but advises interested parties to confirm any item before relying on it in a purchase decision. Copyright 2025. California Regional Multiple Listing Service. All rights reserved. E Clark
Santa Maria, CA

































