$1,200,000
2606 Paul Minnie AV
Santa Cruz, CA, 95062
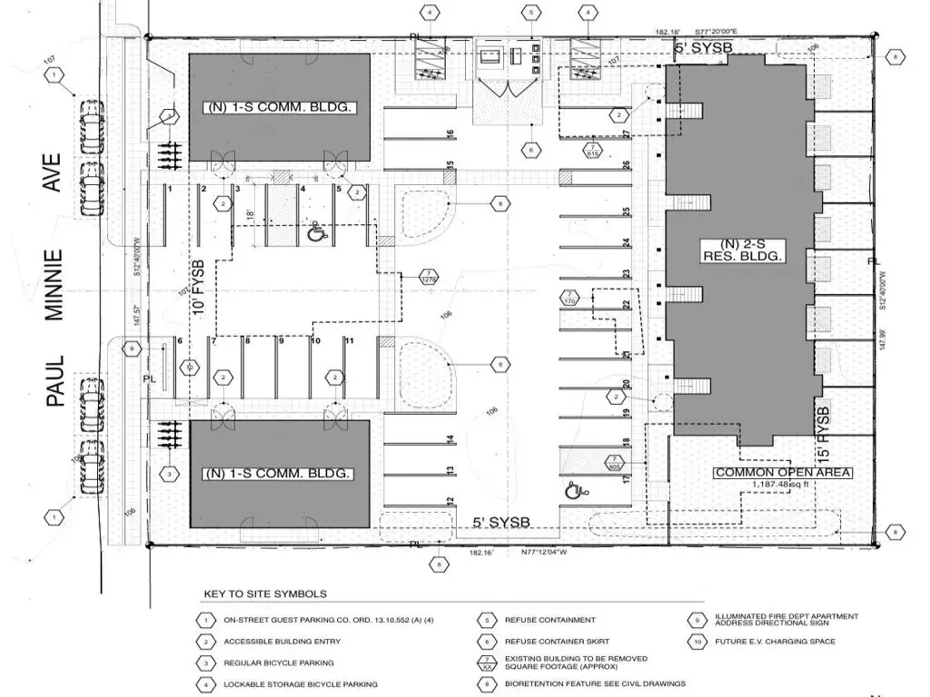
The proposed development site offers a highly promising opportunity for a mixed-use project that integrates modern residential apartments with vibrant commercial spaces. The tentative plan include 15 units apartment and 2 commercial buildings.
Property Details
Price:
$1,200,000
MLS #:
ML82026158
Status:
Active
Beds:
3
Baths:
1
Type:
Single Family
Subtype:
Single Family Residence
Neighborhood:
699notdefined
Listed Date:
Oct 29, 2025
Finished Sq Ft:
1,260
Lot Size:
27,269 sqft / 0.63 acres (approx)
Year Built:
1909
Schools
School District:
Other
Interior
Bathrooms
1 Full Bathroom
Cooling
NO
Heating
FF
Exterior
Common Walls
NCW
Garage Spaces
1
Parking Spots
1
Parking Total
1
Roof
CMP
Financial
Get Out There, A Simply Outgoing Approach to Life. James Outland Jr. is one of those rare people who simply has an outgoing approach to life. No matter the activity… from dune buggy riding to skydiving to motorcycling to riding the local Pismo Beach waves… James Outland Jr. approaches life with a “just get out there and do it” kind of attitude. A zest for Life. James’ zest for life is obviously apparent in his many exciting hobbies. In his spare time, he loves riding dune buggies or hi…
More About JamesMortgage Calculator
Map
Current real estate data for Single Family in Santa Cruz as of Apr 11, 2026
135
Single Family Listed
94
Avg DOM
1,029
Avg $ / SqFt
$1,979,194
Avg List Price
Community
- Address2606 Paul Minnie AV Santa Cruz CA
- CitySanta Cruz
- CountySanta Cruz
- Zip Code95062
Similar Listings Nearby
Property Summary
- 2606 Paul Minnie AV Santa Cruz CA is a Single Family for sale in Santa Cruz, CA, 95062. It is listed for $1,200,000 and features 3 beds, 1 baths, and has approximately 1,260 square feet of living space, and was originally constructed in 1909. The current price per square foot is $952. The average price per square foot for Single Family listings in Santa Cruz is $1,029. The average listing price for Single Family in Santa Cruz is $1,979,194. To schedule a showing of MLS#ml82026158 at 2606 Paul Minnie AV in Santa Cruz, CA, contact your James Outland agent at 8057482262.
Courtesy of K&K Homes Realty. Disclaimer: All data relating to real estate for sale on this page comes from the Broker Reciprocity (BR) of the California Regional Multiple Listing Service. Detailed information about real estate listings held by brokerage firms other than James Outland include the name of the listing broker. Neither the listing company nor James Outland shall be responsible for any typographical errors, misinformation, misprints and shall be held totally harmless. The Broker providing this data believes it to be correct, but advises interested parties to confirm any item before relying on it in a purchase decision. Copyright 2026. California Regional Multiple Listing Service. All rights reserved. 2606 Paul Minnie AV
Santa Cruz, CA



