$1,165,000
1055 Nobel DR
Santa Cruz, CA, 95060
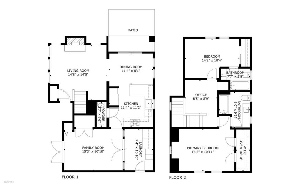
Nestled in, yet conveniently located, this meticulously cared for home sits in a coveted upper westside neighborhood, better known as Nobel. Designed by notable architectural firm Thatcher & Thompson, this is the model home for the Westmont development. Upon entering youre greeted by vaulted ceilings, hardwood floors and an inviting, cozy gas fireplace. The home has been meticulously cared for with pride of ownership evident around every corner. The garage space has been converted with an elegant double-door entrance, unique to the development, providing flex opportunities for a lounge room, home office, or simply for additional storage. Close to the UCSC main entrance, University Terrace Park, and Moore Creek Preserve, the location provides access to some of the best that Santa Cruz has to offer. The lushly landscaped back patio enhances the sense of privacy and creates a sheltered garden feel, ideal for outdoor relaxation or quiet work. Private parking and an efficient layout support both work-from-home and comfortable small-household living. Residents of the development also enjoy access to a private pool, BBQ area, private alley, and riparian open spaceamenities that add to the communitys charm and year-round usability.
Property Details
Price:
$1,165,000
MLS #:
ML82030290
Status:
Active
Beds:
2
Baths:
3
Type:
Single Family
Subtype:
Single Family Residence
Neighborhood:
699notdefined
Listed Date:
Jan 20, 2026
Finished Sq Ft:
1,200
Lot Size:
2,087 sqft / 0.05 acres (approx)
Year Built:
1996
Schools
School District:
Other
Interior
Bathrooms
2 Full Bathrooms, 1 Half Bathroom
Flooring
WOOD
Heating
FA
Laundry Features
IG
Exterior
Parking Spots
1
Roof
CMP
Financial
HOA Fee
$157
HOA Frequency
MO
Get Out There, A Simply Outgoing Approach to Life. James Outland Jr. is one of those rare people who simply has an outgoing approach to life. No matter the activity… from dune buggy riding to skydiving to motorcycling to riding the local Pismo Beach waves… James Outland Jr. approaches life with a “just get out there and do it” kind of attitude. A zest for Life. James’ zest for life is obviously apparent in his many exciting hobbies. In his spare time, he loves riding dune buggies or hi…
More About JamesMortgage Calculator
Map
Current real estate data for Single Family in Santa Cruz as of Feb 15, 2026
102
Single Family Listed
87
Avg DOM
974
Avg $ / SqFt
$1,885,387
Avg List Price
Community
- Address1055 Nobel DR Santa Cruz CA
- CitySanta Cruz
- CountySanta Cruz
- Zip Code95060
Similar Listings Nearby
Property Summary
- 1055 Nobel DR Santa Cruz CA is a Single Family for sale in Santa Cruz, CA, 95060. It is listed for $1,165,000 and features 2 beds, 3 baths, and has approximately 1,200 square feet of living space, and was originally constructed in 1996. The current price per square foot is $971. The average price per square foot for Single Family listings in Santa Cruz is $974. The average listing price for Single Family in Santa Cruz is $1,885,387. To schedule a showing of MLS#ml82030290 at 1055 Nobel DR in Santa Cruz, CA, contact your James Outland agent at 8057482262.
Courtesy of Compass. Disclaimer: All data relating to real estate for sale on this page comes from the Broker Reciprocity (BR) of the California Regional Multiple Listing Service. Detailed information about real estate listings held by brokerage firms other than James Outland include the name of the listing broker. Neither the listing company nor James Outland shall be responsible for any typographical errors, misinformation, misprints and shall be held totally harmless. The Broker providing this data believes it to be correct, but advises interested parties to confirm any item before relying on it in a purchase decision. Copyright 2026. California Regional Multiple Listing Service. All rights reserved. 1055 Nobel DR
Santa Cruz, CA









































































































