$735,000
1650 Verde
San Miguel, CA, 93451
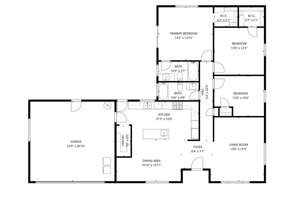
Welcome to your private slice of Central Coast living in the charming community of San Miguel. Set on 2.02 acres alongside the Salinas River, this beautifully updated single-story home offers 1494 sf, 3 bedrooms and 2 bathrooms with breathtaking, unobstructed views that stretch as far as the eye can see. Thoughtfully upgraded throughout, the home features laminate wood flooring that flows seamlessly through most of the living spaces, creating a cohesive and elevated feel. The spacious kitchen is a true centerpiece, complete with quartz countertops, abundant cabinetry and a stylish island with butcher block top and bar sink—perfect for cooking, gathering and entertaining. The dining area connects directly to the kitchen, making hosting effortless. The inviting living room is filled with natural light thanks to large windows, and down the hallway you’ll find two guest bedrooms, a full bathroom and the primary suite. The primary suite offers a comfortable retreat with a walk-in closet, ensuite bathroom and sliding glass door leading to the covered patio. Step outside and enjoy the expansive patio space, where blooming wisteria and jasmine create a peaceful setting with a wonderful aroma. The fully fenced yard provides endless potential to customize your outdoor space, while the property’s rare access to the Salinas River invites exploration and a true connection to nature. Located in San Miguel, known for its tight-knit community and convenient access to Highway 101, this property offers both tranquility and accessibility. Unique, versatile and full of charm—this is one you won’t want to miss. Please view the Virtual Tour for additional information.
Property Details
Price:
$735,000
MLS #:
NS26065787
Status:
Active
Beds:
3
Baths:
2
Type:
Single Family
Subtype:
Single Family Residence
Neighborhood:
smigsanmiguel
Listed Date:
Apr 2, 2026
Finished Sq Ft:
1,494
Lot Size:
87,963 sqft / 2.02 acres (approx)
Year Built:
1986
Schools
School District:
San Miguel Joint Union
Interior
Appliances
DW, GD, PS, EO, HOD, WHU
Bathrooms
2 Full Bathrooms
Cooling
CA
Flooring
LAM
Heating
FA
Interior Features
CF
Laundry Features
IG
Levels
A
Main Level Bathrooms
2
Main Level Bedrooms
3
Exterior
Attached Garage YN
1
Common Walls
NCW
Community Features
SDW, PARK, HIKI, BIKI
Garage Spaces
2
Parking Spots
2
Parking Total
2
Roof
CMP
Spa Features
NO
View
RV, NE
Window Features
DPW
Financial
Get Out There, A Simply Outgoing Approach to Life. James Outland Jr. is one of those rare people who simply has an outgoing approach to life. No matter the activity… from dune buggy riding to skydiving to motorcycling to riding the local Pismo Beach waves… James Outland Jr. approaches life with a “just get out there and do it” kind of attitude. A zest for Life. James’ zest for life is obviously apparent in his many exciting hobbies. In his spare time, he loves riding dune buggies or hi…
More About JamesMortgage Calculator
Map
Current real estate data for Single Family in San Miguel as of Apr 06, 2026
14
Single Family Listed
147
Avg DOM
699
Avg $ / SqFt
$1,397,357
Avg List Price
Community
- Address1650 Verde San Miguel CA
- CitySan Miguel
- CountySan Luis Obispo
- Zip Code93451
Similar Listings Nearby
Property Summary
- 1650 Verde San Miguel CA is a Single Family for sale in San Miguel, CA, 93451. It is listed for $735,000 and features 3 beds, 2 baths, and has approximately 1,494 square feet of living space, and was originally constructed in 1986. The current price per square foot is $492. The average price per square foot for Single Family listings in San Miguel is $699. The average listing price for Single Family in San Miguel is $1,397,357. To schedule a showing of MLS#ns26065787 at 1650 Verde in San Miguel, CA, contact your James Outland agent at 8057482262.
Courtesy of Malik Real Estate Group, Inc.. Disclaimer: All data relating to real estate for sale on this page comes from the Broker Reciprocity (BR) of the California Regional Multiple Listing Service. Detailed information about real estate listings held by brokerage firms other than James Outland include the name of the listing broker. Neither the listing company nor James Outland shall be responsible for any typographical errors, misinformation, misprints and shall be held totally harmless. The Broker providing this data believes it to be correct, but advises interested parties to confirm any item before relying on it in a purchase decision. Copyright 2026. California Regional Multiple Listing Service. All rights reserved. 1650 Verde
San Miguel, CA

















































