$699,000
17368 Caminito Canasto
San Diego, CA, 92127
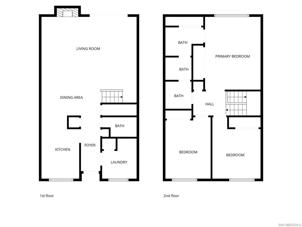
Reduced! Rarely available and Highly desirable interior facing WESTWOOD townhome overlooking the large, lush greenbelt. Enjoy the 1 car garage + additional parking space, and a gated front outdoor courtyard. The main level features luxury vinyl flooring, kitchen with upgraded countertops and newer refrigerator, laundry room with full sized, side-by-side washer and dryer + tons of storage, and a powder room (half bath). The kitchen opens to the huge living/dining room area with a gas fireplace and sliding doors to the back patio with direct access to the greenbelt behind. Upstairs are 2 bedrooms plus the primary bedroom and a spacious bathroom with tons of counter space. The light and bright primary bedroom features an abundance of closet space and a view of the greenbelt. Amenities of the Westwood Community include highly rated schools and access to the Westwood Club, which offers a pools, spa, fitness center, tennis, racquetball, and pickleball courts, a mini-golf course, and more! Solar lease in place and will be assumed by buyer. HOA pays water and trash. Newer refrigerator and water heater. Some listing photos have been virtually staged. Unstaged photos also provided.
Property Details
Price:
$699,000
MLS #:
260002774SD
Status:
Active
Beds:
3
Baths:
3
Type:
Condo
Subtype:
Condominium
Subdivision:
Rancho Bernardo
Neighborhood:
92127ranchobernardo
Listed Date:
Feb 5, 2026
Finished Sq Ft:
1,355
Year Built:
1975
Schools
Interior
Appliances
DW, FZ, GD, RF
Bathrooms
2 Full Bathrooms, 1 Half Bathroom
Cooling
CA
Heating
FA, SEE, FIR
Laundry Features
IR, SEE
Levels
U
Exterior
Construction Materials
STC
Garage Spaces
1
Parking Spots
2
Parking Total
2
Patio And Porch Features
CON
Roof
SEE
Spa Features
COM
Financial
HOA Fee
$465
HOA Fee Frequency
MO
Get Out There, A Simply Outgoing Approach to Life. James Outland Jr. is one of those rare people who simply has an outgoing approach to life. No matter the activity… from dune buggy riding to skydiving to motorcycling to riding the local Pismo Beach waves… James Outland Jr. approaches life with a “just get out there and do it” kind of attitude. A zest for Life. James’ zest for life is obviously apparent in his many exciting hobbies. In his spare time, he loves riding dune buggies or hi…
More About JamesMortgage Calculator
Map
Community
- Address17368 Caminito Canasto San Diego CA
- SubdivisionRancho Bernardo
- CitySan Diego
- CountySan Diego
- Zip Code92127
Similar Listings Nearby
Property Summary
- Located in the Rancho Bernardo subdivision, 17368 Caminito Canasto San Diego CA is a Condo for sale in San Diego, CA, 92127. It is listed for $699,000 and features 3 beds, 3 baths, and has approximately 1,355 square feet of living space, and was originally constructed in 1975. The current price per square foot is $516. The average price per square foot for Condo listings in San Diego is $686. The average listing price for Condo in San Diego is $749,041. To schedule a showing of MLS#260002774sd at 17368 Caminito Canasto in San Diego, CA, contact your James Outland agent at 8057482262.
Courtesy of Compass. Disclaimer: All data relating to real estate for sale on this page comes from the Broker Reciprocity (BR) of the California Regional Multiple Listing Service. Detailed information about real estate listings held by brokerage firms other than James Outland include the name of the listing broker. Neither the listing company nor James Outland shall be responsible for any typographical errors, misinformation, misprints and shall be held totally harmless. The Broker providing this data believes it to be correct, but advises interested parties to confirm any item before relying on it in a purchase decision. Copyright 2026. California Regional Multiple Listing Service. All rights reserved. 17368 Caminito Canasto
San Diego, CA

































































