$1,995,000
53 Mansfield Street
San Diego, CA, 92116
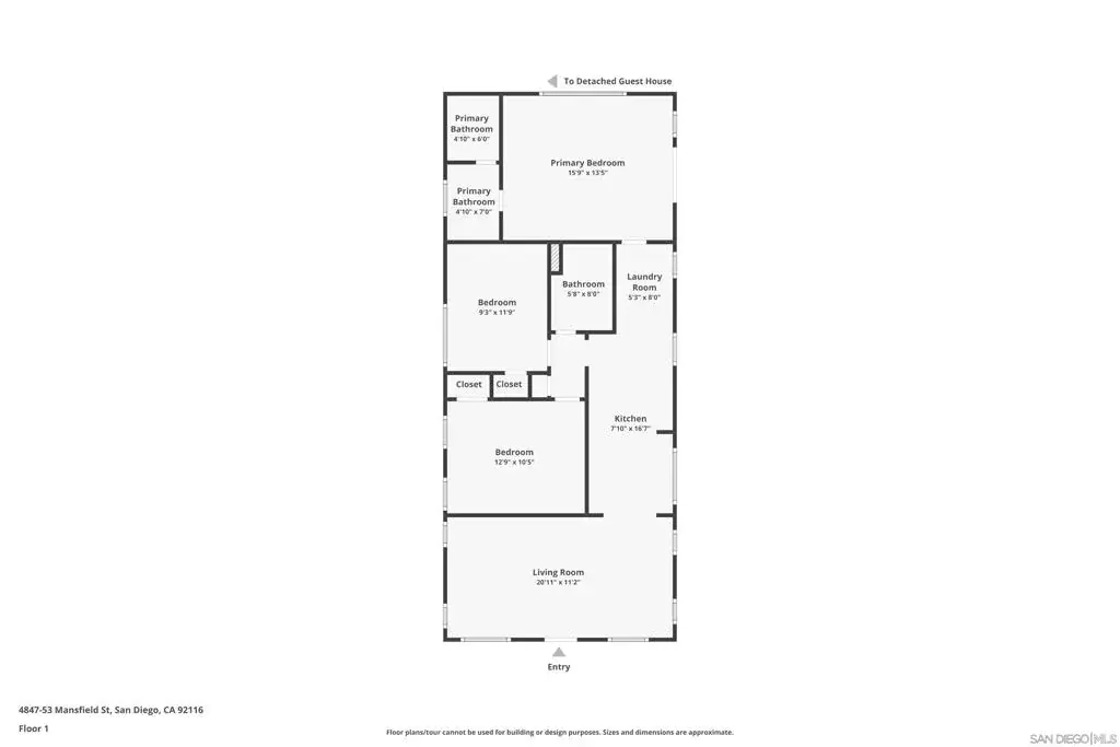
Turn-key and beautifully upgraded, this exceptional 4-unit investment opportunity in North Normal Heights offers the perfect blend of strong income, lifestyle flexibility, and long-term upside. Currently producing $129,900 per year in gross income, the property consists of four separate detached homes — a rare configuration that provides privacy, desirability, and premium tenant appeal. The front residence is a spacious 3-bedroom, 2-bath, approximately 1,200 SF home featuring in-unit laundry, off-street parking, and its own private yard, creating an ideal owner-occupant opportunity. Live comfortably in the front home while collecting approximately $80,760 annually from the three additional units, making this a compelling house-hack or portfolio addition. Each home is individually metered for gas and electric and offers dedicated off-street parking, while the rear three residences enjoy access to a thoughtfully landscaped shared backyard space. Extensive capital improvements provide peace of mind, including a new sewer line, updated plumbing, new foundations, and new roofs across all four units, with two of the homes completed as new construction in 2022. Situated in one of Metro San Diego’s most sought-after neighborhoods, the property offers unbeatable proximity to the vibrant shops, restaurants, coffee houses, and nightlife along Adams Avenue, as well as easy access to major freeways and surrounding communities. This is a rare opportunity to own a low-maintenance, high-performing asset in the heart of Normal Heights with both lifestyle and investment appeal.
Property Details
Price:
$1,995,000
MLS #:
260006698SD
Status:
Active
Beds:
0
Baths:
0
Type:
Single Family
Subdivision:
Normal Heights
Neighborhood:
92116normalheights
Listed Date:
Apr 2, 2026
Lot Size:
6,298 sqft / 0.14 acres (approx)
Year Built:
1925
Schools
Interior
Cooling
CA, ZN
Levels
A
Exterior
Financial
Get Out There, A Simply Outgoing Approach to Life. James Outland Jr. is one of those rare people who simply has an outgoing approach to life. No matter the activity… from dune buggy riding to skydiving to motorcycling to riding the local Pismo Beach waves… James Outland Jr. approaches life with a “just get out there and do it” kind of attitude. A zest for Life. James’ zest for life is obviously apparent in his many exciting hobbies. In his spare time, he loves riding dune buggies or hi…
More About JamesMortgage Calculator
Map
Current real estate data for Single Family in San Diego as of Apr 06, 2026
1,893
Single Family Listed
66
Avg DOM
558
Avg $ / SqFt
$1,230,325
Avg List Price
Community
- Address53 Mansfield Street San Diego CA
- SubdivisionNormal Heights
- CitySan Diego
- CountySan Diego
- Zip Code92116
Similar Listings Nearby
Property Summary
- Located in the Normal Heights subdivision, 53 Mansfield Street San Diego CA is a Single Family for sale in San Diego, CA, 92116. It is listed for $1,995,000 and features 0 beds, 0 baths, and has approximately 0 square feet of living space, and was originally constructed in 1925. The average price per square foot for Single Family listings in San Diego is $558. The average listing price for Single Family in San Diego is $1,230,325. To schedule a showing of MLS#260006698sd at 53 Mansfield Street in San Diego, CA, contact your James Outland agent at 8057482262.
Courtesy of Keller Williams La Jolla. Disclaimer: All data relating to real estate for sale on this page comes from the Broker Reciprocity (BR) of the California Regional Multiple Listing Service. Detailed information about real estate listings held by brokerage firms other than James Outland include the name of the listing broker. Neither the listing company nor James Outland shall be responsible for any typographical errors, misinformation, misprints and shall be held totally harmless. The Broker providing this data believes it to be correct, but advises interested parties to confirm any item before relying on it in a purchase decision. Copyright 2026. California Regional Multiple Listing Service. All rights reserved. 53 Mansfield Street
San Diego, CA



































































