$1,429,000
700 W Harbor Drive #TH5
San Diego, CA, 92101
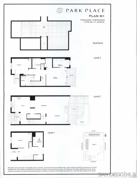
This renovated and modern townhouse offers 3BRs/3.5BAs and 6 different outdoor spaces, totaling approximately 850 sqft of outdoor living space (not included in the 1,772 sqft of indoor living space). Park Place Townhouse #5 offers three levels of living with 3 separate entrances, making it ideal for family and friends who want privacy. This townhome is perfect for people who want all the convenience and amenities of downtown highrise living, but prefer a little more space and privacy. There is a rooftop deck with irrigation and overlooks the pool area, two additional large patios and three balconies located off the bedrooms and kitchen. Upgrades include new flooring throughout, all new countertops and faucets, a new HVAC unit, motorized shades, a renovated kitchen and so much more. Park Place is a luxury community in the prestigious Marina District of Downtown San Diego. Residents can enjoy resort-style living with concierge, 24 hr security, pool/spa, gym, lounge, board room and guest parking. Park Place is right next to the waterfront, restaurants, shopping and the new Research and Development District (RaDD) which is home to brand new Class A life science space and retail amenities such as Javiers and an Equinox gym.
Property Details
Price:
$1,429,000
MLS #:
260008106SD
Status:
Active
Beds:
3
Baths:
4
Type:
Townhouse
Subdivision:
Downtown
Neighborhood:
92101sandiegodowntown
Listed Date:
Apr 7, 2026
Finished Sq Ft:
1,772
Lot Size:
65,372 sqft / 1.50 acres (approx)
Year Built:
2004
Schools
Interior
Appliances
DW, GD, MW, RF
Bathrooms
3 Full Bathrooms, 1 Half Bathroom
Cooling
CA
Heating
ELC, FA
Laundry Features
SEE
Levels
C
Exterior
Construction Materials
STC
Garage Spaces
2
Parking Spots
2
Parking Total
2
Roof
CON
Spa Features
COM
Financial
HOA Fee
$2,036
HOA Fee Frequency
MO
Get Out There, A Simply Outgoing Approach to Life. James Outland Jr. is one of those rare people who simply has an outgoing approach to life. No matter the activity… from dune buggy riding to skydiving to motorcycling to riding the local Pismo Beach waves… James Outland Jr. approaches life with a “just get out there and do it” kind of attitude. A zest for Life. James’ zest for life is obviously apparent in his many exciting hobbies. In his spare time, he loves riding dune buggies or hi…
More About JamesMortgage Calculator
Map
Community
- Address700 W Harbor Drive #TH5 San Diego CA
- SubdivisionDowntown
- CitySan Diego
- CountySan Diego
- Zip Code92101
Similar Listings Nearby
Property Summary
- Located in the Downtown subdivision, 700 W Harbor Drive #TH5 San Diego CA is a Townhouse for sale in San Diego, CA, 92101. It is listed for $1,429,000 and features 3 beds, 4 baths, and has approximately 1,772 square feet of living space, and was originally constructed in 2004. The current price per square foot is $806. The average price per square foot for Townhouse listings in San Diego is $625. The average listing price for Townhouse in San Diego is $927,675. To schedule a showing of MLS#260008106sd at 700 W Harbor Drive #TH5 in San Diego, CA, contact your James Outland agent at 8057482262.
Courtesy of Compass. Disclaimer: All data relating to real estate for sale on this page comes from the Broker Reciprocity (BR) of the California Regional Multiple Listing Service. Detailed information about real estate listings held by brokerage firms other than James Outland include the name of the listing broker. Neither the listing company nor James Outland shall be responsible for any typographical errors, misinformation, misprints and shall be held totally harmless. The Broker providing this data believes it to be correct, but advises interested parties to confirm any item before relying on it in a purchase decision. Copyright 2026. California Regional Multiple Listing Service. All rights reserved. 700 W Harbor Drive #TH5
San Diego, CA


































































