$1,650,000
14 Front ST #16
Salinas, CA, 93901
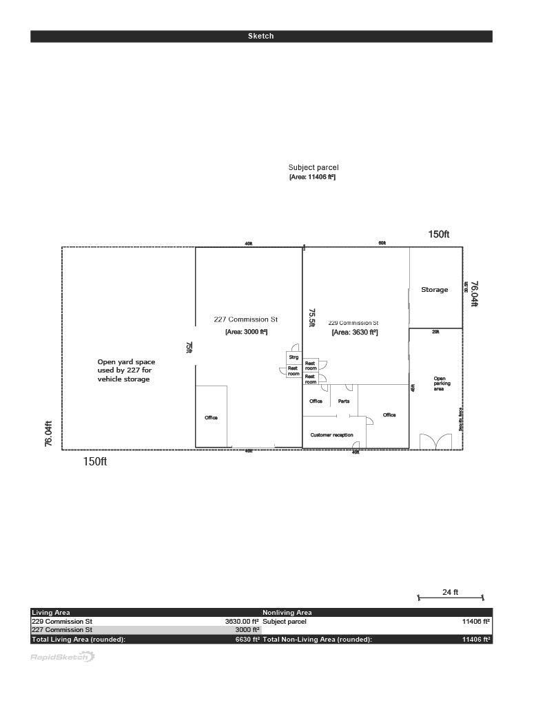
Great opportunity to own 2 buildings plus a parking lot that is centrally located and close to highway 101 freeway access. There are many possibilities such as, lease out both buildings and parking lot, possibly an owner/user in one building and lease the other building/parking lot, and/or owner/user occupying both buildings and/or parking lot. This property really could be a great investment property and/or new home base for up and coming small/medium size business. More details coming soon. 14 Front St. Salinas,CA. 93901 property consists of 2 buildings and attached parking lot. Building access is off of C o m m i s s i o n St. 277 & 229 C o m m i s s i o n St
Property Details
Price:
$1,650,000
MLS #:
ML82028801
Status:
Active
Beds:
0
Baths:
0
Type:
Commercial
Neighborhood:
699notdefined
Listed Date:
Dec 4, 2025
Total Sq Ft:
6,630
Lot Size:
11,406 sqft / 0.26 acres (approx)
Year Built:
1952
Schools
Interior
Cooling
NO
Exterior
Parking Spots
10
Parking Total
10
Roof
FLTR
Financial
Taxes
$1,410
Get Out There, A Simply Outgoing Approach to Life. James Outland Jr. is one of those rare people who simply has an outgoing approach to life. No matter the activity… from dune buggy riding to skydiving to motorcycling to riding the local Pismo Beach waves… James Outland Jr. approaches life with a “just get out there and do it” kind of attitude. A zest for Life. James’ zest for life is obviously apparent in his many exciting hobbies. In his spare time, he loves riding dune buggies or hi…
More About JamesMortgage Calculator
Map
Current real estate data for Commercial in Salinas as of Apr 06, 2026
22
Commercial Listed
152
Avg DOM
$2,607,516
Avg List Price
Community
- Address14 Front ST #16 Salinas CA
- CitySalinas
- CountyMonterey
- Zip Code93901
Similar Listings Nearby
Property Summary
- 14 Front ST #16 Salinas CA is a Commercial for sale in Salinas, CA, 93901. It is listed for $1,650,000 To schedule a showing of MLS#ml82028801 at 14 Front ST #16 in Salinas, CA, contact your James Outland agent at 8057482262.
Courtesy of Steinbeck Realty, Inc.. Disclaimer: All data relating to real estate for sale on this page comes from the Broker Reciprocity (BR) of the California Regional Multiple Listing Service. Detailed information about real estate listings held by brokerage firms other than James Outland include the name of the listing broker. Neither the listing company nor James Outland shall be responsible for any typographical errors, misinformation, misprints and shall be held totally harmless. The Broker providing this data believes it to be correct, but advises interested parties to confirm any item before relying on it in a purchase decision. Copyright 2026. California Regional Multiple Listing Service. All rights reserved. 14 Front ST #16
Salinas, CA







































