$1,049,000
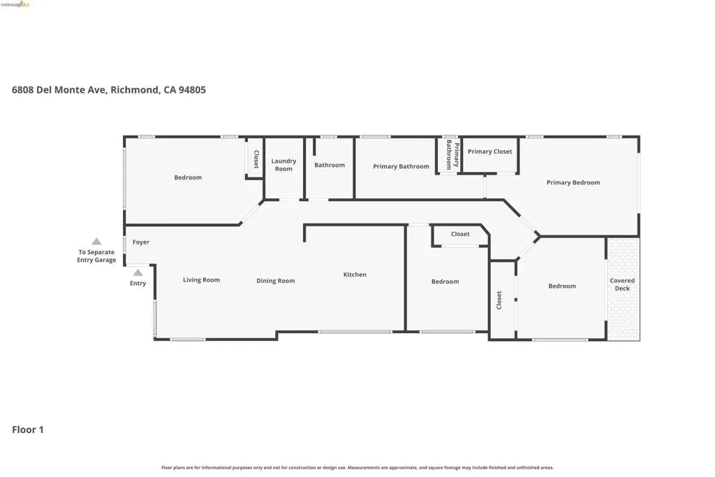
6808 Del Monte Ave
Richmond, CA, 94805
Welcome to 6808 Del Monte—an exceptional residence where refined design meets effortless California living, with stunning views of the SF Bay and Wildcat Canyon Hills. Thoughtfully rebuilt with a modern aesthetic and timeless appeal, this sophisticated home offers an elevated lifestyle in a desirable setting. Completely reconstructed down to a single remaining wall, the home features all-new electrical and plumbing, a new roof, 95% of the foundation, and a state-of-the-art solar system with storage batteries and an EV charger—delivering both sustainability and efficiency. Inside, a light-filled interior showcases expansive windows, clean architectural lines, and high-end finishes throughout. The open-concept living and dining areas flow seamlessly, ideal for everyday living and entertaining. The beautifully updated kitchen features premium appliances, sleek cabinetry, and stylish surfaces. Generously sized bedrooms and spa-inspired bathrooms offer comfort and tranquility, while the primary suite serves as a true sanctuary. The private backyard embraces a natural setting, offering a low-maintenance landscape with ample potential to create a beautiful garden retreat. Ideally located near Wildcat Canyon trails, the serene Gyuto Foundation, and convenient to the Arlington Market.
Property Details
Price:
$1,049,000
MLS #:
41129226
Status:
Active
Beds:
4
Baths:
2
Type:
Single Family
Subtype:
Single Family Residence
Subdivision:
RICHMOND VIEW
Listed Date:
Apr 1, 2026
Finished Sq Ft:
1,704
Lot Size:
3,500 sqft / 0.08 acres (approx)
Year Built:
1953
Schools
Interior
Bathrooms
2 Full Bathrooms
Cooling
CA
Flooring
TILE, SEE, VINY
Heating
ELC, FA, HP
Laundry Features
DINC, WINC
Levels
A
Exterior
Architectural Style
CNT
Attached Garage YN
1
Garage Spaces
1
Parking Spots
1
Parking Total
1
Patio And Porch Features
DK
View
BA, CI, HI, PA
Financial
Get Out There, A Simply Outgoing Approach to Life. James Outland Jr. is one of those rare people who simply has an outgoing approach to life. No matter the activity… from dune buggy riding to skydiving to motorcycling to riding the local Pismo Beach waves… James Outland Jr. approaches life with a “just get out there and do it” kind of attitude. A zest for Life. James’ zest for life is obviously apparent in his many exciting hobbies. In his spare time, he loves riding dune buggies or hi…
More About JamesMortgage Calculator
Map
Current real estate data for Single Family in Richmond as of Apr 08, 2026
67
Single Family Listed
65
Avg DOM
454
Avg $ / SqFt
$702,344
Avg List Price
Community
- Address6808 Del Monte Ave Richmond CA
- SubdivisionRICHMOND VIEW
- CityRichmond
- CountyContra Costa
- Zip Code94805
Similar Listings Nearby
Property Summary
- Located in the RICHMOND VIEW subdivision, 6808 Del Monte Ave Richmond CA is a Single Family for sale in Richmond, CA, 94805. It is listed for $1,049,000 and features 4 beds, 2 baths, and has approximately 1,704 square feet of living space, and was originally constructed in 1953. The current price per square foot is $616. The average price per square foot for Single Family listings in Richmond is $454. The average listing price for Single Family in Richmond is $702,344. To schedule a showing of MLS#41129226 at 6808 Del Monte Ave in Richmond, CA, contact your James Outland agent at 8057482262.
Courtesy of BHG RE Reliance Partners. Disclaimer: All data relating to real estate for sale on this page comes from the Broker Reciprocity (BR) of the California Regional Multiple Listing Service. Detailed information about real estate listings held by brokerage firms other than James Outland include the name of the listing broker. Neither the listing company nor James Outland shall be responsible for any typographical errors, misinformation, misprints and shall be held totally harmless. The Broker providing this data believes it to be correct, but advises interested parties to confirm any item before relying on it in a purchase decision. Copyright 2026. California Regional Multiple Listing Service. All rights reserved. 6808 Del Monte Ave
Richmond, CA



























































