$1,475,000
19211 Strathern ST
Reseda, CA, 91335
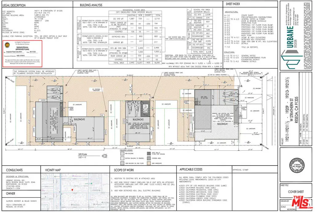
A rare RTI-approved development opportunity in the heart of Reseda, 19211 W Strathern Street offers a fully entitled half-acre lot with plans ready to build a modern multi-residence compound under SB9. Designed by Urbane Design, Inc., the approved plans include Building 1: a remodeled and expanded two-story main home totaling 2,716 square feet with an attached 500-square-foot junior ADU and two-car garage; Building 2: a single-story detached 800-square-foot ADU with its own two-car garage; and Building 3: a newly constructed SB9 two-story residence totaling 2,466 square feet with an attached 1,000-square-foot ADU and two-car garage. Together, the project encompasses approximately 8,299 square feet of all-electric living. Each residence is designed with modern efficiency and architectural harmony, featuring NFPA 13D/13R sprinkler systems and full compliance with Los Angeles’s all-electric ordinance. Zoned RA-1 and eligible for AB 2097 parking exemption within half a mile of a major transit stop, this property offers exceptional flexibility for investors, builders, or end users envisioning a private estate or income-producing multi-unit community. With permits ready to issue and no entitlement delays, this is a rare opportunity to break ground immediately and bring a sophisticated, design-forward project to life on one of Reseda’s largest RTI-approved lots. Approved RTI plans available for review upon request.
Property Details
Price:
$1,475,000
MLS #:
25614971
Status:
Active
Beds:
4
Baths:
2
Type:
Single Family
Subtype:
Single Family Residence
Listed Date:
Jan 25, 2026
Finished Sq Ft:
1,987
Total Sq Ft:
1,987
Lot Size:
24,126 sqft / 0.55 acres (approx)
Year Built:
1942
Schools
Interior
Bathrooms
2 Full Bathrooms
Flooring
CARP
Heating
FIR
Laundry Features
NO
Exterior
Architectural Style
RAN
Parking Spots
2
Security Features
GC
Financial
Get Out There, A Simply Outgoing Approach to Life. James Outland Jr. is one of those rare people who simply has an outgoing approach to life. No matter the activity… from dune buggy riding to skydiving to motorcycling to riding the local Pismo Beach waves… James Outland Jr. approaches life with a “just get out there and do it” kind of attitude. A zest for Life. James’ zest for life is obviously apparent in his many exciting hobbies. In his spare time, he loves riding dune buggies or hi…
More About JamesMortgage Calculator
Map
Current real estate data for Single Family in Reseda as of Feb 13, 2026
134
Single Family Listed
48
Avg DOM
252
Avg $ / SqFt
$550,367
Avg List Price
Community
- Address19211 Strathern ST Reseda CA
- CityReseda
- CountyLos Angeles
- Zip Code91335
Similar Listings Nearby
Property Summary
- 19211 Strathern ST Reseda CA is a Single Family for sale in Reseda, CA, 91335. It is listed for $1,475,000 and features 4 beds, 2 baths, and has approximately 1,987 square feet of living space, and was originally constructed in 1942. The current price per square foot is $742. The average price per square foot for Single Family listings in Reseda is $252. The average listing price for Single Family in Reseda is $550,367. To schedule a showing of MLS#25614971 at 19211 Strathern ST in Reseda, CA, contact your James Outland agent at 8057482262.
Courtesy of Engel & Volkers Beverly Hills. Disclaimer: All data relating to real estate for sale on this page comes from the Broker Reciprocity (BR) of the California Regional Multiple Listing Service. Detailed information about real estate listings held by brokerage firms other than James Outland include the name of the listing broker. Neither the listing company nor James Outland shall be responsible for any typographical errors, misinformation, misprints and shall be held totally harmless. The Broker providing this data believes it to be correct, but advises interested parties to confirm any item before relying on it in a purchase decision. Copyright 2026. California Regional Multiple Listing Service. All rights reserved. 19211 Strathern ST
Reseda, CA



















