$1,600,000
36725 Bluebird AV
Rancho Mirage, CA, 92270
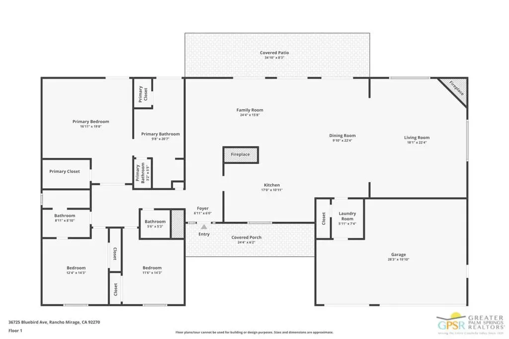
Don’t let the curb fool you…this one’s a jaw-dropper the moment you walk through the door! Welcome to one of Tamarisk’s most treasured address — a meticulously upgraded desert sanctuary where timeless architecture meets modern luxury living. Set on a quiet, tree-lined street with NO HOA, this 3-bedroom, 2.5-bath home has been thoughtfully transformed from the inside out. Soaring vaulted and beamed ceilings, dramatic clerestory windows, and two floor-to-ceiling cantera stone fireplaces set a spirited tone the moment you step inside. The open living and dining areas flow effortlessly into a sunken family room, creating an ideal canvas for entertaining or quiet relaxation. A series of sliding glass doors dissolves the boundary between indoors and out, drawing you toward the resort-like backyard sanctuary beyond. The newly remodeled kitchen is a showstopper featuring fresh counters, new backsplash, a new 220 volt induction cooktop, dishwasher, and refrigerator, all bathed in natural light with counter seating for casual dining. A nearby bar with wine refrigerator keeps the entertaining seamless. The primary suite is a true retreat: vaulted ceilings, dual walk-in closets, and a spa-like bath with freestanding soaking tub, tiled shower, and private water closet. Sliders from both the bedroom and bath open directly to a private patio with outdoor shower. A recently completed primary bath extension adds an additional 60 square feet of luxury. En Suite #2 enjoys its own full bath, while the third bedroom, currently configured as an office, offers flexible use. A powder room serves guests along the hallway. Step outside and the magic truly unfolds. The west-facing backyard captures spectacular Coachella Valley sunsets over a pebble-lined saltwater pool and spa, newly upgraded with a chiller, new filter and pumps, and a fresh acid wash in 2026. A permanently covered patio, gazebo with new enclosure, outdoor shower, and professional misting system create an outdoor living experience that rivals any resort. Among the standout improvements: two new HVAC heat pumps, a new electrical panel, 34 solar panels, Lutron automatic remote shades throughout, new solid wood interior doors, USB/USC charging outlets in every room, and an 220 volt car charger in the garage. Thanks to the solar and heat pump systems, owners enjoy significantly lower electric bills year-round. Water-wise desert landscaping with native plantings and synthetic turf complete this effortlessly maintained exterior. All wall-mounted flat screens are included in the sale. This is a home that has been loved deeply and upgraded purposefully – ready for its next chapter.
Property Details
Price:
$1,600,000
MLS #:
26654629PS
Status:
Active
Beds:
3
Baths:
3
Type:
Single Family
Subtype:
Single Family Residence
Neighborhood:
321ranchomirage
Listed Date:
Feb 27, 2026
Finished Sq Ft:
2,704
Total Sq Ft:
2,704
Lot Size:
10,454 sqft / 0.24 acres (approx)
Year Built:
1980
Schools
Interior
Appliances
DW, MW, RF, ES
Bathrooms
2 Full Bathrooms, 1 Half Bathroom
Cooling
CA
Flooring
TILE, CARP
Heating
HP, CF
Interior Features
CF, BAR
Laundry Features
DINC, WINC
Levels
A
Exterior
Architectural Style
RAN
Attached Garage YN
1
Common Walls
NCW
Direction Faces
E
Parking Spots
2
Parking Total
2
Security Features
SD, FSDS
View
MT
Financial
Get Out There, A Simply Outgoing Approach to Life. James Outland Jr. is one of those rare people who simply has an outgoing approach to life. No matter the activity… from dune buggy riding to skydiving to motorcycling to riding the local Pismo Beach waves… James Outland Jr. approaches life with a “just get out there and do it” kind of attitude. A zest for Life. James’ zest for life is obviously apparent in his many exciting hobbies. In his spare time, he loves riding dune buggies or hi…
More About JamesMortgage Calculator
Map
Current real estate data for Single Family in Rancho Mirage as of Apr 06, 2026
432
Single Family Listed
134
Avg DOM
356
Avg $ / SqFt
$1,337,202
Avg List Price
Community
- Address36725 Bluebird AV Rancho Mirage CA
- SubdivisionNot in a Development
- CityRancho Mirage
- CountyRiverside
- Zip Code92270
Similar Listings Nearby
Property Summary
- Located in the Not in a Development subdivision, 36725 Bluebird AV Rancho Mirage CA is a Single Family for sale in Rancho Mirage, CA, 92270. It is listed for $1,600,000 and features 3 beds, 3 baths, and has approximately 2,704 square feet of living space, and was originally constructed in 1980. The current price per square foot is $592. The average price per square foot for Single Family listings in Rancho Mirage is $356. The average listing price for Single Family in Rancho Mirage is $1,337,202. To schedule a showing of MLS#26654629ps at 36725 Bluebird AV in Rancho Mirage, CA, contact your James Outland agent at 8057482262.
Courtesy of Dwelling. Disclaimer: All data relating to real estate for sale on this page comes from the Broker Reciprocity (BR) of the California Regional Multiple Listing Service. Detailed information about real estate listings held by brokerage firms other than James Outland include the name of the listing broker. Neither the listing company nor James Outland shall be responsible for any typographical errors, misinformation, misprints and shall be held totally harmless. The Broker providing this data believes it to be correct, but advises interested parties to confirm any item before relying on it in a purchase decision. Copyright 2026. California Regional Multiple Listing Service. All rights reserved. 36725 Bluebird AV
Rancho Mirage, CA


















































