$7,250,000
38850 Kelley LN
Rancho Mirage, CA, 92270
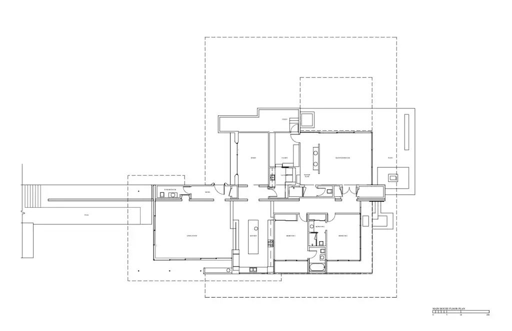
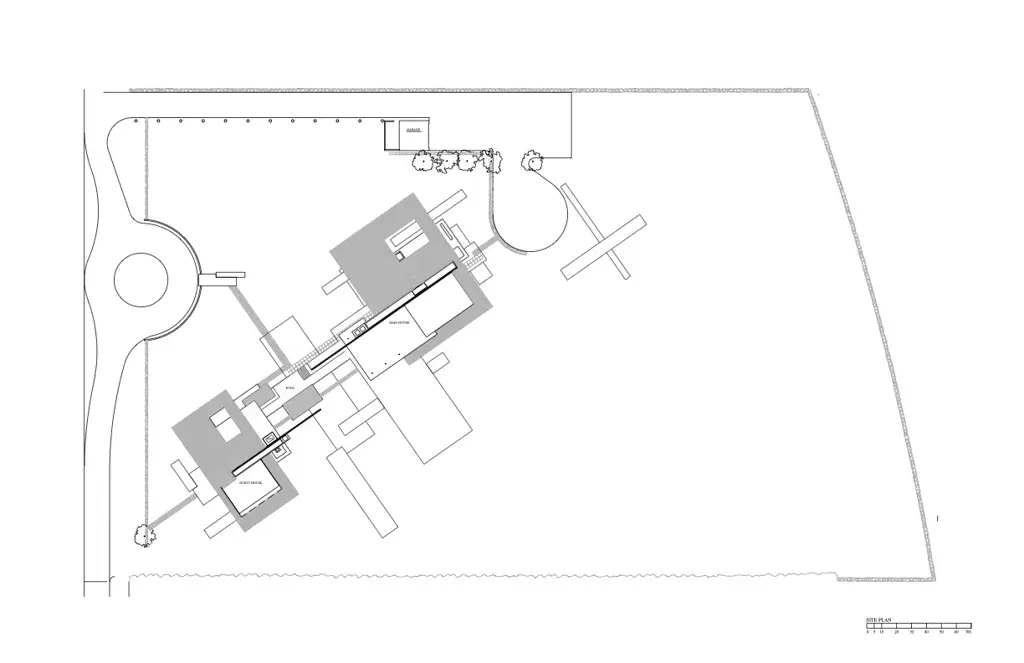
THE DREAMER ESTATE – A work of art to be collected and lived in. This internationally recognized work by AIA Award-winning architect Robert Stone, conceived not just as a home but as a significant piece of California architecture. This is an acquisition of cultural capital. THE ARCHITECTURE – An orchestration of light and form, the residence is designed around the sun’s path. A signature silver roof floats above walls of glass, dissolving the boundary between interior sanctuary and desert landscape. Decorative breeze blocks create intricate shadow play – a hallmark of Stone’s work – while the structure itself frames uninterrupted views of the San Jacinto Mountains. THE PROVENANCE – The estate’s cultural pedigree is undisputed. Named one of Wallpaper* magazine’s Top 25 Houses of 2025. Published in Robb Report, Mansion Global, and Palm Springs Life. Venue for the upcoming Palm Desert Food & Wine Festival Celebrity Chef Reception and featured in the March 2026 Palm Springs Life Fashion Edition. THE SETTING – Located on Kelley Lane in the heart of Rancho Mirage on private roads, the estate overlooks the former ranch of Frank Sinatra, now being transformed into an exclusive luxury enclave. The grounds feature a pristine half-olympic pool and curated outdoor spaces for reflection or grand-scale entertaining. THE RESIDENCE – Interior spaces are both dramatic and intimate. A serene primary suite provides a private retreat, complemented by guest accommodations including the whimsical Lil’ Dreamer suite. Every element is intentional, contributing to the experience of living within a masterpiece. For the connoisseur of art, architecture, and culture. Call for your private appointment to view The Dreamer Estate.
Property Details
Price:
$7,250,000
MLS #:
219144081DA
Status:
Active
Beds:
5
Baths:
5
Type:
Single Family
Subtype:
Single Family Residence
Neighborhood:
321ranchomirage
Listed Date:
Mar 3, 2026
Finished Sq Ft:
4,029
Lot Size:
166,835 sqft / 3.83 acres (approx)
Year Built:
2024
Schools
Interior
Appliances
DW, FZ, GD, IM, RF, WLR, EO, ER, CO, GWH, HOD, SCO, VEF
Bathrooms
4 Full Bathrooms, 1 Half Bathroom
Cooling
CA, ELC, ZN
Flooring
CONC
Heating
ELC, FA, ZN, CF, FIR
Interior Features
BI, RECL, LRBA, OFP, SUNK, HCEL
Laundry Features
IR, ICL
Exterior
Architectural Style
CNT, MOD
Construction Materials
STC
Exterior Features
BQ
Fencing
CH, ST
Garage Spaces
2
Other Structures
GH
Parking Spots
11
Parking Total
11
Roof
CLY
Security Features
CRD
Spa Features
GN, HT, PVT
View
MT, PA, PL
Financial
Get Out There, A Simply Outgoing Approach to Life. James Outland Jr. is one of those rare people who simply has an outgoing approach to life. No matter the activity… from dune buggy riding to skydiving to motorcycling to riding the local Pismo Beach waves… James Outland Jr. approaches life with a “just get out there and do it” kind of attitude. A zest for Life. James’ zest for life is obviously apparent in his many exciting hobbies. In his spare time, he loves riding dune buggies or hi…
More About JamesMortgage Calculator
Map
Current real estate data for Single Family in Rancho Mirage as of Apr 06, 2026
424
Single Family Listed
135
Avg DOM
358
Avg $ / SqFt
$1,345,039
Avg List Price
Community
- Address38850 Kelley LN Rancho Mirage CA
- SubdivisionNot Applicable-1
- CityRancho Mirage
- CountyRiverside
- Zip Code92270
Similar Listings Nearby
Property Summary
- Located in the Not Applicable-1 subdivision, 38850 Kelley LN Rancho Mirage CA is a Single Family for sale in Rancho Mirage, CA, 92270. It is listed for $7,250,000 and features 5 beds, 5 baths, and has approximately 4,029 square feet of living space, and was originally constructed in 2024. The current price per square foot is $1,799. The average price per square foot for Single Family listings in Rancho Mirage is $358. The average listing price for Single Family in Rancho Mirage is $1,345,039. To schedule a showing of MLS#219144081da at 38850 Kelley LN in Rancho Mirage, CA, contact your James Outland agent at 8057482262.
Courtesy of KW Coachella Valley. Disclaimer: All data relating to real estate for sale on this page comes from the Broker Reciprocity (BR) of the California Regional Multiple Listing Service. Detailed information about real estate listings held by brokerage firms other than James Outland include the name of the listing broker. Neither the listing company nor James Outland shall be responsible for any typographical errors, misinformation, misprints and shall be held totally harmless. The Broker providing this data believes it to be correct, but advises interested parties to confirm any item before relying on it in a purchase decision. Copyright 2026. California Regional Multiple Listing Service. All rights reserved. 38850 Kelley LN
Rancho Mirage, CA




































