$868,000
11854 Rockingham CT
Rancho Cucamonga, CA, 91730
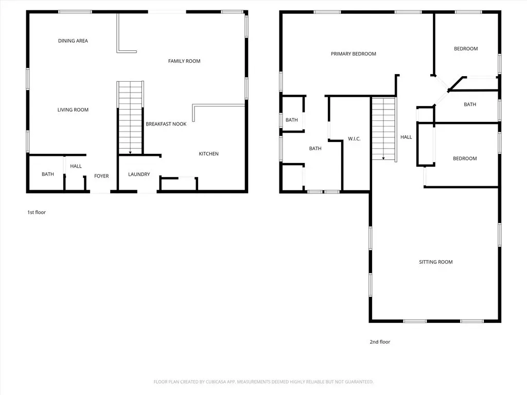
Discover unparalleled warmth and traditional sophistication in Rancho Cucamonga! This meticulously designed and impeccably maintained residence offers the perfect blend of traditional elegance and comfortable living. Boasting 3 bedrooms and 2.5 bathrooms with Fresh Interior Paint, this home is a true gem in the heart of a vibrant and growing neighborhood. Step inside to discover an open space for living, dining and kitchen. The modern kitchen is a chef’s delight, featuring built-in appliances, tile countertops, walk-in pantry and ample cabinet space for storage. It is open to the dining area and living room. There are a laundry room and another half bath on the first floor as well. All bedrooms are on the upper level. The master suite is a true retreat, featuring walk-in closet and ensuite bathroom with double vanities. The additional 2 bedrooms are generously sized and appointed with a well-full bathroom. There is also a large loft on the second level. it is a flexible space for multi-uses such as office, entertainment and can be converted to additional bedroom. All bedrooms have ceiling fans. The backyard offers ample space for relaxation and entertainment, with a covered patio, lush landscaping, and fruit trees. This home offers perfect blend of suburban tranquility and urban convenience for this home – walking distance to school, park and close to Victoria Garden shops, markets and restaurants. Also, easy access to freeway 15. Don’t miss this great opportunity to live and invest this comfort and elegance property.
Property Details
Price:
$868,000
MLS #:
TR26030501
Status:
Active
Beds:
3
Baths:
3
Type:
Single Family
Subtype:
Single Family Residence
Neighborhood:
688ranchocucamonga
Listed Date:
Mar 20, 2026
Finished Sq Ft:
2,414
Lot Size:
5,638 sqft / 0.13 acres (approx)
Year Built:
2002
Schools
School District:
Etiwanda
Elementary School:
Terra Vista
Middle School:
Etiwanda
High School:
Rancho Cucamonga
Interior
Appliances
DW, MW, GER, GO, GS, BIR, WHU
Bathrooms
2 Full Bathrooms, 1 Half Bathroom
Cooling
CA
Flooring
TILE, CARP
Heating
CF
Interior Features
BI, RECL, TILC, OFP
Laundry Features
GE, IR, WH
Levels
U
Main Level Bathrooms
1
Exterior
Attached Garage YN
1
Common Walls
NCW
Community Features
SDW, SL
Garage Spaces
2
Parking Spots
2
Parking Total
2
Patio And Porch Features
CO
Security Features
SD, COD
Spa Features
NO
View
NO
Financial
Get Out There, A Simply Outgoing Approach to Life. James Outland Jr. is one of those rare people who simply has an outgoing approach to life. No matter the activity… from dune buggy riding to skydiving to motorcycling to riding the local Pismo Beach waves… James Outland Jr. approaches life with a “just get out there and do it” kind of attitude. A zest for Life. James’ zest for life is obviously apparent in his many exciting hobbies. In his spare time, he loves riding dune buggies or hi…
More About JamesMortgage Calculator
Map
Current real estate data for Single Family in Rancho Cucamonga as of Apr 09, 2026
333
Single Family Listed
65
Avg DOM
337
Avg $ / SqFt
$745,160
Avg List Price
Community
- Address11854 Rockingham CT Rancho Cucamonga CA
- CityRancho Cucamonga
- CountySan Bernardino
- Zip Code91730
Similar Listings Nearby
Property Summary
- 11854 Rockingham CT Rancho Cucamonga CA is a Single Family for sale in Rancho Cucamonga, CA, 91730. It is listed for $868,000 and features 3 beds, 3 baths, and has approximately 2,414 square feet of living space, and was originally constructed in 2002. The current price per square foot is $360. The average price per square foot for Single Family listings in Rancho Cucamonga is $337. The average listing price for Single Family in Rancho Cucamonga is $745,160. To schedule a showing of MLS#tr26030501 at 11854 Rockingham CT in Rancho Cucamonga, CA, contact your James Outland agent at 8057482262.
Courtesy of eCentury Mortgage & Realty Inc. Disclaimer: All data relating to real estate for sale on this page comes from the Broker Reciprocity (BR) of the California Regional Multiple Listing Service. Detailed information about real estate listings held by brokerage firms other than James Outland include the name of the listing broker. Neither the listing company nor James Outland shall be responsible for any typographical errors, misinformation, misprints and shall be held totally harmless. The Broker providing this data believes it to be correct, but advises interested parties to confirm any item before relying on it in a purchase decision. Copyright 2026. California Regional Multiple Listing Service. All rights reserved. 11854 Rockingham CT
Rancho Cucamonga, CA










































