$715,000
11348 Reseda #A
Porter Ranch, CA, 91326
A rare opportunity to own a brand-new, fully detached residence within a small, thoughtfully built community in desirable Porter Ranch.
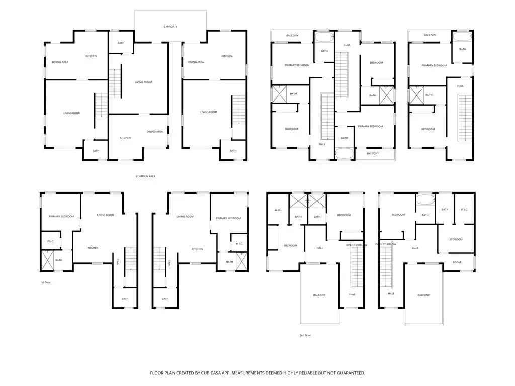
Set within a newly constructed 5-unit development on Reseda Blvd, this three bedroom, three bath home is one of three fully detached residences in the community Offering a level of privacy and separation that’s uncommon in multi-unit properties, it lives like a single-family home at a more accessible price point.
The floor plan is open and well-proportioned, with a contemporary kitchen, comfortable living areas, and three generously sized bedrooms each with its own en-suite bathroom and ample closet space. One bedroom is located on the first floor, ideal for work from home or guests. The layout suits both everyday living and entertaining without feeling oversized or impractical.
Ownership is structured as a tenant in common which is a meaningful distinction from a standard condo or HOA. Each owner holds a direct ownership interest in the property, making it a strong fit for extended families, co-purchasers, or buyers seeking a true sense of ownership within a small, cohesive community.
As new construction, the home comes with all new systems, modern energy efficiency, and fewer of the maintenance concerns that come with older properties.
Conveniently located near shopping and dining at the Vineyards,highly rated schools, the Porter Ranch Town Center, with Whole Foods, an array of dining options, and everyday retail all within easy reach. Chatsworth Reservoir and the Santa Susana Mountains provide a scenic backdrop and access to outdoor recreation, while the 118 freeway connects residents quickly to the broader Valley and beyond.
Some images have been digitally enhanced, created, or edited and do no necessarily reflect the current condition of the property. More photos to come
Set within a newly constructed 5-unit development on Reseda Blvd, this three bedroom, three bath home is one of three fully detached residences in the community Offering a level of privacy and separation that’s uncommon in multi-unit properties, it lives like a single-family home at a more accessible price point.
The floor plan is open and well-proportioned, with a contemporary kitchen, comfortable living areas, and three generously sized bedrooms each with its own en-suite bathroom and ample closet space. One bedroom is located on the first floor, ideal for work from home or guests. The layout suits both everyday living and entertaining without feeling oversized or impractical.
Ownership is structured as a tenant in common which is a meaningful distinction from a standard condo or HOA. Each owner holds a direct ownership interest in the property, making it a strong fit for extended families, co-purchasers, or buyers seeking a true sense of ownership within a small, cohesive community.
As new construction, the home comes with all new systems, modern energy efficiency, and fewer of the maintenance concerns that come with older properties.
Conveniently located near shopping and dining at the Vineyards,highly rated schools, the Porter Ranch Town Center, with Whole Foods, an array of dining options, and everyday retail all within easy reach. Chatsworth Reservoir and the Santa Susana Mountains provide a scenic backdrop and access to outdoor recreation, while the 118 freeway connects residents quickly to the broader Valley and beyond.
Some images have been digitally enhanced, created, or edited and do no necessarily reflect the current condition of the property. More photos to come
Property Details
Price:
$715,000
MLS #:
SR26063654
Status:
Active
Beds:
3
Baths:
3
Type:
Single Family
Subtype:
Co-Ownership
Neighborhood:
poraporterranch
Listed Date:
Mar 24, 2026
Finished Sq Ft:
1,500
Lot Size:
7,821 sqft / 0.18 acres (approx)
Year Built:
1965
Schools
School District:
Los Angeles Unified
Interior
Appliances
NO
Bathrooms
3 Full Bathrooms
Cooling
CA
Heating
CF
Laundry Features
IN
Levels
U
Main Level Bathrooms
1
Main Level Bedrooms
1
Exterior
Accessibility Features
NO
Architectural Style
SEE
Common Walls
NCW
Community Features
SDW, SUB
Construction Materials
UNK
Parking Spots
2
Parking Total
2
Roof
OTH
Spa Features
NO
View
NE
Financial
Get Out There, A Simply Outgoing Approach to Life. James Outland Jr. is one of those rare people who simply has an outgoing approach to life. No matter the activity… from dune buggy riding to skydiving to motorcycling to riding the local Pismo Beach waves… James Outland Jr. approaches life with a “just get out there and do it” kind of attitude. A zest for Life. James’ zest for life is obviously apparent in his many exciting hobbies. In his spare time, he loves riding dune buggies or hi…
More About JamesMortgage Calculator
Map
Current real estate data for Single Family in Porter Ranch as of Apr 09, 2026
134
Single Family Listed
61
Avg DOM
441
Avg $ / SqFt
$1,597,938
Avg List Price
Community
- Address11348 Reseda #A Porter Ranch CA
- CityPorter Ranch
- CountyLos Angeles
- Zip Code91326
Similar Listings Nearby
Property Summary
- 11348 Reseda #A Porter Ranch CA is a Single Family for sale in Porter Ranch, CA, 91326. It is listed for $715,000 and features 3 beds, 3 baths, and has approximately 1,500 square feet of living space, and was originally constructed in 1965. The current price per square foot is $477. The average price per square foot for Single Family listings in Porter Ranch is $441. The average listing price for Single Family in Porter Ranch is $1,597,938. To schedule a showing of MLS#sr26063654 at 11348 Reseda #A in Porter Ranch, CA, contact your James Outland agent at 8057482262.
Courtesy of Berkshire Hathaway HomeServices California Properties. Disclaimer: All data relating to real estate for sale on this page comes from the Broker Reciprocity (BR) of the California Regional Multiple Listing Service. Detailed information about real estate listings held by brokerage firms other than James Outland include the name of the listing broker. Neither the listing company nor James Outland shall be responsible for any typographical errors, misinformation, misprints and shall be held totally harmless. The Broker providing this data believes it to be correct, but advises interested parties to confirm any item before relying on it in a purchase decision. Copyright 2026. California Regional Multiple Listing Service. All rights reserved. 11348 Reseda #A
Porter Ranch, CA















