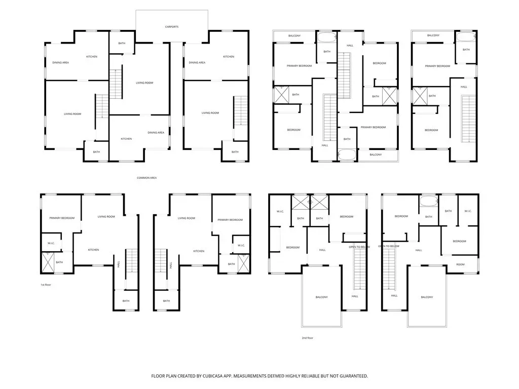
The layout is well suited for extended families, group living environments, or organizations seeking a residential setting that supports both independence and connection. Detached residences offer a single-family feel, enhancing livability and broad appeal.
Currently under construction, this is an opportunity to acquire a newly developed asset with potential input on final finishes. Each unit is designed with open floor plans, contemporary kitchens, and efficient layouts aligned with modern living standards.
As brand-new construction, the property offers all new systems, reduced maintenance requirements, and long-term operational efficiency, making it attractive for both owner-users and investors.
The property will include five on-site parking spaces, including two covered, with additional street parking available. Conveniently located near shopping, dining, parks, freeway access, and major employment centers, this is a rare opportunity to acquire a versatile, newly constructed residential compound in one of the San Fernando Valley’s most desirable neighborhoods.
Images have been digitally edited and/or are renderings and may not reflect the current condition of the property.
Property Details
Schools
Interior
Exterior
Financial
Get Out There, A Simply Outgoing Approach to Life. James Outland Jr. is one of those rare people who simply has an outgoing approach to life. No matter the activity… from dune buggy riding to skydiving to motorcycling to riding the local Pismo Beach waves… James Outland Jr. approaches life with a “just get out there and do it” kind of attitude. A zest for Life. James’ zest for life is obviously apparent in his many exciting hobbies. In his spare time, he loves riding dune buggies or hi…
More About JamesMortgage Calculator
Map
Community
- Address11348 Reseda Porter Ranch CA
- CityPorter Ranch
- CountyLos Angeles
- Zip Code91326
Similar Listings Nearby
Property Summary
- 11348 Reseda Porter Ranch CA is a Single Family for sale in Porter Ranch, CA, 91326. It is listed for $3,300,000 and features 0 beds, 0 baths, and has approximately 0 square feet of living space, and was originally constructed in 1965. The average price per square foot for Single Family listings in Porter Ranch is $441. The average listing price for Single Family in Porter Ranch is $1,597,938. To schedule a showing of MLS#sr26053975 at 11348 Reseda in Porter Ranch, CA, contact your James Outland agent at 8057482262.
Courtesy of Berkshire Hathaway HomeServices California Properties. Disclaimer: All data relating to real estate for sale on this page comes from the Broker Reciprocity (BR) of the California Regional Multiple Listing Service. Detailed information about real estate listings held by brokerage firms other than James Outland include the name of the listing broker. Neither the listing company nor James Outland shall be responsible for any typographical errors, misinformation, misprints and shall be held totally harmless. The Broker providing this data believes it to be correct, but advises interested parties to confirm any item before relying on it in a purchase decision. Copyright 2026. California Regional Multiple Listing Service. All rights reserved. The layout is well suited for extended families, group living environments, or organizations seeking a residential setting that supports both independence and connection. Detached residences offer a single-family feel, enhancing livability and broad appeal.
Currently under construction, this is an opportunity to acquire a newly developed asset with potential input on final finishes. Each unit is designed with open floor plans, contemporary kitchens, and efficient layouts aligned with modern living standards.
As brand-new construction, the property offers all new systems, reduced maintenance requirements, and long-term operational efficiency, making it attractive for both owner-users and investors.
The property will include five on-site parking spaces, including two covered, with additional street parking available. Conveniently located near shopping, dining, parks, freeway access, and major employment centers, this is a rare opportunity to acquire a versatile, newly constructed residential compound in one of the San Fernando Valley’s most desirable neighborhoods.
Images have been digitally edited and/or are renderings and may not reflect the current condition of the property.
Property Details
Schools
Interior
Exterior
Financial
Get Out There, A Simply Outgoing Approach to Life. James Outland Jr. is one of those rare people who simply has an outgoing approach to life. No matter the activity… from dune buggy riding to skydiving to motorcycling to riding the local Pismo Beach waves… James Outland Jr. approaches life with a “just get out there and do it” kind of attitude. A zest for Life. James’ zest for life is obviously apparent in his many exciting hobbies. In his spare time, he loves riding dune buggies or hi…
More About JamesMortgage Calculator
Map
Community
- Address11348 Reseda Porter Ranch CA
- CityPorter Ranch
- CountyLos Angeles
- Zip Code91326
Similar Listings Nearby
Property Summary
- 11348 Reseda Porter Ranch CA is a Townhouse for sale in Porter Ranch, CA, 91326. It is listed for $3,300,000 and features 12 beds, 12 baths, and has approximately 6,000 square feet of living space, and was originally constructed in 1965. The current price per square foot is $550. The average price per square foot for Townhouse listings in Porter Ranch is $441. The average listing price for Townhouse in Porter Ranch is $1,597,938. To schedule a showing of MLS#sr26061354 at 11348 Reseda in Porter Ranch, CA, contact your James Outland agent at 8057482262.
















