$460,000
1870 Conifer DR
Paradise, CA, 95969
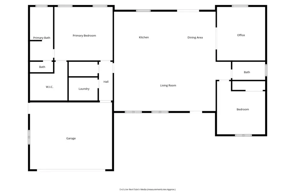
If an accepted offer is in place by Sunday, April 12th at 8:00pm, the builder is offering an EXTENDED 2-year fit & finish warranty—an added layer of peace of mind you won’t want to miss. Located on the desirable east side of Paradise, where Conifer is being beautifully rebuilt, this thoughtfully designed home by American Dream Construction offers comfort, quality, and a layout that truly stands out. Known for their craftsmanship and commitment to the community, American Dream Construction also provides a strong 1-year fit & finish warranty that they stand behind. This floorplan is a favorite, featuring a spacious, open flow that feels both functional and inviting from the moment you walk in. The tray ceiling adds an elevated touch, while abundant windows fill the home with natural light. The kitchen is generously sized with ample workspace and storage, seamlessly connecting to the main living area—perfect for both everyday living and entertaining. On the garage side of the home, you’ll find the primary suite, along with a walk-in pantry and laundry room for added convenience. The split floorplan offers privacy, with two additional rooms on the opposite side—one a true bedroom and the other ideal as an office, den, or bonus space. Both rooms are approximately 13’x14’, offering flexibility without sacrificing space. The primary suite is spacious (approx. 16’x14.5′) and well-appointed, featuring a large walk-in closet, dual vanities, a soaking tub, and a walk-in shower. Built with true wildfire preparedness in mind, this home offers peace of mind with 5 feet of defensible space using non-combustible materials, a Class A fire-rated roof, ember-resistant Vulcan vents, fiber cement siding, and non-combustible gutters and downspouts. Additional upgrades include enclosed eaves and soffits, metal gutter guards, dual-pane tempered windows, and fire-resistant exterior doors—providing a level of safety, quality, and resilience that is hard to find. Step outside to enjoy both a charming covered front patio and a covered back patio—perfect for morning coffee or hosting friends. The fully fenced yard includes RV gate access and parking, with a flat, graded backyard ready for your vision and future landscaping. Conveniently located just down the road from Paradise Ridge Elementary School, only minutes to Lime Saddle Marina at Lake Oroville, and all town amenities—this is a home that offers both lifestyle and location.
Property Details
Price:
$460,000
MLS #:
SN26074990
Status:
Active
Beds:
3
Baths:
2
Type:
Single Family
Subtype:
Single Family Residence
Listed Date:
Apr 9, 2026
Finished Sq Ft:
1,879
Lot Size:
12,197 sqft / 0.28 acres (approx)
Year Built:
2026
Schools
School District:
Paradise Unified
Interior
Appliances
DW, WLR, GR, HOD, WHU
Bathrooms
2 Full Bathrooms
Cooling
CA
Flooring
VINY
Heating
CF
Interior Features
CF, OFP, PTRY, TREY, QTZC
Laundry Features
ELC, IR, WH
Levels
A
Main Level Bathrooms
2
Main Level Bedrooms
3
Exterior
Accessibility Features
NIS, _36W, PK
Attached Garage YN
1
Common Walls
NCW
Community Features
MTN, LAKE, PARK, WATE, HIKI, BIKI
Construction Materials
HAR, BABS
Fencing
CH, WD
Garage Spaces
2
New Construction YN
1
Parking Spots
6
Parking Total
6
Patio And Porch Features
CO, POF, POR
Roof
CMP
Security Features
COD, FSDS, FS
Spa Features
NO
View
MT, NE
Window Features
DPW
Financial
Get Out There, A Simply Outgoing Approach to Life. James Outland Jr. is one of those rare people who simply has an outgoing approach to life. No matter the activity… from dune buggy riding to skydiving to motorcycling to riding the local Pismo Beach waves… James Outland Jr. approaches life with a “just get out there and do it” kind of attitude. A zest for Life. James’ zest for life is obviously apparent in his many exciting hobbies. In his spare time, he loves riding dune buggies or hi…
More About JamesMortgage Calculator
Map
Current real estate data for Single Family in Paradise as of Apr 13, 2026
144
Single Family Listed
66
Avg DOM
270
Avg $ / SqFt
$453,865
Avg List Price
Community
- Address1870 Conifer DR Paradise CA
- CityParadise
- CountyButte
- Zip Code95969
Similar Listings Nearby
Property Summary
- 1870 Conifer DR Paradise CA is a Single Family for sale in Paradise, CA, 95969. It is listed for $460,000 and features 3 beds, 2 baths, and has approximately 1,879 square feet of living space, and was originally constructed in 2026. The current price per square foot is $245. The average price per square foot for Single Family listings in Paradise is $270. The average listing price for Single Family in Paradise is $453,865. To schedule a showing of MLS#sn26074990 at 1870 Conifer DR in Paradise, CA, contact your James Outland agent at 8057482262.
Courtesy of Connect Real Estate Group. Disclaimer: All data relating to real estate for sale on this page comes from the Broker Reciprocity (BR) of the California Regional Multiple Listing Service. Detailed information about real estate listings held by brokerage firms other than James Outland include the name of the listing broker. Neither the listing company nor James Outland shall be responsible for any typographical errors, misinformation, misprints and shall be held totally harmless. The Broker providing this data believes it to be correct, but advises interested parties to confirm any item before relying on it in a purchase decision. Copyright 2026. California Regional Multiple Listing Service. All rights reserved. 1870 Conifer DR
Paradise, CA



















































