$40,000,000
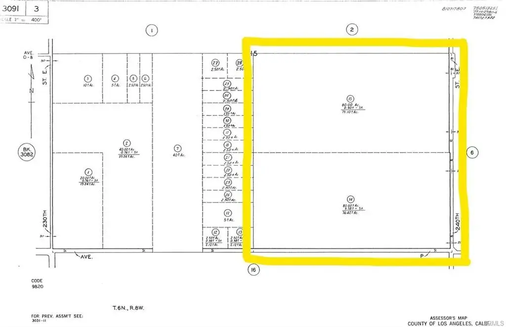
Corner of 240th St E and Avenue P
Palmdale, CA, 93591
Prime Desert Land for Sale – Unmatched opportunity for investors and developers near the planned high desert corridor rail corridor from Palmdale to Victorville and on to Las Vegas. Unlock the potential of this expansive, prime desert property, located east of Palmdale in the heart of California’s high desert region. Spanning 160 acres, this large vacant lot offers unparalleled development opportunities in a soon to be evolving area, strategically positioned in the path of development near the future route of the high desert corridor of California’s new high-speed rail system. This highly desirable location promises significant appreciation potential as the High Desert Corridor project will enhance connectivity and dramatically improve access to major cities, making this land an ideal choice for forward-thinking investors and developers. With the high-speed rail coming to the area, this property is poised to become a prime hub for commercial, residential and mixed-use development. Potential commercial development could include industrial parks and logistics hubs, taking advantage of the future transportation infrastructure. The rail connection will make this area an attractive location for businesses seeking easy access to major metropolitan areas. Residential projects may include large-scale residential developments with the added convenience of quick access to the high-speed rail for commuters and residents seeking proximity to both the desert and urban centers. And with its stunning desert landscape and the high-speed rail bringing increased visitors, this area could be an excellent location for resorts, RV parks or adventure tourism businesses looking to cater to travelers in transit. In addition, because the land offers abundant sunlight, this property would be ideal for solar energy projects, especially with the added benefit of being connected to growing urban areas by the rail system. Whether you’re looking to establish a thriving business, invest in residential development, or create a landmark tourism destination, this property offers the space, location, and growth potential to turn your vision into reality. Don’t miss the opportunity to capitalize on this exceptional land along California’s cutting-edge high-speed rail corridor.
Property Details
Price:
$40,000,000
MLS #:
SW24240221
Status:
Active
Beds:
0
Baths:
0
Type:
Land
Neighborhood:
plmpalmdale
Listed Date:
Nov 26, 2024
Lot Size:
6,969,600 sqft / 160.00 acres (approx)
Schools
Interior
Exterior
Community Features
RUR, HIKI
View
MT
Financial
Get Out There, A Simply Outgoing Approach to Life. James Outland Jr. is one of those rare people who simply has an outgoing approach to life. No matter the activity… from dune buggy riding to skydiving to motorcycling to riding the local Pismo Beach waves… James Outland Jr. approaches life with a “just get out there and do it” kind of attitude. A zest for Life. James’ zest for life is obviously apparent in his many exciting hobbies. In his spare time, he loves riding dune buggies or hi…
More About JamesMortgage Calculator
Map
Community
- AddressCorner of 240th St E and Avenue P Palmdale CA
- CityPalmdale
- CountyLos Angeles
- Zip Code93591
Similar Listings Nearby
Property Summary
- Corner of 240th St E and Avenue P Palmdale CA is a Land for sale in Palmdale, CA, 93591. It is listed for $40,000,000 and features 160 acres. To schedule a showing of MLS#sw24240221 at Corner of 240th St E and Avenue P in Palmdale, CA, contact your James Outland agent at 8057482262.
Courtesy of RedRock. Disclaimer: All data relating to real estate for sale on this page comes from the Broker Reciprocity (BR) of the California Regional Multiple Listing Service. Detailed information about real estate listings held by brokerage firms other than James Outland include the name of the listing broker. Neither the listing company nor James Outland shall be responsible for any typographical errors, misinformation, misprints and shall be held totally harmless. The Broker providing this data believes it to be correct, but advises interested parties to confirm any item before relying on it in a purchase decision. Copyright 2026. California Regional Multiple Listing Service. All rights reserved. Corner of 240th St E and Avenue P
Palmdale, CA






