$3,570,000
1272 E Verbena DR
Palm Springs, CA, 92262
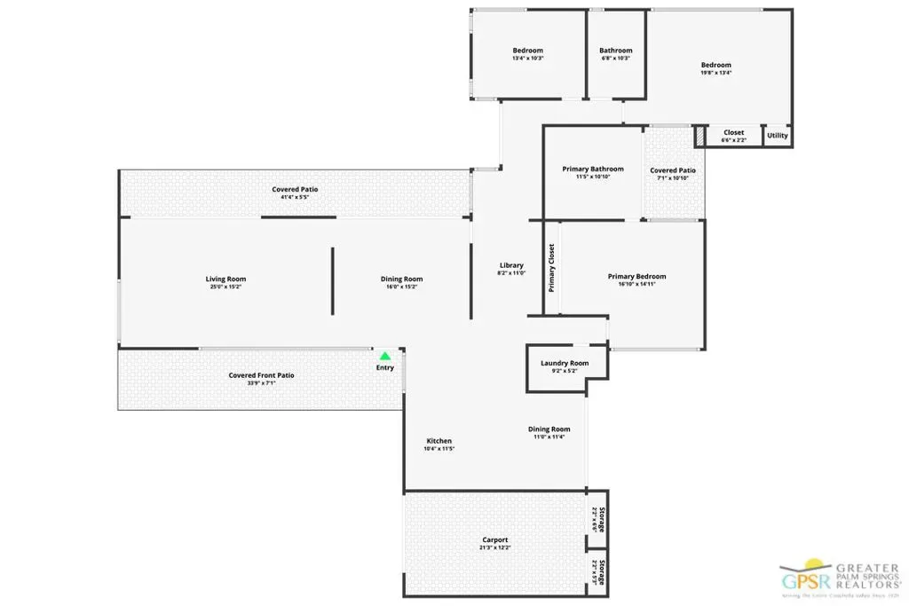
The Wexler Residence is one of Palm Springs’ most significant architectural offerings – a deeply personal work of modernism designed in 1955 by Donald Wexler as his own family home. Privately set on approximately one-third of an acre in Movie Colony East, this Class 1 Historic Resource is listed on the National Register of Historic Places and offers the valuable benefit of Mills Act property tax savings. Distinct from the industrial language of Wexler’s celebrated steel houses, the residence reveals a softer, more organic vision, shaped by his early work with Richard Neutra and William F. Cody. Its all-wood post-and-beam construction, open and flexible floor plan, floor-to-ceiling glass, and deep overhangs create a seamless relationship between architecture, landscape, and light. From 2007 to 2026, the home underwent a museum-quality restoration completed in three phases, preserving its architectural integrity while elevating it for contemporary living. In a rare full-circle collaboration, Donald Wexler himself, together with architect Lance O’Donnell and designer Darren Brown, helped shape a comprehensive restoration honored with the Palm Springs Modern Committee’s Residential Restoration of the Year Award. Original vertical fir siding and spun metal lighting were meticulously preserved, while terrazzo floors, marble surfaces, refined European fixtures, a new roof, updated HVAC, and solar were thoughtfully integrated. Hidden behind gates and a mature perimeter hedge, the grounds unfold as a private desert retreat with native landscaping, ancient boulders, a striking black-bottom pool, detached spa, and sweeping San Jacinto Mountain views – an extraordinary union of historic significance, architectural purity, and beautifully restored modern living.
Property Details
Price:
$3,570,000
MLS #:
26664995PS
Status:
Active
Beds:
3
Baths:
2
Type:
Single Family
Subtype:
Single Family Residence
Subdivision:
Movie Colony East
Neighborhood:
332centralpalmsprings
Listed Date:
Mar 19, 2026
Finished Sq Ft:
2,424
Total Sq Ft:
2,424
Lot Size:
13,068 sqft / 0.30 acres (approx)
Year Built:
1955
Schools
Interior
Appliances
DW, GD, MW, GS, OV
Bathrooms
1 Full Bathroom, 1 Three Quarter Bathroom
Cooling
CA
Heating
CF
Interior Features
RECL, BC
Laundry Features
IR, DINC, WINC
Levels
A
Exterior
Attached Garage YN
1
Common Walls
NCW
Direction Faces
S
Fencing
BW
Parking Spots
4
Parking Total
4
Patio And Porch Features
OPN
Security Features
AG, GC
Spa Features
HT, IG, PVT
View
MT, PL
Financial
Get Out There, A Simply Outgoing Approach to Life. James Outland Jr. is one of those rare people who simply has an outgoing approach to life. No matter the activity… from dune buggy riding to skydiving to motorcycling to riding the local Pismo Beach waves… James Outland Jr. approaches life with a “just get out there and do it” kind of attitude. A zest for Life. James’ zest for life is obviously apparent in his many exciting hobbies. In his spare time, he loves riding dune buggies or hi…
More About JamesMortgage Calculator
Map
Current real estate data for Single Family in Palm Springs as of Apr 12, 2026
878
Single Family Listed
99
Avg DOM
421
Avg $ / SqFt
$1,020,285
Avg List Price
Community
- Address1272 E Verbena DR Palm Springs CA
- SubdivisionMovie Colony East
- CityPalm Springs
- CountyRiverside
- Zip Code92262
Similar Listings Nearby
Property Summary
- Located in the Movie Colony East subdivision, 1272 E Verbena DR Palm Springs CA is a Single Family for sale in Palm Springs, CA, 92262. It is listed for $3,570,000 and features 3 beds, 2 baths, and has approximately 2,424 square feet of living space, and was originally constructed in 1955. The current price per square foot is $1,473. The average price per square foot for Single Family listings in Palm Springs is $421. The average listing price for Single Family in Palm Springs is $1,020,285. To schedule a showing of MLS#26664995ps at 1272 E Verbena DR in Palm Springs, CA, contact your James Outland agent at 8057482262.
Courtesy of Bennion Deville Homes. Disclaimer: All data relating to real estate for sale on this page comes from the Broker Reciprocity (BR) of the California Regional Multiple Listing Service. Detailed information about real estate listings held by brokerage firms other than James Outland include the name of the listing broker. Neither the listing company nor James Outland shall be responsible for any typographical errors, misinformation, misprints and shall be held totally harmless. The Broker providing this data believes it to be correct, but advises interested parties to confirm any item before relying on it in a purchase decision. Copyright 2026. California Regional Multiple Listing Service. All rights reserved. 1272 E Verbena DR
Palm Springs, CA















































