$1,345,000
860 Sunset DR
Pacific Grove, CA, 93950
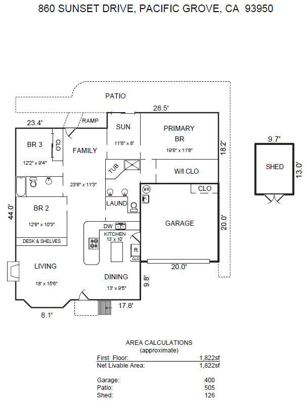
An exceptional value opportunity in Pacific Grove. This 3-bedroom, 2-bath single-family home offers approximately 1,822 sq ft of living space on an oversized 8,500 sq ft lot, providing a combination of size, condition, and price that is increasingly rare in today’s market. The home features hardwood floors, an updated kitchen, fresh interior paint, and new LED ceiling lighting. A comfortable living room with fireplace anchors the main living space, while the functional floor plan supports everyday living, work-from-home flexibility, and entertaining. Additional benefits include a two-car garage, generous outdoor space with future potential, and a location that allows for efficient access to schools, shopping, beaches, and downtown Pacific Grove. For buyers seeking maximum square footage, lot size, and move-in readiness at a compelling price point, this property represents one of the strongest value offerings currently available in Pacific Grove.
Property Details
Price:
$1,345,000
MLS #:
ML82032580
Status:
Active
Beds:
3
Baths:
2
Type:
Single Family
Subtype:
Single Family Residence
Neighborhood:
699notdefined
Listed Date:
Feb 3, 2026
Finished Sq Ft:
1,822
Lot Size:
8,500 sqft / 0.20 acres (approx)
Year Built:
1956
Schools
School District:
Other
Interior
Appliances
DW, GD, RF
Bathrooms
2 Full Bathrooms
Cooling
NO
Flooring
WOOD, CARP
Heating
WL, FIR
Exterior
Parking Spots
2
Roof
CMP
Financial
Get Out There, A Simply Outgoing Approach to Life. James Outland Jr. is one of those rare people who simply has an outgoing approach to life. No matter the activity… from dune buggy riding to skydiving to motorcycling to riding the local Pismo Beach waves… James Outland Jr. approaches life with a “just get out there and do it” kind of attitude. A zest for Life. James’ zest for life is obviously apparent in his many exciting hobbies. In his spare time, he loves riding dune buggies or hi…
More About JamesMortgage Calculator
Map
Current real estate data for Single Family in Pacific Grove as of Feb 14, 2026
34
Single Family Listed
86
Avg DOM
1,045
Avg $ / SqFt
$1,629,176
Avg List Price
Community
- Address860 Sunset DR Pacific Grove CA
- CityPacific Grove
- CountyMonterey
- Zip Code93950
Similar Listings Nearby
Property Summary
- 860 Sunset DR Pacific Grove CA is a Single Family for sale in Pacific Grove, CA, 93950. It is listed for $1,345,000 and features 3 beds, 2 baths, and has approximately 1,822 square feet of living space, and was originally constructed in 1956. The current price per square foot is $738. The average price per square foot for Single Family listings in Pacific Grove is $1,045. The average listing price for Single Family in Pacific Grove is $1,629,176. To schedule a showing of MLS#ml82032580 at 860 Sunset DR in Pacific Grove, CA, contact your James Outland agent at 8057482262.
Courtesy of KW Coastal Estates. Disclaimer: All data relating to real estate for sale on this page comes from the Broker Reciprocity (BR) of the California Regional Multiple Listing Service. Detailed information about real estate listings held by brokerage firms other than James Outland include the name of the listing broker. Neither the listing company nor James Outland shall be responsible for any typographical errors, misinformation, misprints and shall be held totally harmless. The Broker providing this data believes it to be correct, but advises interested parties to confirm any item before relying on it in a purchase decision. Copyright 2026. California Regional Multiple Listing Service. All rights reserved. 860 Sunset DR
Pacific Grove, CA





































































