$275,000
2400 Cienaga ST #59
Oceano, CA, 93445
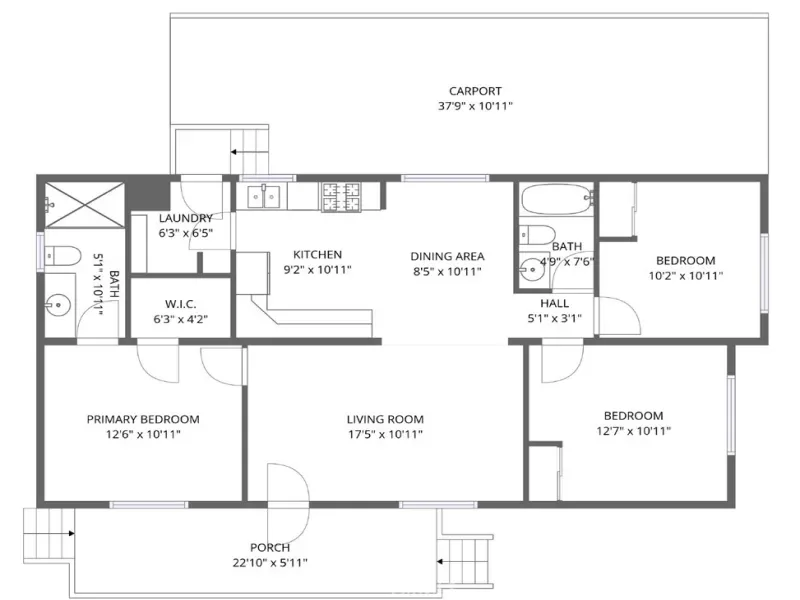
Enjoy coastal living in this 3-bedroom, 2-bath manufactured home located in the desirable Duna Vista Mobile Home Park, a 55+ age-restricted community just over a mile from the beach. Built in 1997 and offering over 1,000± sq ft, this home provides comfortable living in a quiet, well-kept neighborhood with a community room and organized activities.
The home features a functional layout with a spacious living room, dedicated dining area, and a well-equipped kitchen with ample cabinetry and counter space. A large primary bedroom is thoughtfully positioned on the opposite side of the home from the second and third bedrooms, offering added privacy. An independent laundry room is designed for a side-by-side washer and dryer, adding everyday convenience. Central air conditioning provides year-round comfort.
Step outside to enjoy the coastal breeze on the large covered patio, or relax in one of the larger private backyards in the park, perfect for gardening or entertaining. The property also includes two detached storage sheds and a covered carport with convenient access to the kitchen.
Conveniently located just minutes from downtown Pismo Beach, the Oceano Dunes, and the Village of Arroyo Grande, with nearby shopping and dining. This home offers a wonderful opportunity to enjoy low-maintenance coastal living—so close you can often hear the ocean waves breaking.
Financing is available for this home.
The home features a functional layout with a spacious living room, dedicated dining area, and a well-equipped kitchen with ample cabinetry and counter space. A large primary bedroom is thoughtfully positioned on the opposite side of the home from the second and third bedrooms, offering added privacy. An independent laundry room is designed for a side-by-side washer and dryer, adding everyday convenience. Central air conditioning provides year-round comfort.
Step outside to enjoy the coastal breeze on the large covered patio, or relax in one of the larger private backyards in the park, perfect for gardening or entertaining. The property also includes two detached storage sheds and a covered carport with convenient access to the kitchen.
Conveniently located just minutes from downtown Pismo Beach, the Oceano Dunes, and the Village of Arroyo Grande, with nearby shopping and dining. This home offers a wonderful opportunity to enjoy low-maintenance coastal living—so close you can often hear the ocean waves breaking.
Financing is available for this home.
Property Details
Price:
$275,000
MLS #:
PI26053737
Status:
Active Under Contract
Beds:
3
Baths:
2
Type:
Single Family
Neighborhood:
ocnooceano
Listed Date:
Apr 3, 2026
Finished Sq Ft:
1,080
Year Built:
1997
Schools
School District:
Lucia Mar Unified
Interior
Bathrooms
2 Full Bathrooms
Laundry Features
IR
Levels
A
Exterior
Community
55+
Community Features
PARK
Senior Community YN
1
Financial
Lease Land Amount
$823
Lease Land Frequency
MO
Get Out There, A Simply Outgoing Approach to Life. James Outland Jr. is one of those rare people who simply has an outgoing approach to life. No matter the activity… from dune buggy riding to skydiving to motorcycling to riding the local Pismo Beach waves… James Outland Jr. approaches life with a “just get out there and do it” kind of attitude. A zest for Life. James’ zest for life is obviously apparent in his many exciting hobbies. In his spare time, he loves riding dune buggies or hi…
More About JamesMortgage Calculator
Map
Current real estate data for Single Family in Oceano as of Apr 06, 2026
27
Single Family Listed
39
Avg DOM
560
Avg $ / SqFt
$893,667
Avg List Price
Community
- Address2400 Cienaga ST #59 Oceano CA
- CityOceano
- CountySan Luis Obispo
- Zip Code93445
Similar Listings Nearby
Property Summary
- 2400 Cienaga ST #59 Oceano CA is a Single Family for sale in Oceano, CA, 93445. It is listed for $275,000 and features 3 beds, 2 baths, and has approximately 1,080 square feet of living space, and was originally constructed in 1997. The current price per square foot is $255. The average price per square foot for Single Family listings in Oceano is $560. The average listing price for Single Family in Oceano is $893,667. To schedule a showing of MLS#pi26053737 at 2400 Cienaga ST #59 in Oceano, CA, contact your James Outland agent at 8057482262.
Courtesy of Century 21 Masters-Arroyo Grande. Disclaimer: All data relating to real estate for sale on this page comes from the Broker Reciprocity (BR) of the California Regional Multiple Listing Service. Detailed information about real estate listings held by brokerage firms other than James Outland include the name of the listing broker. Neither the listing company nor James Outland shall be responsible for any typographical errors, misinformation, misprints and shall be held totally harmless. The Broker providing this data believes it to be correct, but advises interested parties to confirm any item before relying on it in a purchase decision. Copyright 2026. California Regional Multiple Listing Service. All rights reserved. 2400 Cienaga ST #59
Oceano, CA



















