$1,300,000
2415 San Pablo Ave
Oakland, CA, 94612
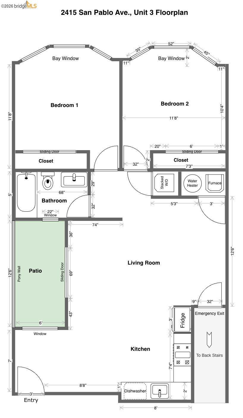
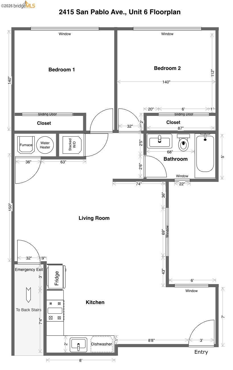
Turn-key mixed-use investment with strong in-place income and exceptional upside through rent-control exemption, ideally located along the San Pablo Ave corridor near 19th Street BART, Hwy 980, Downtown Oakland, Uptown, and Berkeley. Originally built in 1910 and substantially renovated in 2007, 2415 San Pablo Ave features 5 residential units and 1 ground-floor commercial space occupied by a long-term tattoo studio tenant of over 8 years. The residential unit mix includes one large 1-bedroom and four large 2-bedroom units, each approximately 900 SF, with modern layouts, updated flooring, contemporary kitchens, and strong natural light. Tenants also enjoy a large shared rooftop deck with panoramic views of Downtown Oakland and San Francisco. The building benefits from modern systems and major upgrades including fire sprinklers, extensive seismic improvements, exterior siding upgrades, full exterior paint completed in 2025, and various unit improvements over time. A rare low-maintenance investment with stable mixed-use income and long-term growth potential. Can also be sold with adjacent 7-unit apartment building at 2401 San Pablo Ave.
Property Details
Price:
$1,300,000
MLS #:
41129073
Status:
Active
Beds:
0
Baths:
0
Type:
Single Family
Subdivision:
WEST OAKLAND
Listed Date:
Apr 1, 2026
Lot Size:
2,501 sqft / 0.06 acres (approx)
Year Built:
2007
Schools
Interior
Cooling
SEE
Heating
FA
Laundry Features
DINC, WINC
Exterior
Construction Materials
STC
Roof
SHN
Financial
Get Out There, A Simply Outgoing Approach to Life. James Outland Jr. is one of those rare people who simply has an outgoing approach to life. No matter the activity… from dune buggy riding to skydiving to motorcycling to riding the local Pismo Beach waves… James Outland Jr. approaches life with a “just get out there and do it” kind of attitude. A zest for Life. James’ zest for life is obviously apparent in his many exciting hobbies. In his spare time, he loves riding dune buggies or hi…
More About JamesMortgage Calculator
Map
Current real estate data for Single Family in Oakland as of Apr 06, 2026
436
Single Family Listed
83
Avg DOM
485
Avg $ / SqFt
$924,558
Avg List Price
Community
- Address2415 San Pablo Ave Oakland CA
- SubdivisionWEST OAKLAND
- CityOakland
- CountyAlameda
- Zip Code94612
Similar Listings Nearby
Property Summary
- Located in the WEST OAKLAND subdivision, 2415 San Pablo Ave Oakland CA is a Single Family for sale in Oakland, CA, 94612. It is listed for $1,300,000 and features 0 beds, 0 baths, and has approximately 0 square feet of living space, and was originally constructed in 2007. The average price per square foot for Single Family listings in Oakland is $485. The average listing price for Single Family in Oakland is $924,558. To schedule a showing of MLS#41129073 at 2415 San Pablo Ave in Oakland, CA, contact your James Outland agent at 8057482262.
Courtesy of COMPASS. Disclaimer: All data relating to real estate for sale on this page comes from the Broker Reciprocity (BR) of the California Regional Multiple Listing Service. Detailed information about real estate listings held by brokerage firms other than James Outland include the name of the listing broker. Neither the listing company nor James Outland shall be responsible for any typographical errors, misinformation, misprints and shall be held totally harmless. The Broker providing this data believes it to be correct, but advises interested parties to confirm any item before relying on it in a purchase decision. Copyright 2026. California Regional Multiple Listing Service. All rights reserved. 2415 San Pablo Ave
Oakland, CA



































































