$400,000
1515 14th AVE #302
Oakland, CA, 94606
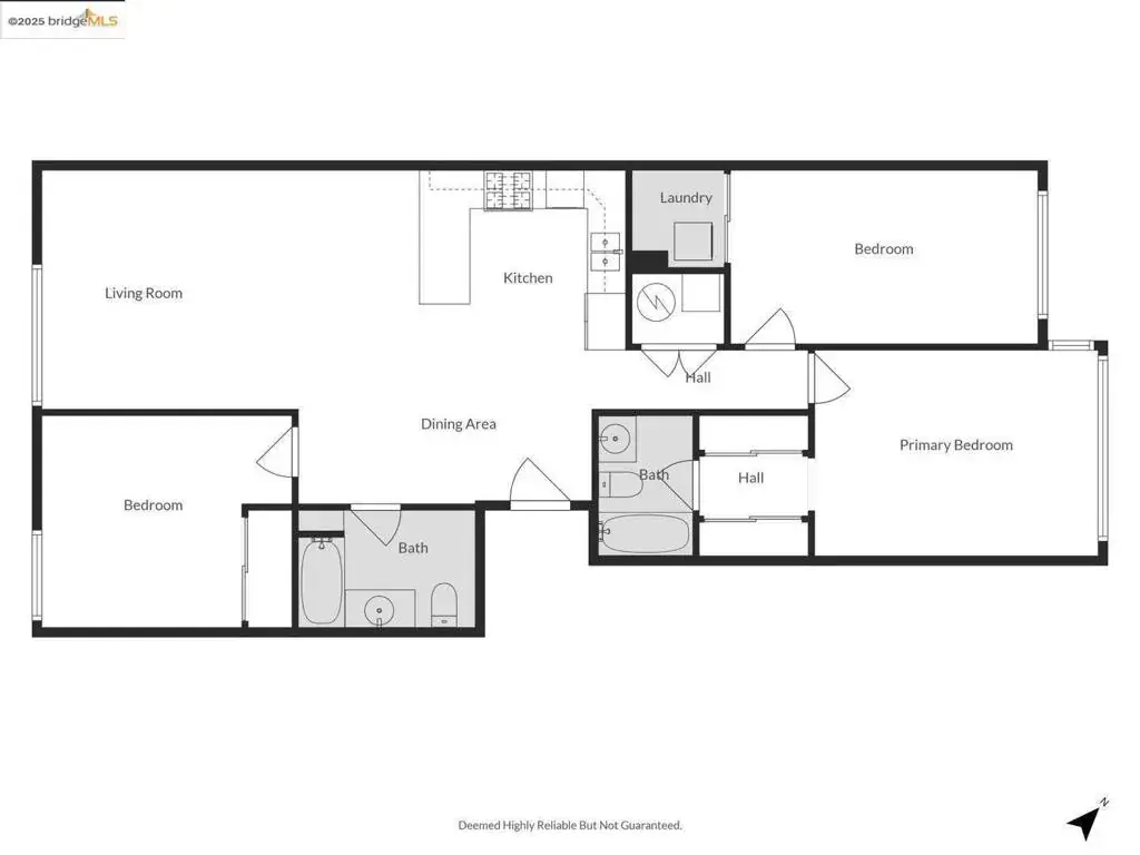
Quiet corner unit tucked away in the interior of the block away from the hustle and bustle of the town. Enjoy your very own sun kissed 3-bed, 2-bath refuge, flooded with natural light. Featuring an open concept kitchen, calling for culinary creativity perfect for hosting friends. It’s all ready for you: fresh tile flooring, soothing paint, upgraded electrical, and the convenience of in-unit washer/dryer. Here you’re in the heart of Oakland’s vibrant scene! Close to Brooklyn Basin, Laney College, Alameda and the Oakland waterfront. This is more than a condo; it’s a retreat, a perfect blend of comfort and convenience, your new happy beginning! Underground dedicated gated parking, drive in and take the elevator right up to your home!
Property Details
Price:
$400,000
MLS #:
41119226
Status:
Active
Beds:
3
Baths:
2
Type:
Condo
Subtype:
Condominium
Subdivision:
SAN ANTONIO
Listed Date:
Dec 15, 2025
Finished Sq Ft:
1,176
Lot Size:
8,901 sqft / 0.20 acres (approx)
Year Built:
2004
Schools
Interior
Bathrooms
2 Full Bathrooms
Cooling
NO
Flooring
TILE, CARP
Heating
FA
Levels
A
Exterior
Accessibility Features
ELV, WC, DIF
Architectural Style
CNT
Attached Garage YN
1
Construction Materials
STC
Garage Spaces
1
Parking Spots
1
Parking Total
1
Patio And Porch Features
PTO
View
HI
Financial
HOA Fee
$697
HOA Fee Frequency
MO
Get Out There, A Simply Outgoing Approach to Life. James Outland Jr. is one of those rare people who simply has an outgoing approach to life. No matter the activity… from dune buggy riding to skydiving to motorcycling to riding the local Pismo Beach waves… James Outland Jr. approaches life with a “just get out there and do it” kind of attitude. A zest for Life. James’ zest for life is obviously apparent in his many exciting hobbies. In his spare time, he loves riding dune buggies or hi…
More About JamesMortgage Calculator
Map
Community
- Address1515 14th AVE #302 Oakland CA
- SubdivisionSAN ANTONIO
- CityOakland
- CountyAlameda
- Zip Code94606
Similar Listings Nearby
Property Summary
- Located in the SAN ANTONIO subdivision, 1515 14th AVE #302 Oakland CA is a Condo for sale in Oakland, CA, 94606. It is listed for $400,000 and features 3 beds, 2 baths, and has approximately 1,176 square feet of living space, and was originally constructed in 2004. The current price per square foot is $340. The average price per square foot for Condo listings in Oakland is $497. The average listing price for Condo in Oakland is $510,021. To schedule a showing of MLS#41119226 at 1515 14th AVE #302 in Oakland, CA, contact your James Outland agent at 8057482262.
Courtesy of Vylla Home, Inc.. Disclaimer: All data relating to real estate for sale on this page comes from the Broker Reciprocity (BR) of the California Regional Multiple Listing Service. Detailed information about real estate listings held by brokerage firms other than James Outland include the name of the listing broker. Neither the listing company nor James Outland shall be responsible for any typographical errors, misinformation, misprints and shall be held totally harmless. The Broker providing this data believes it to be correct, but advises interested parties to confirm any item before relying on it in a purchase decision. Copyright 2026. California Regional Multiple Listing Service. All rights reserved. 1515 14th AVE #302
Oakland, CA


































