$975,000
6320 Shattuck Ave
Oakland, CA, 94609
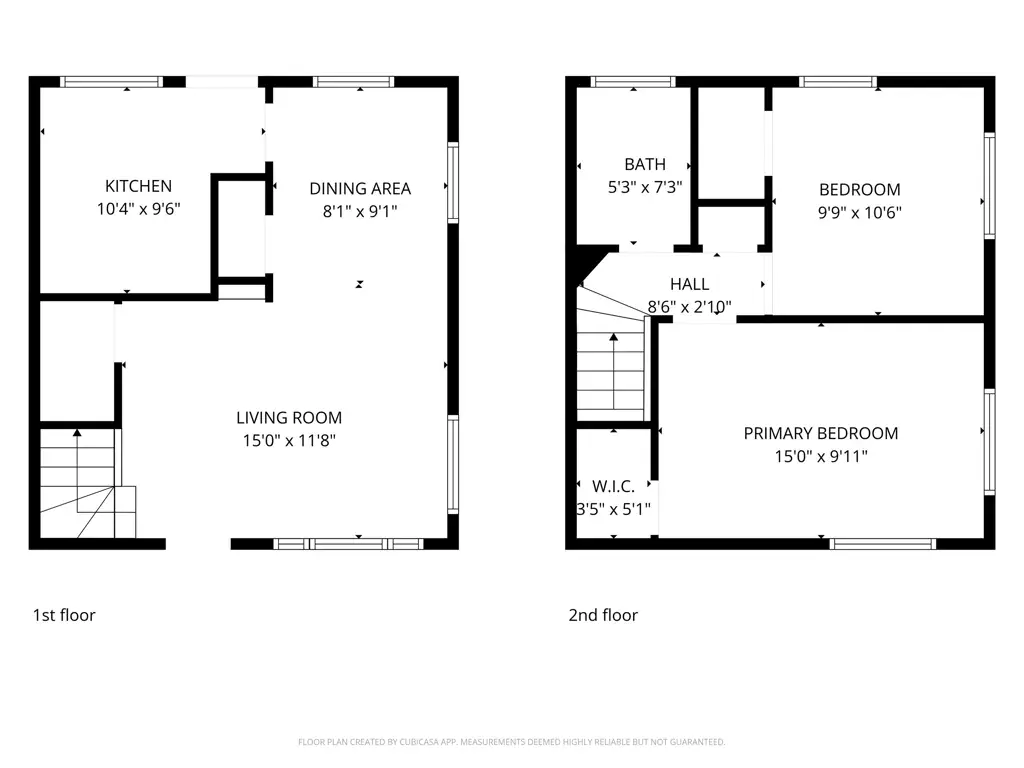
Welcome to 6320 Shattuck Avenue, a well-maintained duplex offering flexibility, strong income potential, and an excellent North Oakland location near Berkeley. The property features two 2-bedroom, 1-bath units, each with tasteful updates throughout and will be delivered vacant. This property has vintage charm including beautiful hardwood floors and built ins. Updates include plumbing and electrical, refreshed kitchens with stainless steel appliances, roof 3-5 years, windows 2 years, and fresh interior/exterior paint, creating a move-in-ready opportunity for both owner-occupants and investors. A nicely fenced backyard provides private outdoor space—ideal for relaxing, gardening, or entertaining. Two detached garage spaces plus two additional off-street parking spaces. Conveniently located just minutes from Berkeley Bowl, Safeway, Trader Joe’s, and the UC Berkeley campus, public transportation, dining, and shopping. Whether you’re seeking a solid income property, an owner-occupy opportunity with rental income, or a value-add investment, this duplex delivers location, condition, and flexibility. A rare opportunity to own a turnkey vacant duplex with outdoor space and ample parking in a highly desirable East Bay neighborhood. 6320Shattuck.com
Property Details
Price:
$975,000
MLS #:
41120482
Status:
Active
Beds:
0
Baths:
0
Type:
Single Family
Subtype:
Duplex
Subdivision:
NORTH OAKLAND
Listed Date:
Jan 9, 2026
Lot Size:
4,620 sqft / 0.11 acres (approx)
Year Built:
1944
Schools
Interior
Flooring
TILE, LAM, WOOD
Heating
FF
Exterior
Construction Materials
STC, WOD
Parking Spots
4
Roof
SHN
Financial
Get Out There, A Simply Outgoing Approach to Life. James Outland Jr. is one of those rare people who simply has an outgoing approach to life. No matter the activity… from dune buggy riding to skydiving to motorcycling to riding the local Pismo Beach waves… James Outland Jr. approaches life with a “just get out there and do it” kind of attitude. A zest for Life. James’ zest for life is obviously apparent in his many exciting hobbies. In his spare time, he loves riding dune buggies or hi…
More About JamesMortgage Calculator
Map
Current real estate data for Single Family in Oakland as of Feb 14, 2026
350
Single Family Listed
85
Avg DOM
477
Avg $ / SqFt
$897,190
Avg List Price
Community
- Address6320 Shattuck Ave Oakland CA
- SubdivisionNORTH OAKLAND
- CityOakland
- CountyAlameda
- Zip Code94609
Similar Listings Nearby
Property Summary
- Located in the NORTH OAKLAND subdivision, 6320 Shattuck Ave Oakland CA is a Single Family for sale in Oakland, CA, 94609. It is listed for $975,000 and features 0 beds, 0 baths, and has approximately 0 square feet of living space, and was originally constructed in 1944. The average price per square foot for Single Family listings in Oakland is $477. The average listing price for Single Family in Oakland is $897,190. To schedule a showing of MLS#41120482 at 6320 Shattuck Ave in Oakland, CA, contact your James Outland agent at 8057482262.
Courtesy of Compass. Disclaimer: All data relating to real estate for sale on this page comes from the Broker Reciprocity (BR) of the California Regional Multiple Listing Service. Detailed information about real estate listings held by brokerage firms other than James Outland include the name of the listing broker. Neither the listing company nor James Outland shall be responsible for any typographical errors, misinformation, misprints and shall be held totally harmless. The Broker providing this data believes it to be correct, but advises interested parties to confirm any item before relying on it in a purchase decision. Copyright 2026. California Regional Multiple Listing Service. All rights reserved. 6320 Shattuck Ave
Oakland, CA













































