$1,499,000
780 Conestoga LN
Nipomo, CA, 93444
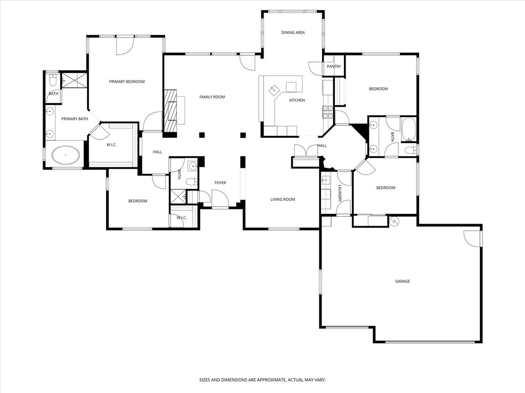
Rare single-level opportunity in Knollwood Estates, one of Nipomo’s most sought-after enclaves — where homes rarely become available. Set on a private cul-de-sac backing up to open space and a natural eucalyptus grove, this 4-bedroom, 3-bath, 2,557 sqft home sits on just over an acre of flat, usable land with privacy that’s hard to come by on the Central Coast. Arched architecture and custom art niches carry throughout the interior, complemented by tall ceilings and a layout designed for effortless single-level living. The kitchen anchors the home with double ovens, a walk-in pantry, custom countertops, and bar seating open to the dining area, living room, and backyard. A separate front flex space works equally well as a formal dining room or secondary living area. The primary suite occupies its own wing, featuring a jetted tub, separate shower, dual sinks, walk-in closet, and direct backyard access. A second bedroom in the same wing is served by a nearby ¾ bath. On the opposite end, two additional bedrooms connect through a Hollywood-style shared bathroom with dual sinks. Outside, enjoy a paver patio with covered trellis dining area overlooking a fully fenced backyard featuring an outdoor firepit, drought-tolerant landscaping, fountain, and direct trail access. The generous lot invites future possibilities — pool, workshop, or expanded outdoor living. A finished 3-car garage and dedicated laundry room with sink and storage complete the package. Minutes to multiple golf courses, acclaimed wineries, coastal dining, and Highway 101. Information deemed reliable but not guaranteed.
Property Details
Price:
$1,499,000
MLS #:
SC26064359
Status:
Active
Beds:
4
Baths:
3
Type:
Single Family
Subtype:
Single Family Residence
Subdivision:
Nipomo340
Neighborhood:
npmonipomo
Listed Date:
Apr 1, 2026
Finished Sq Ft:
2,557
Lot Size:
43,996 sqft / 1.01 acres (approx)
Year Built:
2004
Schools
School District:
Lucia Mar Unified
Interior
Appliances
DW, MW, RF, BIR, DO, WS
Bathrooms
2 Full Bathrooms, 1 Three Quarter Bathroom
Cooling
NO
Flooring
WOOD, CARP
Heating
FA
Interior Features
PTRY, HCEL
Laundry Features
IN
Levels
A
Main Level Bathrooms
3
Main Level Bedrooms
4
Exterior
Accessibility Features
NIS, NO
Attached Garage YN
1
Common Walls
NCW
Community Features
HRS, HIKI
Construction Materials
STC
Fencing
GOOD
Garage Spaces
3
Other Structures
SBL
Parking Spots
3
Parking Total
3
Patio And Porch Features
PTO, POF
Roof
TLE
Security Features
SD, COD
Spa Features
NO
View
TW
Window Features
PLS, DPW
Financial
HOA Fee
$140
HOA Fee Frequency
MO
Get Out There, A Simply Outgoing Approach to Life. James Outland Jr. is one of those rare people who simply has an outgoing approach to life. No matter the activity… from dune buggy riding to skydiving to motorcycling to riding the local Pismo Beach waves… James Outland Jr. approaches life with a “just get out there and do it” kind of attitude. A zest for Life. James’ zest for life is obviously apparent in his many exciting hobbies. In his spare time, he loves riding dune buggies or hi…
More About JamesMortgage Calculator
Map
Current real estate data for Single Family in Nipomo as of Apr 06, 2026
64
Single Family Listed
53
Avg DOM
521
Avg $ / SqFt
$1,192,149
Avg List Price
Community
- Address780 Conestoga LN Nipomo CA
- SubdivisionNipomo(340)
- CityNipomo
- CountySan Luis Obispo
- Zip Code93444
Similar Listings Nearby
Property Summary
- Located in the Nipomo(340) subdivision, 780 Conestoga LN Nipomo CA is a Single Family for sale in Nipomo, CA, 93444. It is listed for $1,499,000 and features 4 beds, 3 baths, and has approximately 2,557 square feet of living space, and was originally constructed in 2004. The current price per square foot is $586. The average price per square foot for Single Family listings in Nipomo is $521. The average listing price for Single Family in Nipomo is $1,192,149. To schedule a showing of MLS#sc26064359 at 780 Conestoga LN in Nipomo, CA, contact your James Outland agent at 8057482262.
Courtesy of BHGRE HAVEN PROPERTIES. Disclaimer: All data relating to real estate for sale on this page comes from the Broker Reciprocity (BR) of the California Regional Multiple Listing Service. Detailed information about real estate listings held by brokerage firms other than James Outland include the name of the listing broker. Neither the listing company nor James Outland shall be responsible for any typographical errors, misinformation, misprints and shall be held totally harmless. The Broker providing this data believes it to be correct, but advises interested parties to confirm any item before relying on it in a purchase decision. Copyright 2026. California Regional Multiple Listing Service. All rights reserved. 780 Conestoga LN
Nipomo, CA

















































































