$3,998,800
2698 Greenrock RD
Milpitas, CA, 95035
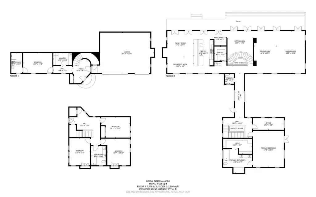
Designed by architect Daniel Solomon and set in the exclusive 13-home Lees Orchard community, 2698 Greenrock Road commands attention from the moment you arrive. Perched above Silicon Valley, the home captures sweeping bay and valley views, while a stunning remodel has transformed this 4,651SF contemporary residence into a refined showpiece. The gourmet kitchen and great room anchor the home, featuring Wolf and Sub-Zero appliances, gas cooktop, built-in refrigerator, oversized island, and walk-in pantry. Expansive windows and doors fill the space with natural light and create seamless indoor-outdoor flow. Five bedrooms, including a luxurious primary suite with a spacious bath and walk-in closet, plus a private office, 3.5 baths, and large laundry room provide both comfort and flexibility. Notable features include high ceilings, multi-zone radiant heating and cooling, 3-car garage with dual EV chargers, 400-amp service, and owned solar.. The private hillside setting offers multiple entertaining areas with a huge covered deck, multiple patios/decks, storage sheds and orchard, all on ~1.5 acres, along with access to a community pool. Ideally located near top Milpitas schools, freeways, VTA light rail, and BART. Come see this one-of-a-kind home and appreciate all it has to offer!
Property Details
Price:
$3,998,800
MLS #:
ML82041024
Status:
Active
Beds:
5
Baths:
4
Type:
Single Family
Subtype:
Single Family Residence
Neighborhood:
699notdefined
Listed Date:
Mar 31, 2026
Finished Sq Ft:
4,651
Lot Size:
64,904 sqft / 1.49 acres (approx)
Year Built:
1991
Schools
School District:
Other
Interior
Appliances
DW, FZ, GD, MW, RF, GS, EO, VEF
Bathrooms
3 Full Bathrooms, 1 Half Bathroom
Cooling
CA
Flooring
TILE, LAM
Heating
CF
Exterior
Architectural Style
CNT
Attached Garage YN
1
Common Walls
NCW
Fencing
PTL
Garage Spaces
3
Parking Spots
3
Parking Total
3
Patio And Porch Features
DK
Roof
CMP
Security Features
FS
Spa Features
COM
View
BA, BR, CI, HI, PK, VA
Financial
HOA Fee
$675
HOA Fee Frequency
MO
Get Out There, A Simply Outgoing Approach to Life. James Outland Jr. is one of those rare people who simply has an outgoing approach to life. No matter the activity… from dune buggy riding to skydiving to motorcycling to riding the local Pismo Beach waves… James Outland Jr. approaches life with a “just get out there and do it” kind of attitude. A zest for Life. James’ zest for life is obviously apparent in his many exciting hobbies. In his spare time, he loves riding dune buggies or hi…
More About JamesMortgage Calculator
Map
Current real estate data for Single Family in Milpitas as of Apr 08, 2026
33
Single Family Listed
58
Avg DOM
982
Avg $ / SqFt
$1,817,967
Avg List Price
Community
- Address2698 Greenrock RD Milpitas CA
- CityMilpitas
- CountySanta Clara
- Zip Code95035
Similar Listings Nearby
Property Summary
- 2698 Greenrock RD Milpitas CA is a Single Family for sale in Milpitas, CA, 95035. It is listed for $3,998,800 and features 5 beds, 4 baths, and has approximately 4,651 square feet of living space, and was originally constructed in 1991. The current price per square foot is $860. The average price per square foot for Single Family listings in Milpitas is $982. The average listing price for Single Family in Milpitas is $1,817,967. To schedule a showing of MLS#ml82041024 at 2698 Greenrock RD in Milpitas, CA, contact your James Outland agent at 8057482262.
Courtesy of Compass. Disclaimer: All data relating to real estate for sale on this page comes from the Broker Reciprocity (BR) of the California Regional Multiple Listing Service. Detailed information about real estate listings held by brokerage firms other than James Outland include the name of the listing broker. Neither the listing company nor James Outland shall be responsible for any typographical errors, misinformation, misprints and shall be held totally harmless. The Broker providing this data believes it to be correct, but advises interested parties to confirm any item before relying on it in a purchase decision. Copyright 2026. California Regional Multiple Listing Service. All rights reserved. 2698 Greenrock RD
Milpitas, CA





































































































