$789,000
31464 Daybreak CT
Menifee, CA, 92584
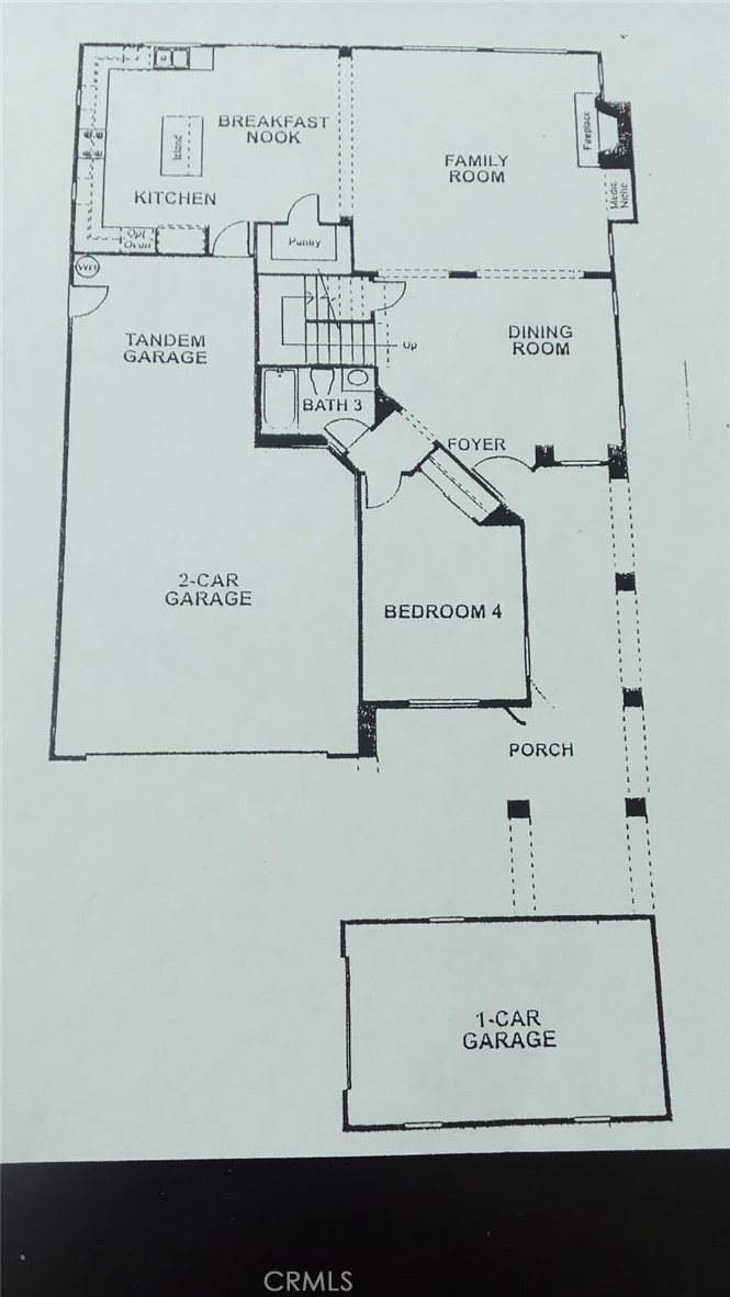
*EXCEPTIONAL 5 BEDROOM HOME with a PRIVATE POOL! Has both a 3 CAR TANDEM GARAGE and a SINGLE CAR GARAGE! The home’s INTERIOR has an OPEN CONCEPT LAYOUT with UPGRADES. The BEAUTIFUL GOURMET KITCHEN has Elegant Dark Stained Cabinetry, a Large Island, a LARGE Walk-in Pantry, and Granite Counters with a Full Granite Backsplash. There is plenty of room for Dining in the GREAT ROOM, as well as Seating at the KITCHEN ISLAND. And, the Great Room has a COZY GAS FIREPLACE. The DINING ROOM enhances a more formal Dining Experience. ONE FIRST FLOOR BEDROOM and a FULL BATHROOM are conveniently located DOWNSTAIRS. There are 4 ADDITIONAL BEDROOMS UPSTAIRS PLUS a large LOFT, designed to be either a 6TH BEDROOM or a RETREAT, and 2 MORE FULL BATHROOMS! Both UPSTAIRS’ BATHROOMS have DUAL SINKS. The PRIMARY BEDROOM has both a Soaking Tub and a Separate Shower, a Private Toilet, and a LARGE Walk-In Closet. The LAUNDRY ROOM is conveniently located upstairs. Both the Linen Closet and the Stairway Bannister are finished with a fine Dark Stain. Blinds are included throughout the home. Downstairs, step through the Sliding Glass Door and into the PRIVATE and EASY TO MAINTAIN BACKYARD. Play and Relax in your own GATED POOL. Beautiful mature trees, plants, and pretty flowers enhance the beauty of the Pool Area. The Electrical is pre-installed for a spa. Numerous DRAINS and RAIN GUTTERS keep the backyard dry. A GAS LINE and a SINK DRAIN are installed on the PATIO and are ready for a BBQ or an outdoor kitchen. There is also a GARDEN for planting flowers or vegetables.
There are NO houses directly behind the rear wall of the property… giving you an Open VIEW of the Hills and oh so QUIET!!
This is a UNIQUE AND PRIVATE PROPERTY!
Shopping and Dining are Nearby. Parks, Schools, Close Proximity to San Jacinto College, and good freeway access make this home a WINNER!
GREAT SO. CAL location near Temecula Valley Wine Country, Desert and Mountain Communities, and central to both Los Angeles and San Diego!
Be a part of an exciting, growing community with newer homes and numerous amenities! DON’T MISS THIS ONE!!!
There are NO houses directly behind the rear wall of the property… giving you an Open VIEW of the Hills and oh so QUIET!!
This is a UNIQUE AND PRIVATE PROPERTY!
Shopping and Dining are Nearby. Parks, Schools, Close Proximity to San Jacinto College, and good freeway access make this home a WINNER!
GREAT SO. CAL location near Temecula Valley Wine Country, Desert and Mountain Communities, and central to both Los Angeles and San Diego!
Be a part of an exciting, growing community with newer homes and numerous amenities! DON’T MISS THIS ONE!!!
Property Details
Price:
$789,000
MLS #:
PW26016930
Status:
Active
Beds:
5
Baths:
3
Type:
Single Family
Subtype:
Single Family Residence
Neighborhood:
srcarsouthwestriversidecounty
Listed Date:
Feb 6, 2026
Finished Sq Ft:
2,688
Lot Size:
9,148 sqft / 0.21 acres (approx)
Year Built:
2006
Schools
School District:
Perris Union High
Elementary School:
Callie Kirkpatrick
Middle School:
Bell Mountain
High School:
Liberty
Interior
Appliances
DW, GD, MW, GS, EO, CO, GWH, HOD, WHU
Bathrooms
3 Full Bathrooms
Cooling
CA
Flooring
TILE, CARP
Heating
FA, CF
Laundry Features
GAS, IR, IN, UL, DINC, WH, WINC
Exterior
Architectural Style
CNT
Community Features
SDW, STM, SL, SUB, CRB, CW, PARK, HIKI, BIKI
Construction Materials
STC
Exterior Features
RG
Other Structures
SEGAT
Parking Spots
8
Roof
FLT
Security Features
SD
Financial
Get Out There, A Simply Outgoing Approach to Life. James Outland Jr. is one of those rare people who simply has an outgoing approach to life. No matter the activity… from dune buggy riding to skydiving to motorcycling to riding the local Pismo Beach waves… James Outland Jr. approaches life with a “just get out there and do it” kind of attitude. A zest for Life. James’ zest for life is obviously apparent in his many exciting hobbies. In his spare time, he loves riding dune buggies or hi…
More About JamesMortgage Calculator
Map
Current real estate data for Single Family in Menifee as of Feb 14, 2026
422
Single Family Listed
53
Avg DOM
266
Avg $ / SqFt
$532,077
Avg List Price
Community
- Address31464 Daybreak CT Menifee CA
- CityMenifee
- CountyRiverside
- Zip Code92584
Similar Listings Nearby
Property Summary
- 31464 Daybreak CT Menifee CA is a Single Family for sale in Menifee, CA, 92584. It is listed for $789,000 and features 5 beds, 3 baths, and has approximately 2,688 square feet of living space, and was originally constructed in 2006. The current price per square foot is $294. The average price per square foot for Single Family listings in Menifee is $266. The average listing price for Single Family in Menifee is $532,077. To schedule a showing of MLS#pw26016930 at 31464 Daybreak CT in Menifee, CA, contact your James Outland agent at 8057482262.
Courtesy of Coldwell Banker Best Realty. Disclaimer: All data relating to real estate for sale on this page comes from the Broker Reciprocity (BR) of the California Regional Multiple Listing Service. Detailed information about real estate listings held by brokerage firms other than James Outland include the name of the listing broker. Neither the listing company nor James Outland shall be responsible for any typographical errors, misinformation, misprints and shall be held totally harmless. The Broker providing this data believes it to be correct, but advises interested parties to confirm any item before relying on it in a purchase decision. Copyright 2026. California Regional Multiple Listing Service. All rights reserved. 31464 Daybreak CT
Menifee, CA



























































































