$175,000
14273 Sinclair CR
Magalia, CA, 95954
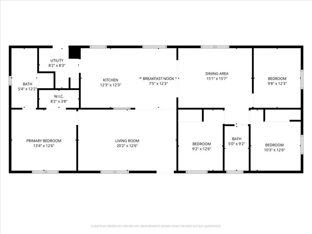
Rare opportunity to own a 4-bedroom manufactured home on a permanent foundation in the desirable Paradise Pines community of Magalia—fully lendable and move-in ready. Recent updates include a new roof installed in Summer 2023, newer exterior paint, and over $4,000 in tree work completed to enhance fire safety and peace of mind. This 1,560 square foot home on a 0.24-acre lot offers a spacious and flexible layout, featuring a bonus room currently used as a dining area and previously enjoyed as a family/play room, along with a fully fenced backyard and detached shed for additional storage. As part of the Paradise Pines Property Owners Association, residents enjoy access to an array of amenities including a community pool, tennis courts, picnic areas, scenic walking and hiking trails, and year-round community events. Comfort, functionality, and community come together in this affordable offering—don’t miss it!
Property Details
Price:
$175,000
MLS #:
OR26072994
Status:
Active
Beds:
4
Baths:
2
Type:
Single Family
Subtype:
Manufactured On Land
Listed Date:
Apr 9, 2026
Finished Sq Ft:
1,560
Lot Size:
10,454 sqft / 0.24 acres (approx)
Year Built:
1996
Schools
School District:
Paradise Unified
Interior
Bathrooms
1 Full Bathroom, 1 Half Bathroom
Cooling
NO
Heating
BB, CF
Laundry Features
IR, IN
Levels
A
Main Level Bathrooms
2
Main Level Bedrooms
4
Exterior
Architectural Style
TRD
Common Walls
NCW
Community Features
FHL, GOLF, LAKE, PARK, FISH, HIKI
View
TW, NE
Financial
HOA Fee
$310
HOA Fee Frequency
ANU
Get Out There, A Simply Outgoing Approach to Life. James Outland Jr. is one of those rare people who simply has an outgoing approach to life. No matter the activity… from dune buggy riding to skydiving to motorcycling to riding the local Pismo Beach waves… James Outland Jr. approaches life with a “just get out there and do it” kind of attitude. A zest for Life. James’ zest for life is obviously apparent in his many exciting hobbies. In his spare time, he loves riding dune buggies or hi…
More About JamesMortgage Calculator
Map
Current real estate data for Single Family in Magalia as of Apr 12, 2026
76
Single Family Listed
79
Avg DOM
175
Avg $ / SqFt
$283,337
Avg List Price
Community
- Address14273 Sinclair CR Magalia CA
- CityMagalia
- CountyButte
- Zip Code95954
Similar Listings Nearby
Property Summary
- 14273 Sinclair CR Magalia CA is a Single Family for sale in Magalia, CA, 95954. It is listed for $175,000 and features 4 beds, 2 baths, and has approximately 1,560 square feet of living space, and was originally constructed in 1996. The current price per square foot is $112. The average price per square foot for Single Family listings in Magalia is $175. The average listing price for Single Family in Magalia is $283,337. To schedule a showing of MLS#or26072994 at 14273 Sinclair CR in Magalia, CA, contact your James Outland agent at 8057482262.
Courtesy of Century 21 Select Real Estate Inc.. Disclaimer: All data relating to real estate for sale on this page comes from the Broker Reciprocity (BR) of the California Regional Multiple Listing Service. Detailed information about real estate listings held by brokerage firms other than James Outland include the name of the listing broker. Neither the listing company nor James Outland shall be responsible for any typographical errors, misinformation, misprints and shall be held totally harmless. The Broker providing this data believes it to be correct, but advises interested parties to confirm any item before relying on it in a purchase decision. Copyright 2026. California Regional Multiple Listing Service. All rights reserved. 14273 Sinclair CR
Magalia, CA










































