Perfect for multi-generational living, investment, or living in one home while renting the other.
Located in the highly desirable Elephant Hills neighborhood—just two streets off Collis and minutes from South Pasadena—this exceptional property offers two fully independent homes on a generous lot, each with its own parking and separate utilities. A truly unique find in one of Northeast LA’s most sought-after pockets.
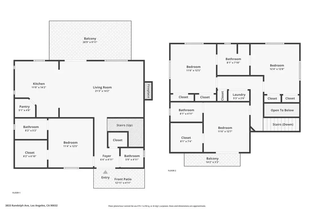
Back House – Modern -newer Construction with Stunning Views
A newer, thoughtfully designed home featuring contemporary finishes and a flexible layout:
• First-floor Master bedroom/full bath -Second master bedroom on second floor.
• Guest-friendly half bath on the main level
• Open-concept living, dining, and kitchen ideal for entertaining
• Chef-inspired kitchen with high ceilings, custom cabinetry, pantry, island seating, and double glass doors opening to a spacious balcony overlooking mature trees and twinkling city lights
• Inviting living room with a gas fireplace—perfect for cozy evenings
• Upper level includes a second primary suite with private balcony, plus two additional bedrooms and a full bath
• Central AC and heating for year-round comfort
This home offers privacy, space, and beautiful natural surroundings. Front House – Fully Remodeled with Classic Charm
A beautifully updated 3-bedroom, 1-bath home that blends character with modern convenience:
• Brand-new kitchen cabinets with cork countertops
• Fresh interior paint and refinished hardwood floors
• Remodeled bathroom, new windows, and new roof
• New split AC/heating system
• Large basement ideal for storage, workshop, or creative studio
The expansive front yard features lush green grass—perfect for play, gardening, or enhancing curb appeal.
Outdoor Features & Lot Highlights
• Three tiers of leveled backyard with fruit trees
• Space for small RV parking in the front
• Easy access to major freeways and main streets
• Quick commute to DTLA, USC Medical Center, and all the trendy restaurants, boutiques, and coffee shops in Highland Park
Property Details
Schools
Interior
Exterior
Financial
Get Out There, A Simply Outgoing Approach to Life. James Outland Jr. is one of those rare people who simply has an outgoing approach to life. No matter the activity… from dune buggy riding to skydiving to motorcycling to riding the local Pismo Beach waves… James Outland Jr. approaches life with a “just get out there and do it” kind of attitude. A zest for Life. James’ zest for life is obviously apparent in his many exciting hobbies. In his spare time, he loves riding dune buggies or hi…
More About JamesMortgage Calculator
Map
Community
- Address3833 Randolph Los Angeles CA
- CityLos Angeles
- CountyLos Angeles
- Zip Code90032
Similar Listings Nearby
Property Summary
- 3833 Randolph Los Angeles CA is a Single Family for sale in Los Angeles, CA, 90032. It is listed for $1,469,000 and features 0 beds, 0 baths, and has approximately 0 square feet of living space, and was originally constructed in 1927. The average price per square foot for Single Family listings in Los Angeles is $515. The average listing price for Single Family in Los Angeles is $1,552,293. To schedule a showing of MLS#cv26020022 at 3833 Randolph in Los Angeles, CA, contact your James Outland agent at 8057482262.
Courtesy of TREVINO PROPERTIES, INC.. Disclaimer: All data relating to real estate for sale on this page comes from the Broker Reciprocity (BR) of the California Regional Multiple Listing Service. Detailed information about real estate listings held by brokerage firms other than James Outland include the name of the listing broker. Neither the listing company nor James Outland shall be responsible for any typographical errors, misinformation, misprints and shall be held totally harmless. The Broker providing this data believes it to be correct, but advises interested parties to confirm any item before relying on it in a purchase decision. Copyright 2026. California Regional Multiple Listing Service. All rights reserved. Perfect for multi-generational living, investment, or living in one home while renting the other.
Located in the highly desirable Elephant Hills neighborhood—just two streets off Collis and minutes from South Pasadena—this exceptional property offers two fully independent homes on a generous lot, each with its own parking and separate utilities. A truly unique find in one of Northeast LA’s most sought-after pockets.
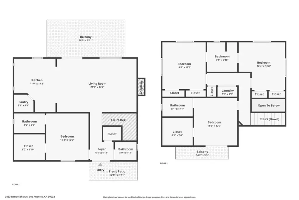
Back House – Modern -newer Construction with Stunning Views
A newer, thoughtfully designed home featuring contemporary finishes and a flexible layout:
• First-floor Master bedroom/full bath -Second master bedroom on second floor.
• Guest-friendly half bath on the main level
• Open-concept living, dining, and kitchen ideal for entertaining
• Chef-inspired kitchen with high ceilings, custom cabinetry, pantry, island seating, and double glass doors opening to a spacious balcony overlooking mature trees and twinkling city lights
• Inviting living room with a gas fireplace—perfect for cozy evenings
• Upper level includes a second primary suite with private balcony, plus two additional bedrooms and a full bath
• Central AC and heating for year-round comfort
This home offers privacy, space, and beautiful natural surroundings. Front House – Fully Remodeled with Classic Charm
A beautifully updated 3-bedroom, 1-bath home that blends character with modern convenience:
• Brand-new kitchen cabinets with cork countertops
• Fresh interior paint and refinished hardwood floors
• Remodeled bathroom, new windows, and new roof
• New split AC/heating system
• Large basement ideal for storage, workshop, or creative studio
The expansive front yard features lush green grass—perfect for play, gardening, or enhancing curb appeal.
Outdoor Features & Lot Highlights
• Three tiers of leveled backyard with fruit trees
• Space for small RV parking in the front
• Easy access to major freeways and main streets
• Quick commute to DTLA, USC Medical Center, and all the trendy restaurants, boutiques, and coffee shops in Highland Park
Property Details
Schools
Interior
Exterior
Financial
Get Out There, A Simply Outgoing Approach to Life. James Outland Jr. is one of those rare people who simply has an outgoing approach to life. No matter the activity… from dune buggy riding to skydiving to motorcycling to riding the local Pismo Beach waves… James Outland Jr. approaches life with a “just get out there and do it” kind of attitude. A zest for Life. James’ zest for life is obviously apparent in his many exciting hobbies. In his spare time, he loves riding dune buggies or hi…
More About JamesMortgage Calculator
Map
Community
- Address3833 Randolph Los Angeles CA
- CityLos Angeles
- CountyLos Angeles
- Zip Code90032
Similar Listings Nearby
Property Summary
- 3833 Randolph Los Angeles CA is a Single Family for sale in Los Angeles, CA, 90032. It is listed for $1,469,000 and features 7 beds, 5 baths, and has approximately 2,767 square feet of living space, and was originally constructed in 1927. The current price per square foot is $531. The average price per square foot for Single Family listings in Los Angeles is $515. The average listing price for Single Family in Los Angeles is $1,552,293. To schedule a showing of MLS#cv26047391 at 3833 Randolph in Los Angeles, CA, contact your James Outland agent at 8057482262.


































































