$225,000
3400 Glenalbyn DR
Los Angeles, CA, 90065
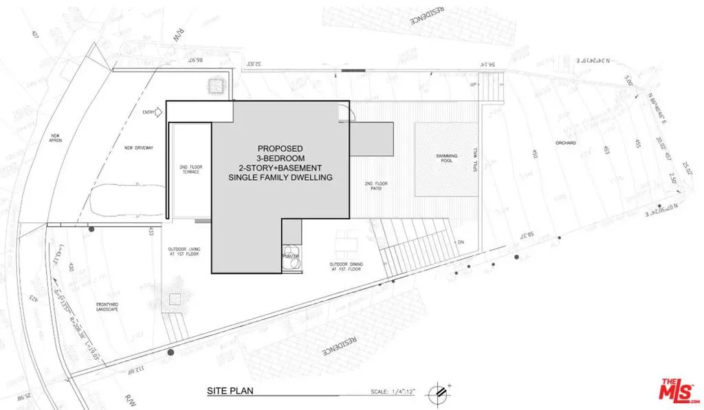
View lot with previous structure on site including access to utilities. Estimated build is over 2000 square feet including 3 beds and 3 baths. Opportunity to build your dream home in the family-friendly, vibrant Mt. Washington neighborhood, with a short distance to coffee shops, restaurants and markets. The location offers easy access to the 110 and 5 freeways. With more than 60 feet of street frontage, this upslope lot opens itself up to astonishing views of Elysian Park, the LA River, and Downtown LA. Beneficial construction conditions include a fully improved street, gas line in the lot, available sewer and water connections, power and internet lines at less than 50′ distance; excellent soils suitable for conventional foundation methods with approved soils report available; topography and boundary survey recently done. Reports available upon request. Lot is sold with the schematic design for a 2,070 sf 3-bedroom, 3-bathroom single-family dwelling featuring a two-car garage at street level. Dining, living and master bedroom open up to the flickering lights of downtown skyscrapers and the fireworks preceding a Dodger Stadium event. The possibility of adding an 800 sf ADU is presented as an additional option. Both potential builds have been drafted based on communication with the LADBS planning department. The architect who designed the project is also available to carry the project forward to completion if desired.
Property Details
Price:
$225,000
MLS #:
26671075
Status:
Active
Beds:
0
Baths:
0
Type:
Land
Neighborhood:
680mountwashington
Listed Date:
Mar 30, 2026
Lot Size:
4,147 sqft / 0.10 acres (approx)
Schools
Interior
Exterior
View
CI
Financial
Get Out There, A Simply Outgoing Approach to Life. James Outland Jr. is one of those rare people who simply has an outgoing approach to life. No matter the activity… from dune buggy riding to skydiving to motorcycling to riding the local Pismo Beach waves… James Outland Jr. approaches life with a “just get out there and do it” kind of attitude. A zest for Life. James’ zest for life is obviously apparent in his many exciting hobbies. In his spare time, he loves riding dune buggies or hi…
More About JamesMortgage Calculator
Map
Current real estate data for Land in Los Angeles as of Apr 06, 2026
454
Land Listed
155
Avg DOM
$1,547,352
Avg List Price
Community
- Address3400 Glenalbyn DR Los Angeles CA
- CityLos Angeles
- CountyLos Angeles
- Zip Code90065
Similar Listings Nearby
Property Summary
- 3400 Glenalbyn DR Los Angeles CA is a Land for sale in Los Angeles, CA, 90065. It is listed for $225,000 and features 0 acres. To schedule a showing of MLS#26671075 at 3400 Glenalbyn DR in Los Angeles, CA, contact your James Outland agent at 8057482262.
Courtesy of Real Broker. Disclaimer: All data relating to real estate for sale on this page comes from the Broker Reciprocity (BR) of the California Regional Multiple Listing Service. Detailed information about real estate listings held by brokerage firms other than James Outland include the name of the listing broker. Neither the listing company nor James Outland shall be responsible for any typographical errors, misinformation, misprints and shall be held totally harmless. The Broker providing this data believes it to be correct, but advises interested parties to confirm any item before relying on it in a purchase decision. Copyright 2026. California Regional Multiple Listing Service. All rights reserved. 3400 Glenalbyn DR
Los Angeles, CA
















