$299,000
1938 N Phillips WY
Los Angeles, CA, 90042
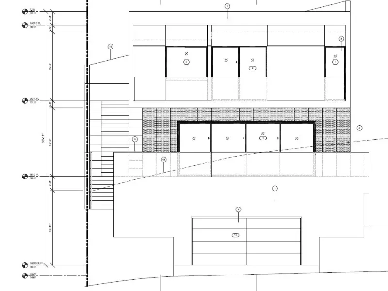
Perfect opportunity for a developer or owner-user to build in one of the most scenic hillside communities. Located in the desirable Highland Park area near Eagle Rock, this lot offers breathtaking panoramic views stretching from Downtown Los Angeles to Palos Verdes. Design a custom driveway leading to your view home and enjoy the serenity, privacy, and inspiration of hillside living. The seller has a conceptual drawing available for review featuring a 3-bedroom, 3.5-bathroom home with a study room, an attached 2-car garage, and approximately 1,800 square feet of living space. Please note, the plans have not yet been submitted to or approved by the City of Los Angeles. The adjacent lot is also available for sale (MLS# AR25143806), offering added potential and flexibility for future development. This is an exceptional opportunity to build with scale, privacy, and unmatched views.
Property Details
Price:
$299,000
MLS #:
AR25143814
Status:
Active
Beds:
0
Baths:
0
Type:
Land
Neighborhood:
632highlandpark
Listed Date:
Jun 30, 2025
Lot Size:
5,593 sqft / 0.13 acres (approx)
Schools
Interior
Exterior
Community Features
MTN
View
MT, SEE, NE
Financial
Get Out There, A Simply Outgoing Approach to Life. James Outland Jr. is one of those rare people who simply has an outgoing approach to life. No matter the activity… from dune buggy riding to skydiving to motorcycling to riding the local Pismo Beach waves… James Outland Jr. approaches life with a “just get out there and do it” kind of attitude. A zest for Life. James’ zest for life is obviously apparent in his many exciting hobbies. In his spare time, he loves riding dune buggies or hi…
More About JamesMortgage Calculator
Map
Current real estate data for Land in Los Angeles as of Apr 08, 2026
462
Land Listed
155
Avg DOM
$1,585,343
Avg List Price
Community
- Address1938 N Phillips WY Los Angeles CA
- CityLos Angeles
- CountyLos Angeles
- Zip Code90042
Similar Listings Nearby
Property Summary
- 1938 N Phillips WY Los Angeles CA is a Land for sale in Los Angeles, CA, 90042. It is listed for $299,000 and features 0 acres. To schedule a showing of MLS#ar25143814 at 1938 N Phillips WY in Los Angeles, CA, contact your James Outland agent at 8057482262.
Courtesy of Re/Max Premier Prop Arcadia. Disclaimer: All data relating to real estate for sale on this page comes from the Broker Reciprocity (BR) of the California Regional Multiple Listing Service. Detailed information about real estate listings held by brokerage firms other than James Outland include the name of the listing broker. Neither the listing company nor James Outland shall be responsible for any typographical errors, misinformation, misprints and shall be held totally harmless. The Broker providing this data believes it to be correct, but advises interested parties to confirm any item before relying on it in a purchase decision. Copyright 2026. California Regional Multiple Listing Service. All rights reserved. 1938 N Phillips WY
Los Angeles, CA

































