$4,200
1855 Industrial ST #318
Los Angeles, CA, 90021
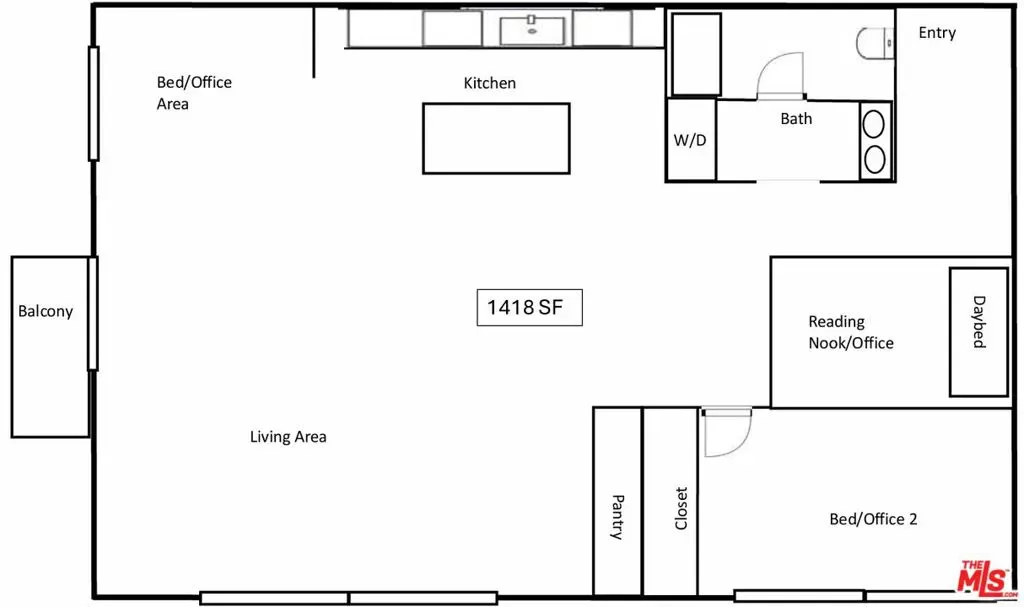
Toy Factory live/work industrial loft in the heart of the highly desirable Arts District. This unique 3rd floor CORNER loft features 1418sf of space, with 11-foot tall ceilings, concrete floors, and massive vintage factory windows with a northeast balcony off the open plan living area. This true industrial loft features a separated main bedroom with closet storage with built-ins, platformed reading/workspace nook, and spacious bathroom with washer and dryer. Ideal as a flexible creative space. The open plan kitchen features a stainless steel island with additional storage, and flows into the living/dining area. The living area features a glass casement door that leads out onto a balcony, extra hidden storage behind barn doors, and a great flexible layout. Central heat and AC throughout. Rent INCLUDES 2 TANDEM COVERED PARKING SPACES w/ EV charger, water and trash. The beloved Toy Factory building features a stunning rooftop pool deck and cabanas, 360 degree views of DTLA, garden and lounge deck with BBQs, gym, 24/7 front desk reception, and in-building parking. You’re within blocks of the best of the Arts District, including Soho House, award-winning Camelia, Bestia, Verve, The Girl & Goat, Bavel, Urth Cafe, Manuela, Hauser & Wirth, Geffen Contemporary, A&D Museum, Hanks, GROW market, Hennessy & Ingalls, Salt & Straw, Dover Street Market, Sci-Arc, Bread Lounge, as well as nearby Little Tokyo and Disney Concert Hall, The Broad, Grand Central Market and more.
Property Details
Price:
$4,200
MLS #:
26661345
Status:
Active
Beds:
1
Baths:
1
Type:
Single Family
Subtype:
Condominium
Neighborhood:
c42downtownla
Listed Date:
Mar 7, 2026
Finished Sq Ft:
1,418
Total Sq Ft:
1,418
Lot Size:
42,628 sqft / 0.98 acres (approx)
Year Built:
1924
Schools
Interior
Appliances
DW, GD, MW, RF, GS, OV
Bathrooms
1 Full Bathroom
Cooling
CA
Heating
CF
Laundry Features
ICL, WINC
Levels
A
Exterior
Architectural Style
SEE
Attached Garage YN
1
Common Walls
_1CW
Direction Faces
N
Parking Spots
1
Parking Total
1
Security Features
_24HR, CRD, GC, GG, GRD
View
CI
Financial
Get Out There, A Simply Outgoing Approach to Life. James Outland Jr. is one of those rare people who simply has an outgoing approach to life. No matter the activity… from dune buggy riding to skydiving to motorcycling to riding the local Pismo Beach waves… James Outland Jr. approaches life with a “just get out there and do it” kind of attitude. A zest for Life. James’ zest for life is obviously apparent in his many exciting hobbies. In his spare time, he loves riding dune buggies or hi…
More About JamesMortgage Calculator
Map
Current real estate data for Single Family in Los Angeles as of Apr 09, 2026
7,750
Single Family Listed
86
Avg DOM
510
Avg $ / SqFt
$1,527,470
Avg List Price
Community
- Address1855 Industrial ST #318 Los Angeles CA
- CityLos Angeles
- CountyLos Angeles
- Zip Code90021
Similar Listings Nearby
Property Summary
- 1855 Industrial ST #318 Los Angeles CA is a Single Family for sale in Los Angeles, CA, 90021. It is listed for $4,200 and features 1 beds, 1 baths, and has approximately 1,418 square feet of living space, and was originally constructed in 1924. The current price per square foot is $3. The average price per square foot for Single Family listings in Los Angeles is $510. The average listing price for Single Family in Los Angeles is $1,527,470. To schedule a showing of MLS#26661345 at 1855 Industrial ST #318 in Los Angeles, CA, contact your James Outland agent at 8057482262.
Courtesy of Coldwell Banker Realty. Disclaimer: All data relating to real estate for sale on this page comes from the Broker Reciprocity (BR) of the California Regional Multiple Listing Service. Detailed information about real estate listings held by brokerage firms other than James Outland include the name of the listing broker. Neither the listing company nor James Outland shall be responsible for any typographical errors, misinformation, misprints and shall be held totally harmless. The Broker providing this data believes it to be correct, but advises interested parties to confirm any item before relying on it in a purchase decision. Copyright 2026. California Regional Multiple Listing Service. All rights reserved. 1855 Industrial ST #318
Los Angeles, CA







































