$1,300,000
145 N Toluca ST #1
Los Angeles, CA, 90026
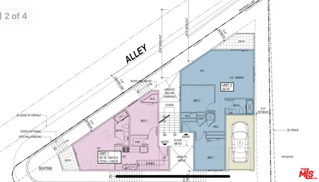
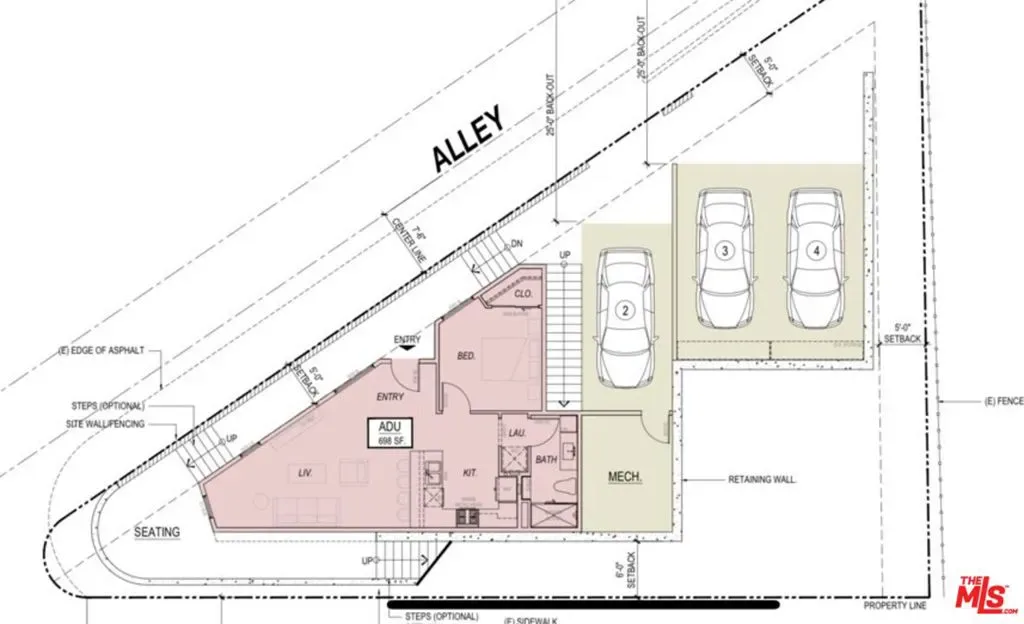
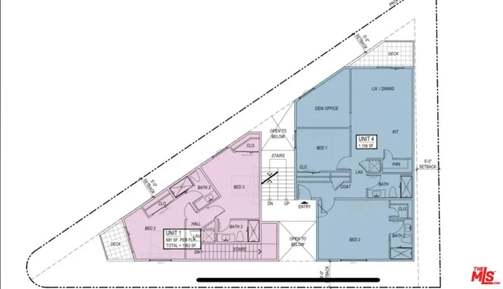
RTI development opportunity in a prime Central Los Angeles location. This property comes with Ready-To-Issue plans for a 5-unit residential project, consisting of 4 units plus 1 Accessory Dwelling Unit (ADU).The approved plans include a 2-story building with basement, totaling approximately 5,291 square feet, designed with an efficient and desirable unit mix. The layout includes a combination of one- and multi-bedroom units, as well as a dedicated ADU, providing flexibility for rental income. Project features include: Roof deck and open space areas with 3 carport spaces and 1 enclosed garage and Modern configuration suitable for today’s rental market! Located in an R4-zoned area (Central City West), the property is positioned near Echo Park, Silver Lake, and Downtown Los Angeles, with convenient access to major employment centers, transportation, and amenities.This is an ideal opportunity for developers or investors to move forward with construction without the time and uncertainty of the entitlement process.Plans and additional documentation available upon request.
Property Details
Price:
$1,300,000
MLS #:
26661015
Status:
Active
Beds:
8
Baths:
7
Type:
Single Family
Neighborhood:
c21silverlakeechopark
Listed Date:
Apr 1, 2026
Finished Sq Ft:
5,291
Total Sq Ft:
5,291
Lot Size:
3,661 sqft / 0.08 acres (approx)
Year Built:
1910
Schools
Interior
Cooling
NO
Heating
NO
Levels
U
Exterior
Parking Spots
4
Parking Total
4
Security Features
GC
View
CI
Financial
Get Out There, A Simply Outgoing Approach to Life. James Outland Jr. is one of those rare people who simply has an outgoing approach to life. No matter the activity… from dune buggy riding to skydiving to motorcycling to riding the local Pismo Beach waves… James Outland Jr. approaches life with a “just get out there and do it” kind of attitude. A zest for Life. James’ zest for life is obviously apparent in his many exciting hobbies. In his spare time, he loves riding dune buggies or hi…
More About JamesMortgage Calculator
Map
Current real estate data for Single Family in Los Angeles as of Apr 06, 2026
7,246
Single Family Listed
88
Avg DOM
517
Avg $ / SqFt
$1,560,481
Avg List Price
Community
- Address145 N Toluca ST #1 Los Angeles CA
- CityLos Angeles
- CountyLos Angeles
- Zip Code90026
Similar Listings Nearby
Property Summary
- 145 N Toluca ST #1 Los Angeles CA is a Single Family for sale in Los Angeles, CA, 90026. It is listed for $1,300,000 and features 8 beds, 7 baths, and has approximately 5,291 square feet of living space, and was originally constructed in 1910. The current price per square foot is $246. The average price per square foot for Single Family listings in Los Angeles is $517. The average listing price for Single Family in Los Angeles is $1,560,481. To schedule a showing of MLS#26661015 at 145 N Toluca ST #1 in Los Angeles, CA, contact your James Outland agent at 8057482262.
Courtesy of Keller Williams Realty Los Feliz. Disclaimer: All data relating to real estate for sale on this page comes from the Broker Reciprocity (BR) of the California Regional Multiple Listing Service. Detailed information about real estate listings held by brokerage firms other than James Outland include the name of the listing broker. Neither the listing company nor James Outland shall be responsible for any typographical errors, misinformation, misprints and shall be held totally harmless. The Broker providing this data believes it to be correct, but advises interested parties to confirm any item before relying on it in a purchase decision. Copyright 2026. California Regional Multiple Listing Service. All rights reserved. 145 N Toluca ST #1
Los Angeles, CA





