$999,000
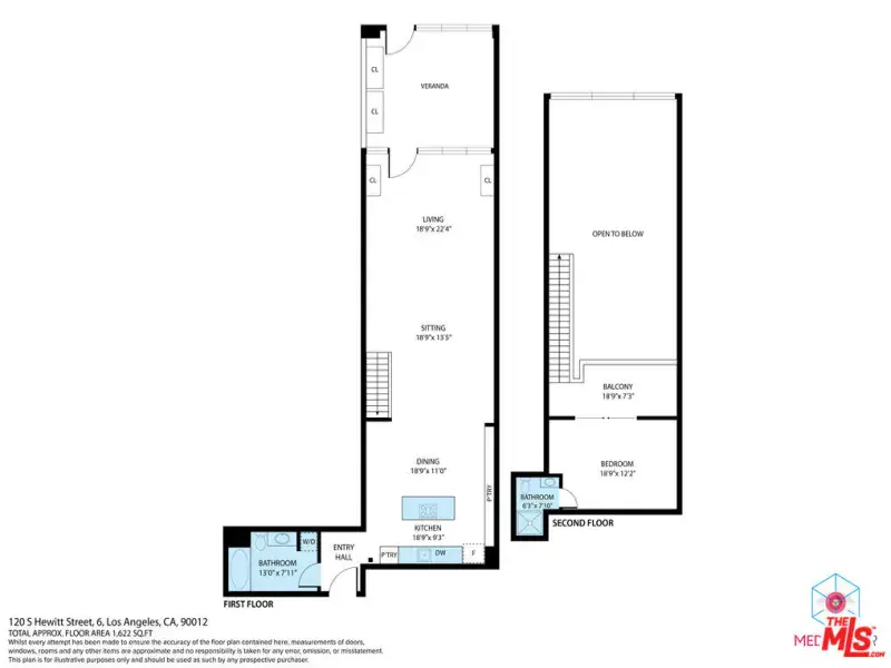
120 S Hewitt ST #6
Los Angeles, CA, 90012
Welcome to Gallery Lofts, a live work community located in the heart of Arts District. This private oversized loft creates the perfect creative sanctuary for artists, musicians, and other like minded individuals. The expansive living area features soaring 16 foot ceilings, polished concrete flooring, an exposed brick wall, and 200 sf private patio that is not included in the total interior square footage. A rare amenity that offers so many possibilities. Also on the first floor is a spa-like full bath and gourmet kitchen with granite countertops, stainless steel appliances, and plenty of built in storage space. Walk up the floating staircase to the primary with bright en-suite bath, and an an option for extra privacy provided by the sliding barn doors. Before entering the primary there is ample space on the mezzanine for a home office or exercise area overlooking your spacious lower level. Experience all of Arts District’s bustling galleries, restaurants, and nightlife. Community features gated security entrances, outdoor atrium, fountains, and a secure mailroom. One assigned parking space with convenient and direct access to the private patio entrance. HOA dues include high speed internet, water, gas, trash, sewer, and community security system.
Property Details
Price:
$999,000
MLS #:
26658627
Status:
Active
Beds:
1
Baths:
2
Type:
Condo
Subtype:
Condominium
Neighborhood:
c23metropolitan
Listed Date:
Mar 2, 2026
Finished Sq Ft:
1,582
Total Sq Ft:
1,582
Lot Size:
14,532 sqft / 0.33 acres (approx)
Year Built:
1948
Schools
Interior
Appliances
DW, GD, MW, RF
Bathrooms
2 Full Bathrooms
Cooling
CA
Flooring
TILE
Heating
CF
Laundry Features
DINC, WINC
Levels
U
Exterior
Architectural Style
CNT
Common Walls
_1CW
Parking Spots
1
Parking Total
1
Security Features
CRD, GC
Financial
HOA Fee
$644
HOA Fee Frequency
MO
Get Out There, A Simply Outgoing Approach to Life. James Outland Jr. is one of those rare people who simply has an outgoing approach to life. No matter the activity… from dune buggy riding to skydiving to motorcycling to riding the local Pismo Beach waves… James Outland Jr. approaches life with a “just get out there and do it” kind of attitude. A zest for Life. James’ zest for life is obviously apparent in his many exciting hobbies. In his spare time, he loves riding dune buggies or hi…
More About JamesMortgage Calculator
Map
Current real estate data for Condo in Los Angeles as of Apr 08, 2026
1,254
Condo Listed
81
Avg DOM
944
Avg $ / SqFt
$1,094,071
Avg List Price
Community
- Address120 S Hewitt ST #6 Los Angeles CA
- CityLos Angeles
- CountyLos Angeles
- Zip Code90012
Similar Listings Nearby
Property Summary
- 120 S Hewitt ST #6 Los Angeles CA is a Condo for sale in Los Angeles, CA, 90012. It is listed for $999,000 and features 1 beds, 2 baths, and has approximately 1,582 square feet of living space, and was originally constructed in 1948. The current price per square foot is $631. The average price per square foot for Condo listings in Los Angeles is $944. The average listing price for Condo in Los Angeles is $1,094,071. To schedule a showing of MLS#26658627 at 120 S Hewitt ST #6 in Los Angeles, CA, contact your James Outland agent at 8057482262.
Courtesy of Keller Williams Realty Los Feliz. Disclaimer: All data relating to real estate for sale on this page comes from the Broker Reciprocity (BR) of the California Regional Multiple Listing Service. Detailed information about real estate listings held by brokerage firms other than James Outland include the name of the listing broker. Neither the listing company nor James Outland shall be responsible for any typographical errors, misinformation, misprints and shall be held totally harmless. The Broker providing this data believes it to be correct, but advises interested parties to confirm any item before relying on it in a purchase decision. Copyright 2026. California Regional Multiple Listing Service. All rights reserved. 120 S Hewitt ST #6
Los Angeles, CA








































