$7,008
1137 E Pico Blvd
Los Angeles, CA, 90021
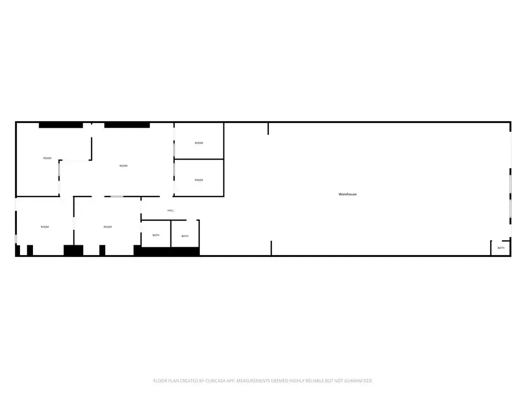
Rare opportunity to lease a 6,000 SF light industrial building located in the heart of Downtown Los Angeles’ Central City East industrial corridor. Built in 1924, this classic brick warehouse offers a functional blend of open warehouse space and dedicated office build-out, making it ideal for manufacturing, creative industrial, storage, distribution, or showroom use. The property features approximately 40 feet of frontage on Pico Blvd and is zoned LAM2, allowing for a wide range of industrial uses.
PROPERTY HIGHLIGHTS
±6,000 SF total building area
±2,263 SF existing office build-out (private offices, reception, restrooms)
Large open warehouse floor
Bow-truss ceiling with high clearance
Street front and alley access
LAM2 Zoning (Light Industrial)
Ideal uses: Apparel / Fashion, Creative Studio, Showroom + Warehouse, Light Manufacturing, E-commerce / Distribution, Storage / Contractor Yard (verify use)
PROPERTY HIGHLIGHTS
±6,000 SF total building area
±2,263 SF existing office build-out (private offices, reception, restrooms)
Large open warehouse floor
Bow-truss ceiling with high clearance
Street front and alley access
LAM2 Zoning (Light Industrial)
Ideal uses: Apparel / Fashion, Creative Studio, Showroom + Warehouse, Light Manufacturing, E-commerce / Distribution, Storage / Contractor Yard (verify use)
Property Details
Price:
$7,008
MLS #:
AR26038118
Status:
Active
Beds:
0
Baths:
0
Type:
Single Family
Subtype:
Industrial
Neighborhood:
c42downtownla
Listed Date:
Feb 20, 2026
Total Sq Ft:
6,000
Lot Size:
5,829 sqft / 0.13 acres (approx)
Year Built:
1924
Schools
Interior
Cooling
CA
Exterior
Construction Materials
BRK
Financial
Get Out There, A Simply Outgoing Approach to Life. James Outland Jr. is one of those rare people who simply has an outgoing approach to life. No matter the activity… from dune buggy riding to skydiving to motorcycling to riding the local Pismo Beach waves… James Outland Jr. approaches life with a “just get out there and do it” kind of attitude. A zest for Life. James’ zest for life is obviously apparent in his many exciting hobbies. In his spare time, he loves riding dune buggies or hi…
More About JamesMortgage Calculator
Map
Current real estate data for Single Family in Los Angeles as of Apr 06, 2026
7,217
Single Family Listed
86
Avg DOM
517
Avg $ / SqFt
$1,562,919
Avg List Price
Community
- Address1137 E Pico Blvd Los Angeles CA
- CityLos Angeles
- CountyLos Angeles
- Zip Code90021
Similar Listings Nearby
Property Summary
- 1137 E Pico Blvd Los Angeles CA is a Single Family for sale in Los Angeles, CA, 90021. It is listed for $7,008 and features 0 beds, 0 baths, and has approximately 0 square feet of living space, and was originally constructed in 1924. The average price per square foot for Single Family listings in Los Angeles is $517. The average listing price for Single Family in Los Angeles is $1,562,919. To schedule a showing of MLS#ar26038118 at 1137 E Pico Blvd in Los Angeles, CA, contact your James Outland agent at 8057482262.
Courtesy of CRE Decentralized. Disclaimer: All data relating to real estate for sale on this page comes from the Broker Reciprocity (BR) of the California Regional Multiple Listing Service. Detailed information about real estate listings held by brokerage firms other than James Outland include the name of the listing broker. Neither the listing company nor James Outland shall be responsible for any typographical errors, misinformation, misprints and shall be held totally harmless. The Broker providing this data believes it to be correct, but advises interested parties to confirm any item before relying on it in a purchase decision. Copyright 2026. California Regional Multiple Listing Service. All rights reserved. 1137 E Pico Blvd
Los Angeles, CA















