$1,175,000
247 Redondo
Long Beach, CA, 90803
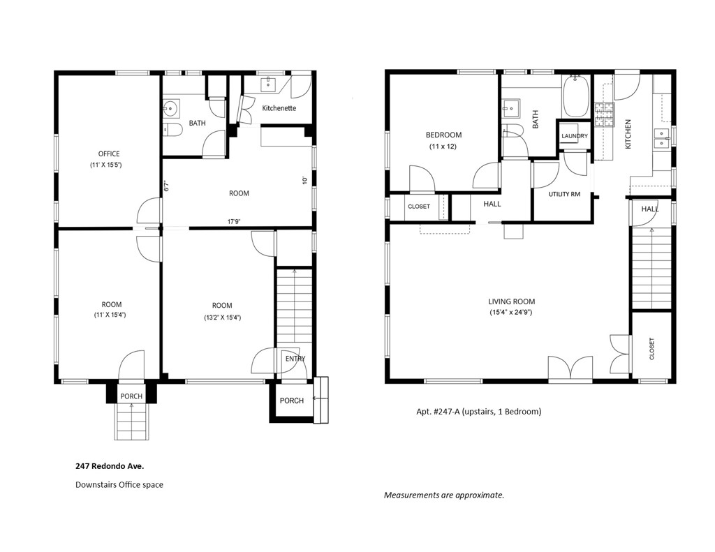
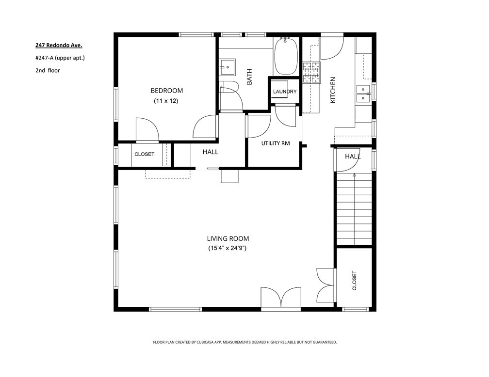
Prime Belmont Heights Duplex. Residential and/or Commercial. Property is zoned CNR, which is a mixed-use district permitting small scale commercial uses and/or moderate density residential. Previously the lower unit was used as an office; however it can be used/converted to residential if you prefer. The (downstairs unit) office includes built-in book shelving, central Air Conditioning and FAH. The upstairs is a residential large 1 Bedroom rental. There are two garages in the rear along with a large concrete patio that can be used for additional parking, entertaining or build an ADU? Rare opportunity with Redondo St. frontage. Could be considered a “fixer” to some extent. This is your opportunity to have your own Redondo Ave. street frontage – office with income above and parking too! See attached supplements and Virtual Tour.
Property Details
Price:
$1,175,000
MLS #:
PW26004876
Status:
Active
Beds:
0
Baths:
0
Type:
Single Family
Subtype:
Duplex
Subdivision:
Belmont Heights BH
Neighborhood:
2belmontheightsalamitosheights
Listed Date:
Feb 12, 2026
Total Sq Ft:
1,928
Lot Size:
3,593 sqft / 0.08 acres (approx)
Year Built:
1924
Schools
Interior
Cooling
CA
Flooring
LAM, WOOD
Heating
FA
Laundry Features
NO
Exterior
Architectural Style
SPN
Community Features
SDW, STM, SL, CRB, PARK, BIKI
Construction Materials
STC
Parking Spots
2
Roof
CMP
Financial
Get Out There, A Simply Outgoing Approach to Life. James Outland Jr. is one of those rare people who simply has an outgoing approach to life. No matter the activity… from dune buggy riding to skydiving to motorcycling to riding the local Pismo Beach waves… James Outland Jr. approaches life with a “just get out there and do it” kind of attitude. A zest for Life. James’ zest for life is obviously apparent in his many exciting hobbies. In his spare time, he loves riding dune buggies or hi…
More About JamesMortgage Calculator
Map
Current real estate data for Single Family in Long Beach as of Feb 14, 2026
653
Single Family Listed
54
Avg DOM
405
Avg $ / SqFt
$957,185
Avg List Price
Community
- Address247 Redondo Long Beach CA
- SubdivisionBelmont Heights (BH)
- CityLong Beach
- CountyLos Angeles
- Zip Code90803
Similar Listings Nearby
Property Summary
- Located in the Belmont Heights (BH) subdivision, 247 Redondo Long Beach CA is a Single Family for sale in Long Beach, CA, 90803. It is listed for $1,175,000 and features 0 beds, 0 baths, and has approximately 0 square feet of living space, and was originally constructed in 1924. The average price per square foot for Single Family listings in Long Beach is $405. The average listing price for Single Family in Long Beach is $957,185. To schedule a showing of MLS#pw26004876 at 247 Redondo in Long Beach, CA, contact your James Outland agent at 8057482262.
Courtesy of Pabst, Kinney & Associates. Disclaimer: All data relating to real estate for sale on this page comes from the Broker Reciprocity (BR) of the California Regional Multiple Listing Service. Detailed information about real estate listings held by brokerage firms other than James Outland include the name of the listing broker. Neither the listing company nor James Outland shall be responsible for any typographical errors, misinformation, misprints and shall be held totally harmless. The Broker providing this data believes it to be correct, but advises interested parties to confirm any item before relying on it in a purchase decision. Copyright 2026. California Regional Multiple Listing Service. All rights reserved. 247 Redondo
Long Beach, CA













































