$3,250,000
3444 E Anaheim
Long Beach, CA, 90804
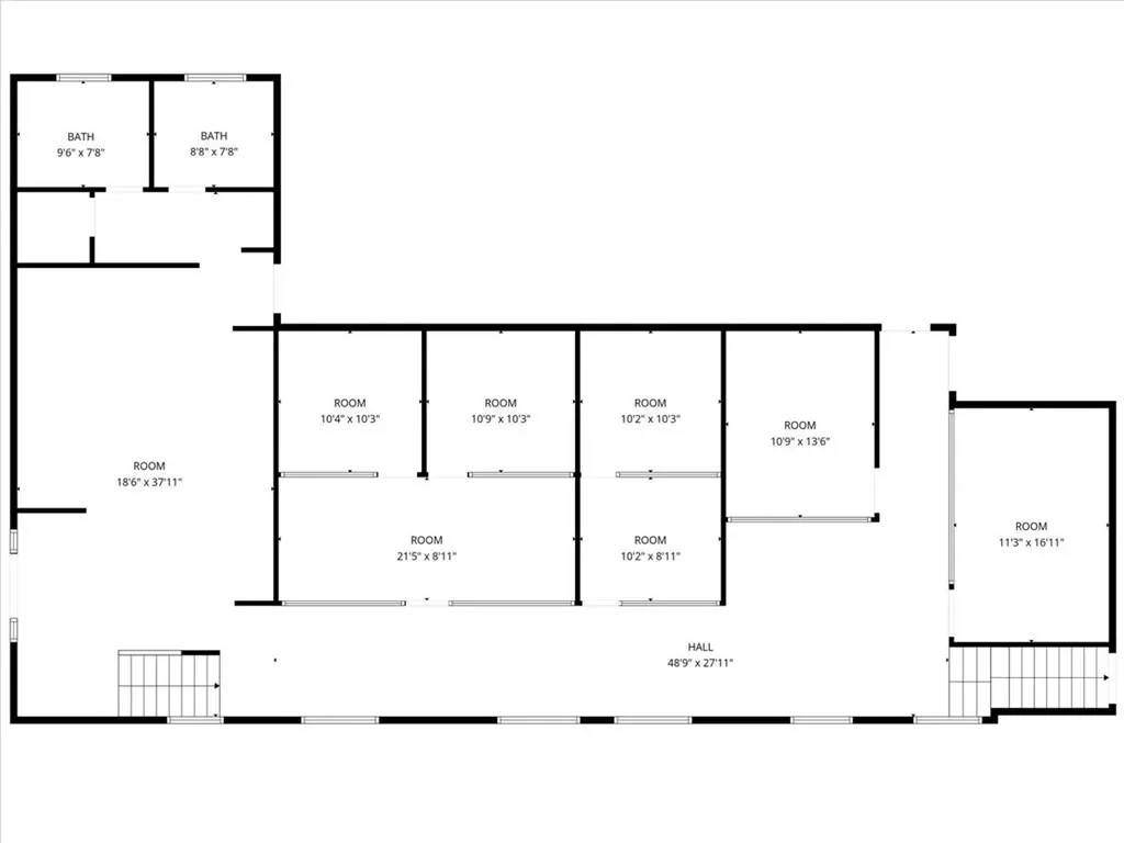
Welcome To 3444 E Anaheim St, A Spacious 5,900 Sq Ft Commercial Property In The Heart Of Long Beach’s Eastside, Where Opportunity And Convenience Seamlessly Blend. This Property Features A Versatile, Open Layout With Ample Room For Offices, Meeting Spaces, And Storage, Designed To Accommodate A Wide Range Of Business Operations. Large Windows Allow Natural Light To Flood The Interior, Creating A Bright And Welcoming Atmosphere. The Building’s Exterior Includes Well-Maintained Landscaping, Covered Entryways, And Plenty Of Parking For Clients And Staff. The Prime Location Offers Easy Access To Major Roads And Is Just Minutes Away From California State University Long Beach, Making It An Ideal Spot For Businesses Looking To Attract Foot Traffic. This Property Is More Than Just A Place To Work; It’s A Place To Grow, Surrounded By The Energy And Potential Of Long Beach’s Vibrant Business Community.
Property Details
Price:
$3,250,000
MLS #:
OC25279811
Status:
Active
Beds:
0
Baths:
0
Type:
Commercial
Subtype:
Office
Neighborhood:
3eastsidecirclearea
Listed Date:
Jan 27, 2026
Total Sq Ft:
5,956
Lot Size:
11,423 sqft / 0.26 acres (approx)
Year Built:
1986
Schools
Interior
Heating
CF
Laundry Features
NO
Exterior
Parking Spots
6
Parking Total
6
Financial
Get Out There, A Simply Outgoing Approach to Life. James Outland Jr. is one of those rare people who simply has an outgoing approach to life. No matter the activity… from dune buggy riding to skydiving to motorcycling to riding the local Pismo Beach waves… James Outland Jr. approaches life with a “just get out there and do it” kind of attitude. A zest for Life. James’ zest for life is obviously apparent in his many exciting hobbies. In his spare time, he loves riding dune buggies or hi…
More About JamesMortgage Calculator
Map
Current real estate data for Commercial in Long Beach as of Apr 09, 2026
59
Commercial Listed
149
Avg DOM
$2,065,967
Avg List Price
Community
- Address3444 E Anaheim Long Beach CA
- CityLong Beach
- CountyLos Angeles
- Zip Code90804
Similar Listings Nearby
Property Summary
- 3444 E Anaheim Long Beach CA is a Commercial for sale in Long Beach, CA, 90804. It is listed for $3,250,000 To schedule a showing of MLS#oc25279811 at 3444 E Anaheim in Long Beach, CA, contact your James Outland agent at 8057482262.
Courtesy of eXp Realty of California Inc. Disclaimer: All data relating to real estate for sale on this page comes from the Broker Reciprocity (BR) of the California Regional Multiple Listing Service. Detailed information about real estate listings held by brokerage firms other than James Outland include the name of the listing broker. Neither the listing company nor James Outland shall be responsible for any typographical errors, misinformation, misprints and shall be held totally harmless. The Broker providing this data believes it to be correct, but advises interested parties to confirm any item before relying on it in a purchase decision. Copyright 2026. California Regional Multiple Listing Service. All rights reserved. 3444 E Anaheim
Long Beach, CA






































