$35,000
Avenue H8 Vicinity 62nd St East
Lancaster, CA, 93535
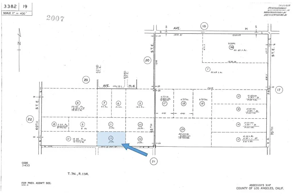
Build Your Home or Ranch on This 5-Acre Eastside Parcel with A-2 Zoning! This flat and spacious property offers excellent potential for rural living, agriculture, or recreational use. Highlights include: Easy access via an existing dirt road at Avenue H8 with recorded easements out to 65th Street E. Nearby electricity at the neighboring home, ±350′ from the parcel. A recorded Shared Water Well and Maintenance Agreement, gives the future owner the option (not obligation) to connect to a well located on the neighboring parcel (APN 3382-019-024). Please note: The seller does not have information regarding the current condition of the existing well. Buyers are advised to conduct independent investigations and verify all utilities and access during due diligence. An additional 5-Acre parcel is also available, 3382-019-022, priced separately, and Seller will consider a discount for a multiple parcel purchase.
*Buyer to make their own independent investigations regarding Zoning and General Plan Designations, Environmental and Hazard Zones, Access and Development costs, Availability and Costs of Utilities.
*Buyer to make their own independent investigations regarding Zoning and General Plan Designations, Environmental and Hazard Zones, Access and Development costs, Availability and Costs of Utilities.
Property Details
Price:
$35,000
MLS #:
SR25142055
Status:
Active
Beds:
0
Baths:
0
Type:
Land
Neighborhood:
laclancaster
Listed Date:
Jan 7, 2026
Lot Size:
217,800 sqft / 5.00 acres (approx)
Schools
Interior
Exterior
Community Features
RUR
Financial
Get Out There, A Simply Outgoing Approach to Life. James Outland Jr. is one of those rare people who simply has an outgoing approach to life. No matter the activity… from dune buggy riding to skydiving to motorcycling to riding the local Pismo Beach waves… James Outland Jr. approaches life with a “just get out there and do it” kind of attitude. A zest for Life. James’ zest for life is obviously apparent in his many exciting hobbies. In his spare time, he loves riding dune buggies or hi…
More About JamesMortgage Calculator
Map
Community
- AddressAvenue H8 Vicinity 62nd St East Lancaster CA
- CityLancaster
- CountyLos Angeles
- Zip Code93535
Similar Listings Nearby
Property Summary
- Avenue H8 Vicinity 62nd St East Lancaster CA is a Land for sale in Lancaster, CA, 93535. It is listed for $35,000 and features 5 acres. To schedule a showing of MLS#sr25142055 at Avenue H8 Vicinity 62nd St East in Lancaster, CA, contact your James Outland agent at 8057482262.
Courtesy of Big Valley Real Estate. Disclaimer: All data relating to real estate for sale on this page comes from the Broker Reciprocity (BR) of the California Regional Multiple Listing Service. Detailed information about real estate listings held by brokerage firms other than James Outland include the name of the listing broker. Neither the listing company nor James Outland shall be responsible for any typographical errors, misinformation, misprints and shall be held totally harmless. The Broker providing this data believes it to be correct, but advises interested parties to confirm any item before relying on it in a purchase decision. Copyright 2026. California Regional Multiple Listing Service. All rights reserved. Avenue H8 Vicinity 62nd St East
Lancaster, CA

































